|
|
|
| Larry Stein Oklahoma County Assessor (405) 713-1200 - Public Access System |
|
|
|
|
|
|
| Real Property Display - Screen Produced 4/15/2026 4:33:36 AM | ||||
|---|---|---|---|---|
| Account: R062148160 | Type: Residential | Location: |
1218 NW 19TH ST |
|
| Building Name/Occupant: |
|
OKLAHOMA CITY |
||
| Owner Name 1: | WILSON JESSICA PAIGE |
Parcel PIN#: |
2713-06-214-8160 |
|
| Owner Name 2: | 1/4 section #: |
2713 |
||
| Owner Name 3: | Parent Acct: |
|
||
| Billing Address: | 1218 NW 19TH ST | Tax District: |
|
|
| City, State, Zip | OKLAHOMA CITY, OK 73106 | School System: |
Oklahoma City #89 |
|
|
Country: (If noted) |
UNITED STATES |
Land Size: |
0.1894 Acres |
|
|
Land Value: 78,004 |
|
|||
|
Sect 29-T12N-R3W Qtr NE |
UNIVERSITY PLACE ADD
Block
007
Lot
000
|
|||
| Full Legal Description: UNIVERSITY PLACE ADD 007 000 PT OF LOTS 2 & 3 BEG 50.5FT W OF NE/C LT 2 TH S150FT TO S LINE LT 2 BEING 50.5FT W OF SE/C LT 2 W51.5FT TH NLY IN A STRAIGHT LINE TO A POINT ON N LINE LT 3 BEING 35FT W OF NE/C LT 3 TH E54.5FT TO BEG |
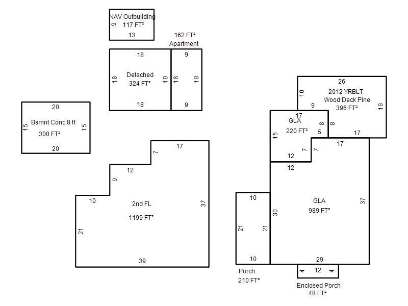
| Photo & Sketch (if available) | Comp Sales (ordered by relevancy) |
|
||||||||||||||||||
|
||||||||||||||||||||
| Value History (*The County Treasurer 405-713-1300 posts & collects actual tax amounts. Contact information HERE) | |||||||||||||
|---|---|---|---|---|---|---|---|---|---|---|---|---|---|
| Year | Market Value | Taxable Mkt Value | Gross Assessed | Exemption | Net Assessed | Millage | Est. Tax | Tax Savings | |||||
|
2026 |
670,500 |
670,500 |
73,755 |
1,000 |
72,755 |
122.90 |
$8,942 |
$123 |
|||||
|
2025 |
679,500 |
662,602 |
72,885 |
0 |
72,885 |
122.90 |
$8,958 |
$228 |
|||||
|
2024 |
667,000 |
631,050 |
69,415 |
0 |
69,415 |
123.89 |
$8,600 |
$490 |
|||||
|
2023 |
601,000 |
601,000 |
66,110 |
0 |
66,110 |
122.82 |
$8,120 |
$0 |
|||||
|
2022 |
629,500 |
448,239 |
49,305 |
0 |
49,305 |
117.63 |
$5,800 |
$2,345 |
|||||
| Property Account Status/Adjustments/Exemptions | ||
|---|---|---|
| Account # | Exemption Description | Amount |
|
R062148160 |
Homestead |
1,000 |
| Property Deed Transaction History (Recorded in the County Clerk's Office) | ||||||||||
|---|---|---|---|---|---|---|---|---|---|---|
| Date | Type | Book | Page | Price | Grantor | Grantee | ||||
|
9/18/2025 |
|
Deeds |
$620,000 |
TINKLE KEVIN & KATIE |
WILSON JESSICA PAIGE |
|||||
|
2/9/2022 |
|
Deeds |
$600,000 |
WEAVER JACOB D & HAILEY B TRS |
TINKLE KEVIN & KATIE |
|||||
|
8/29/2018 |
|
Deeds |
$0 |
WEAVER JACOB |
WEAVER JACOB D & HAILEY B TRS |
|||||
|
5/31/2016 |
|
Deeds |
$362,000 |
EAGLESON SAMUEL H & LYNN B |
WEAVER JACOB |
|||||
|
5/27/2014 |
|
Deeds |
$312,000 |
JONES SHARON LYNN |
EAGLESON SAMUEL H & LYNN B |
|||||
| Last Mailed Notice of Value (N.O.V.) Information/History | ||||||||
|---|---|---|---|---|---|---|---|---|
| Year | Date | Market Value | Taxable Market Value | Gross Assessed | Exemption | Net Assessed | ||
|
2026 |
02/23/2026 |
670,500 |
670,500 |
73,755 |
1,000 |
72,755 |
||
|
2025 |
02/14/2025 |
679,500 |
662,602 |
72,885 |
0 |
72,885 |
||
|
2024 |
02/13/2024 |
667,000 |
631,050 |
69,415 |
0 |
69,415 |
||
|
2023 |
02/14/2023 |
601,000 |
601,000 |
66,110 |
0 |
66,110 |
||
|
2022 |
03/15/2022 |
629,500 |
448,239 |
49,305 |
0 |
49,305 |
||
| Property Building Permit History | ||||||
|---|---|---|---|---|---|---|
| Issued | Permit # | Provided by | Bldg # | Description | Est Construction Cost | Status |
|
10/29/2018 |
|
|
1 |
Remodeled |
30,000 |
Inactive |
| Click button on building number to access detailed information: | ||||||
|---|---|---|---|---|---|---|
| Bldg # | Vacant/Improved Land | Bldg Description | Year Built | SqFt | # Stories | |
|
1 |
Improved |
2 Story |
1920 |
2,408 |
2 Stories |
|