|
|
|
| Larry Stein Oklahoma County Assessor (405) 713-1200 - Public Access System |
|
|
|
|
|
|
| Real Property Display - Screen Produced 4/12/2026 8:17:24 PM | ||||
|---|---|---|---|---|
| Account: R061189460 | Type: Residential | Location: |
1138 N BLACKWELDER AVE |
|
| Building Name/Occupant: |
|
OKLAHOMA CITY |
||
| Owner Name 1: | CLARK MACKENZIE LEE |
Parcel PIN#: |
2714-06-118-9460 |
|
| Owner Name 2: | 1/4 section #: |
2714 |
||
| Owner Name 3: | Parent Acct: |
|
||
| Billing Address: | 1138 N BLACKWELDER AVE | Tax District: |
|
|
| City, State, Zip | OKLAHOMA CITY, OK 73106 | School System: |
Oklahoma City #89 |
|
|
Country: (If noted) |
Land Size: |
0.1823 Acres |
||
|
Land Value: 34,552 |
|
|||
|
Sect 29-T12N-R3W Qtr SE |
BEVERS SUB ADDITION
Block
002
Lot
016
|
|||
| Full Legal Description: BEVERS SUB ADDITION 002 016 |
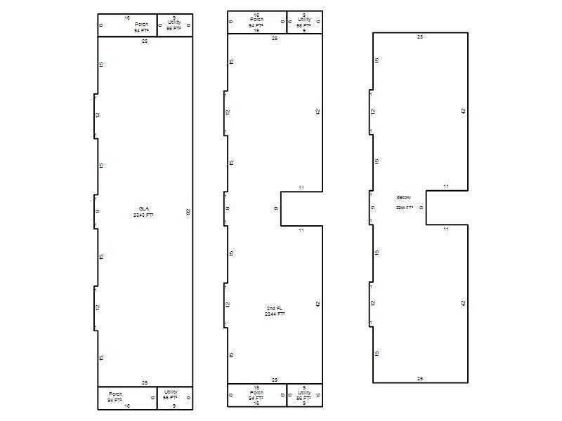
| Photo & Sketch (if available) | Comp Sales (ordered by relevancy) |
|
||||||||||||||||||
|
||||||||||||||||||||
| Value History (*The County Treasurer 405-713-1300 posts & collects actual tax amounts. Contact information HERE) | |||||||||||||
|---|---|---|---|---|---|---|---|---|---|---|---|---|---|
| Year | Market Value | Taxable Mkt Value | Gross Assessed | Exemption | Net Assessed | Millage | Est. Tax | Tax Savings | |||||
|
2026 |
890,500 |
712,215 |
78,343 |
0 |
78,343 |
122.90 |
$9,628 |
$2,410 |
|||||
|
2025 |
871,000 |
678,300 |
74,613 |
0 |
74,613 |
122.90 |
$9,170 |
$2,605 |
|||||
|
2024 |
646,000 |
646,000 |
71,060 |
0 |
71,060 |
123.89 |
$8,804 |
$0 |
|||||
|
2023 |
34,552 |
34,552 |
3,800 |
0 |
3,800 |
122.82 |
$467 |
$0 |
|||||
|
2022 |
34,552 |
34,552 |
3,800 |
0 |
3,800 |
117.63 |
$447 |
$0 |
|||||
| Property Account Status/Adjustments/Exemptions | ||
|---|---|---|
| Account # | Exemption Description | Amount |
|
R061189460 |
5% Capped Account |
0 |
| Property Deed Transaction History (Recorded in the County Clerk's Office) | ||||||||||
|---|---|---|---|---|---|---|---|---|---|---|
| Date | Type | Book | Page | Price | Grantor | Grantee | ||||
|
2/13/2026 |
|
Deeds |
$830,000 |
THREE J S RENTALS LLC |
CLARK MACKENZIE LEE |
|||||
|
4/18/2023 |
|
Deeds |
$645,000 |
NOBLE REH LLC |
THREE J S RENTALS LLC |
|||||
|
10/2/2020 |
|
Hmstd Off & |
$0 |
BLACKWELDER 1138 LLC |
NOBLE REH LLC |
|||||
|
12/20/2019 |
|
Hmstd Off & |
$0 |
NOBLE REH LLC |
BLACKWELDER 1138 LLC |
|||||
|
12/13/2019 |
|
Deeds |
$52,000 |
2333 NW 32 ST LLC |
NOBLE REH LLC |
|||||
| Last Mailed Notice of Value (N.O.V.) Information/History | ||||||||
|---|---|---|---|---|---|---|---|---|
| Year | Date | Market Value | Taxable Market Value | Gross Assessed | Exemption | Net Assessed | ||
|
2026 |
02/23/2026 |
890,500 |
712,215 |
78,343 |
0 |
78,343 |
||
|
2026 |
03/30/2026 |
890,500 |
712,215 |
78,343 |
0 |
78,343 |
||
|
2025 |
02/14/2025 |
871,000 |
678,300 |
74,613 |
0 |
74,613 |
||
|
2024 |
02/13/2024 |
646,000 |
646,000 |
71,060 |
0 |
71,060 |
||
|
2022 |
03/15/2022 |
34,552 |
34,552 |
3,800 |
0 |
3,800 |
||
| Property Building Permit History | ||||||
|---|---|---|---|---|---|---|
| Issued | Permit # | Provided by | Bldg # | Description | Est Construction Cost | Status |
|
2/14/2023 |
BLDC-2020-07316 |
|
1 |
Commercial |
510,000 |
Inactive |
|
8/27/2021 |
|
|
|
Main Dwellin |
|
Inactive |
| Click button on building number to access detailed information: | ||||||
|---|---|---|---|---|---|---|
| Bldg # | Vacant/Improved Land | Bldg Description | Year Built | SqFt | # Stories | |
|
1 |
Improved |
Apartment <= 3 Stories |
2021 |
4,587 |
2 Stories |
|