|
|
|
| Larry Stein Oklahoma County Assessor (405) 713-1200 - Public Access System |
|
|
|
|
|
|
| Real Property Display - Screen Produced 4/2/2026 4:14:31 PM | ||||
|---|---|---|---|---|
| Account: R062224800 | Type: Residential | Location: |
1804 NW 19TH ST |
|
| Building Name/Occupant: |
|
OKLAHOMA CITY |
||
| Owner Name 1: | MONTOYA GLADYS |
Parcel PIN#: |
2716-06-222-4800 |
|
| Owner Name 2: | MONTOYA NESTOR SIMION | 1/4 section #: |
2716 |
|
| Owner Name 3: | Parent Acct: |
|
||
| Billing Address: | 1944 NW 19TH ST | Tax District: |
|
|
| City, State, Zip | OKLAHOMA CITY, OK 73106-1604 | School System: |
Oklahoma City #89 |
|
|
Country: (If noted) |
Land Size: |
0.2066 Acres |
||
|
Land Value: 57,600 |
|
|||
|
Sect 29-T12N-R3W Qtr NW |
GATEWOOD ADDITION
Block
012
Lot
002
|
|||
| Full Legal Description: GATEWOOD ADDITION 012 002 |
| Photo & Sketch (if available) | Comp Sales (ordered by relevancy) |
|
||||||||||||||||||
|
||||||||||||||||||||
| Value History (*The County Treasurer 405-713-1300 posts & collects actual tax amounts. Contact information HERE) | |||||||||||||
|---|---|---|---|---|---|---|---|---|---|---|---|---|---|
| Year | Market Value | Taxable Mkt Value | Gross Assessed | Exemption | Net Assessed | Millage | Est. Tax | Tax Savings | |||||
|
2026 |
388,000 |
388,000 |
42,680 |
0 |
42,680 |
122.90 |
$5,245 |
$0 |
|||||
|
2025 |
383,500 |
383,500 |
42,185 |
0 |
42,185 |
122.90 |
$5,185 |
$0 |
|||||
|
2024 |
380,500 |
380,500 |
41,855 |
0 |
41,855 |
123.89 |
$5,185 |
$0 |
|||||
|
2023 |
348,000 |
207,873 |
22,866 |
1,000 |
21,866 |
122.82 |
$2,686 |
$2,016 |
|||||
|
2022 |
278,500 |
201,819 |
22,198 |
1,000 |
21,198 |
117.63 |
$2,494 |
$1,110 |
|||||
| Property Account Status/Adjustments/Exemptions | ||
|---|---|---|
| Account # | Exemption Description | Amount |
|
R062224800 |
5% Capped Account |
0 |
| Property Deed Transaction History (Recorded in the County Clerk's Office) | |||||||
|---|---|---|---|---|---|---|---|
| Date | Type | Book | Page | Price | Grantor | Grantee | |
|
11/17/2023 |
|
Deeds |
$301,000 |
HODGES DONNIS JOE |
MONTOYA GLADYS |
||
|
5/26/1995 |
|
Historical |
$0 |
HODGES DONNIS & BEVERLY ANN |
HODGES DONNIS JOE |
||
|
11/11/1911 |
|
Historical |
$0 |
|
HODGES DONNIS & BEVERLY ANN |
||
| Last Mailed Notice of Value (N.O.V.) Information/History | ||||||||
|---|---|---|---|---|---|---|---|---|
| Year | Date | Market Value | Taxable Market Value | Gross Assessed | Exemption | Net Assessed | ||
|
2026 |
02/23/2026 |
388,000 |
388,000 |
42,680 |
0 |
42,680 |
||
|
2025 |
02/14/2025 |
383,500 |
383,500 |
42,185 |
0 |
42,185 |
||
|
2024 |
02/13/2024 |
380,500 |
380,500 |
41,855 |
0 |
41,855 |
||
|
2023 |
02/14/2023 |
348,000 |
207,873 |
22,866 |
1,000 |
21,866 |
||
|
2022 |
03/15/2022 |
278,500 |
201,819 |
22,198 |
1,000 |
21,198 |
||
| Property Building Permit History | |||||||||||
|---|---|---|---|---|---|---|---|---|---|---|---|
| Issued | Permit # | Provided by | Bldg # | Description | Est Construction Cost | Status | |||||
| No Building Permit records returned. | |||||||||||
| Click button on building number to access detailed information: | ||||||
|---|---|---|---|---|---|---|
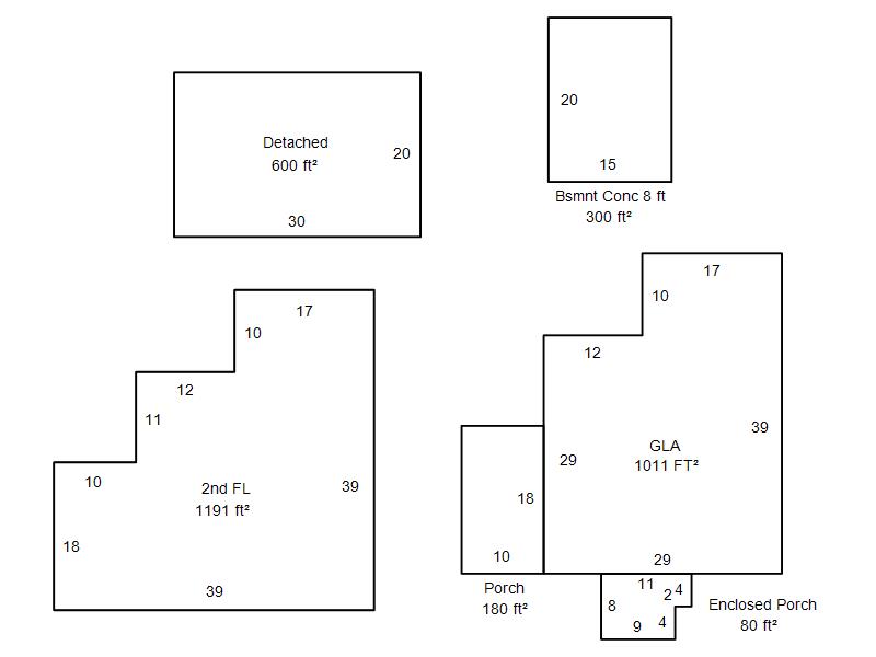
| Bldg # | Vacant/Improved Land | Bldg Description | Year Built | SqFt | # Stories | |
|
1 |
Improved |
2 Story |
1926 |
2,202 |
2 Stories |
|