|
|
|
| Larry Stein Oklahoma County Assessor (405) 713-1200 - Public Access System |
|
|
|
|
|
|
| Real Property Display - Screen Produced 4/12/2026 2:24:34 PM | ||||
|---|---|---|---|---|
| Account: R063744230 | Type: Residential | Location: |
2349 NW 19TH ST |
|
| Building Name/Occupant: |
|
OKLAHOMA CITY |
||
| Owner Name 1: | HEARNE TARYN GEORGIA |
Parcel PIN#: |
2717-06-374-4230 |
|
| Owner Name 2: | 1/4 section #: |
2717 |
||
| Owner Name 3: | Parent Acct: |
|
||
| Billing Address: | 2349 NW 19TH ST | Tax District: |
|
|
| City, State, Zip | OKLAHOMA CITY, OK 73107-3334 | School System: |
Oklahoma City #89 |
|
|
Country: (If noted) |
Land Size: |
0.1286 Acres |
||
|
Land Value: 24,360 |
|
|||
|
Sect 30-T12N-R3W Qtr NE |
AURORA ADDITION
Block
011
Lot
004
|
|||
| Full Legal Description: AURORA ADDITION 011 004 W40FT OF E80FT |
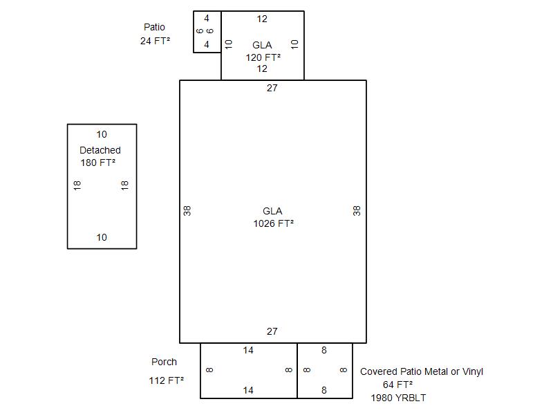
| Photo & Sketch (if available) | Comp Sales (ordered by relevancy) |
|
||||||||||||||||||
|
||||||||||||||||||||
| Value History (*The County Treasurer 405-713-1300 posts & collects actual tax amounts. Contact information HERE) | |||||||||||||
|---|---|---|---|---|---|---|---|---|---|---|---|---|---|
| Year | Market Value | Taxable Mkt Value | Gross Assessed | Exemption | Net Assessed | Millage | Est. Tax | Tax Savings | |||||
|
2026 |
248,000 |
248,000 |
27,280 |
1,000 |
26,280 |
122.90 |
$3,230 |
$123 |
|||||
|
2025 |
254,000 |
254,000 |
27,940 |
0 |
27,940 |
122.90 |
$3,434 |
$0 |
|||||
|
2024 |
249,000 |
176,823 |
19,450 |
0 |
19,450 |
123.89 |
$2,410 |
$984 |
|||||
|
2023 |
240,500 |
168,403 |
18,524 |
0 |
18,524 |
122.82 |
$2,275 |
$974 |
|||||
|
2022 |
198,500 |
160,384 |
17,640 |
1,000 |
16,640 |
117.63 |
$1,958 |
$611 |
|||||
| Property Account Status/Adjustments/Exemptions | ||
|---|---|---|
| Account # | Exemption Description | Amount |
|
R063744230 |
3% Cap Homestead |
0 |
|
R063744230 |
Homestead |
1,000 |
| Property Deed Transaction History (Recorded in the County Clerk's Office) | ||||||||||
|---|---|---|---|---|---|---|---|---|---|---|
| Date | Type | Book | Page | Price | Grantor | Grantee | ||||
|
11/8/2024 |
|
Deeds |
$230,000 |
GUTIERREZ OLIVIA A |
HEARNE TARYN GEORGIA |
|||||
|
12/30/2016 |
|
Deeds |
$150,500 |
FOSTER LEE & BRIGETT |
GUTIERREZ OLIVIA A |
|||||
|
8/30/2016 |
|
Deeds |
$33,000 |
HAYCOX LINDA J |
S & L SOLUTIONS LLC |
|||||
|
8/30/2016 |
|
Deeds |
$55,000 |
S & L SOLUTIONS LLC |
FOSTER LEE & BRIGETT |
|||||
|
7/21/2016 |
|
Hmstd Off & |
$0 |
FREWALDT REGINA MAE HAYCOX LINDA J |
HAYCOX LINDA J |
|||||
| Last Mailed Notice of Value (N.O.V.) Information/History | ||||||||
|---|---|---|---|---|---|---|---|---|
| Year | Date | Market Value | Taxable Market Value | Gross Assessed | Exemption | Net Assessed | ||
|
2025 |
02/14/2025 |
254,000 |
254,000 |
27,940 |
0 |
27,940 |
||
|
2024 |
02/13/2024 |
249,000 |
176,823 |
19,450 |
0 |
19,450 |
||
|
2023 |
02/14/2023 |
240,500 |
168,403 |
18,524 |
0 |
18,524 |
||
|
2022 |
03/15/2022 |
198,500 |
160,384 |
17,640 |
1,000 |
16,640 |
||
|
2021 |
03/19/2021 |
184,000 |
155,713 |
17,128 |
1,000 |
16,128 |
||
| Property Building Permit History | |||||||||||
|---|---|---|---|---|---|---|---|---|---|---|---|
| Issued | Permit # | Provided by | Bldg # | Description | Est Construction Cost | Status | |||||
| No Building Permit records returned. | |||||||||||
| Click button on building number to access detailed information: | ||||||
|---|---|---|---|---|---|---|
| Bldg # | Vacant/Improved Land | Bldg Description | Year Built | SqFt | # Stories | |
|
1 |
Improved |
Ranch 1 Story |
1926 |
1,146 |
1 Stories |
|