|
|
|
| Larry Stein Oklahoma County Assessor (405) 713-1200 - Public Access System |
|
|
|
|
|
|
| Real Property Display - Screen Produced 4/12/2026 2:29:20 PM | ||||
|---|---|---|---|---|
| Account: R063746510 | Type: Residential | Location: |
2405 NW 17TH ST |
|
| Building Name/Occupant: |
|
OKLAHOMA CITY |
||
| Owner Name 1: | RAMESH PARVIZ |
Parcel PIN#: |
2717-06-374-6510 |
|
| Owner Name 2: | 1/4 section #: |
2717 |
||
| Owner Name 3: | Parent Acct: |
|
||
| Billing Address: | 1921 DENA DR | Tax District: |
|
|
| City, State, Zip | EDMOND, OK 73003-3747 | School System: |
Oklahoma City #89 |
|
|
Country: (If noted) |
Land Size: |
0.1079 Acres |
||
|
Land Value: 20,445 |
|
|||
|
Sect 30-T12N-R3W Qtr NE |
AURORA ADDITION
Block
016
Lot
004
|
|||
| Full Legal Description: AURORA ADDITION 016 004 W47FT OF E100FT OF S100FT |
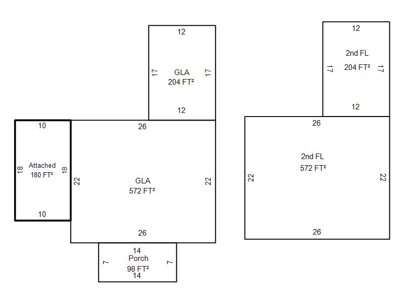
| Photo & Sketch (if available) | Comp Sales (ordered by relevancy) |
|
||||||||||||||||||
|
||||||||||||||||||||
| Value History (*The County Treasurer 405-713-1300 posts & collects actual tax amounts. Contact information HERE) | |||||||||||||
|---|---|---|---|---|---|---|---|---|---|---|---|---|---|
| Year | Market Value | Taxable Mkt Value | Gross Assessed | Exemption | Net Assessed | Millage | Est. Tax | Tax Savings | |||||
|
2026 |
198,500 |
198,500 |
21,835 |
0 |
21,835 |
122.90 |
$2,684 |
$0 |
|||||
|
2025 |
198,500 |
198,500 |
21,835 |
0 |
21,835 |
122.90 |
$2,684 |
$0 |
|||||
|
2024 |
194,000 |
194,000 |
21,340 |
0 |
21,340 |
123.89 |
$2,644 |
$0 |
|||||
|
2023 |
185,000 |
100,976 |
11,106 |
1,000 |
10,106 |
122.82 |
$1,241 |
$1,258 |
|||||
|
2022 |
142,500 |
98,035 |
10,782 |
1,000 |
9,782 |
117.63 |
$1,151 |
$693 |
|||||
| Property Account Status/Adjustments/Exemptions | ||
|---|---|---|
| Account # | Exemption Description | Amount |
|
R063746510 |
5% Capped Account |
0 |
| Property Deed Transaction History (Recorded in the County Clerk's Office) | |||||||
|---|---|---|---|---|---|---|---|
| Date | Type | Book | Page | Price | Grantor | Grantee | |
|
11/14/2024 |
|
Hmstd Off & |
$0 |
RAMESH PARVIZ |
RAMESH PARVIZ |
||
|
11/29/2023 |
|
Deeds |
$205,000 |
DEARNER JAMES F JR & DOLLY A |
RAMESH PARVIZ |
||
|
10/1/1980 |
|
Historical |
$0 |
|
DEARNER JAMES F JR & DOLLY A |
||
| Last Mailed Notice of Value (N.O.V.) Information/History | ||||||||
|---|---|---|---|---|---|---|---|---|
| Year | Date | Market Value | Taxable Market Value | Gross Assessed | Exemption | Net Assessed | ||
|
2025 |
02/14/2025 |
198,500 |
198,500 |
21,835 |
0 |
21,835 |
||
|
2024 |
02/13/2024 |
194,000 |
194,000 |
21,340 |
0 |
21,340 |
||
|
2023 |
02/14/2023 |
185,000 |
100,976 |
11,106 |
1,000 |
10,106 |
||
|
2022 |
03/15/2022 |
142,500 |
98,035 |
10,782 |
1,000 |
9,782 |
||
|
2021 |
03/19/2021 |
128,500 |
95,180 |
10,469 |
1,000 |
9,469 |
||
| Property Building Permit History | ||||||
|---|---|---|---|---|---|---|
| Issued | Permit # | Provided by | Bldg # | Description | Est Construction Cost | Status |
|
10/4/1991 |
10193952 |
OKLAHOMA CITY |
1 |
Add On |
16,000 |
Inactive |
| Click button on building number to access detailed information: | ||||||
|---|---|---|---|---|---|---|
| Bldg # | Vacant/Improved Land | Bldg Description | Year Built | SqFt | # Stories | |
|
1 |
Improved |
2 Story |
1938 |
1,552 |
2 Stories |
|