|
|
|
| Larry Stein Oklahoma County Assessor (405) 713-1200 - Public Access System |
|
|
|
|
|
|
| Real Property Display - Screen Produced 4/12/2026 4:12:31 PM | ||||
|---|---|---|---|---|
| Account: R063986750 | Type: Residential | Location: |
2241 NW 22ND ST |
|
| Building Name/Occupant: |
|
OKLAHOMA CITY |
||
| Owner Name 1: | MERLINO BRIAN |
Parcel PIN#: |
2717-06-398-6750 |
|
| Owner Name 2: | 1/4 section #: |
2717 |
||
| Owner Name 3: | Parent Acct: |
|
||
| Billing Address: | 2241 NW 22ND ST | Tax District: |
|
|
| City, State, Zip | OKLAHOMA CITY, OK 73107-3548 | School System: |
Oklahoma City #89 |
|
|
Country: (If noted) |
Land Size: |
0.1963 Acres |
||
|
Land Value: 37,193 |
|
|||
|
Sect 30-T12N-R3W Qtr NE |
LAS VEGAS AMENDED
Block
003
Lot
007
|
|||
| Full Legal Description: LAS VEGAS AMENDED 003 007 |
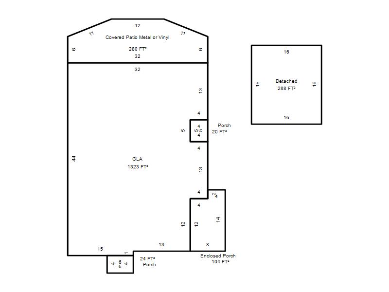
| Photo & Sketch (if available) | Comp Sales (ordered by relevancy) |
|
||||||||||||||||||
|
||||||||||||||||||||
| Value History (*The County Treasurer 405-713-1300 posts & collects actual tax amounts. Contact information HERE) | |||||||||||||
|---|---|---|---|---|---|---|---|---|---|---|---|---|---|
| Year | Market Value | Taxable Mkt Value | Gross Assessed | Exemption | Net Assessed | Millage | Est. Tax | Tax Savings | |||||
|
2026 |
230,500 |
230,500 |
25,355 |
0 |
25,355 |
122.90 |
$3,116 |
$0 |
|||||
|
2025 |
236,500 |
236,500 |
26,015 |
0 |
26,015 |
122.90 |
$3,197 |
$0 |
|||||
|
2024 |
232,000 |
232,000 |
25,520 |
0 |
25,520 |
123.89 |
$3,162 |
$0 |
|||||
|
2023 |
222,500 |
222,500 |
24,475 |
0 |
24,475 |
122.82 |
$3,006 |
$0 |
|||||
|
2022 |
262,000 |
262,000 |
28,820 |
0 |
28,820 |
117.63 |
$3,390 |
$0 |
|||||
| Property Account Status/Adjustments/Exemptions | ||||||
|---|---|---|---|---|---|---|
| Account # | Exemption Description | Amount | ||||
| No adjustment/exemption records returned. | ||||||
| Property Deed Transaction History (Recorded in the County Clerk's Office) | ||||||||||
|---|---|---|---|---|---|---|---|---|---|---|
| Date | Type | Book | Page | Price | Grantor | Grantee | ||||
|
10/16/2025 |
|
Deeds |
$310,000 |
MASTERS CALEB |
MERLINO BRIAN |
|||||
|
7/15/2021 |
|
Deeds |
$265,000 |
PEBBLES FAMILY TRUST |
MASTERS CALEB |
|||||
|
4/12/2021 |
|
Deeds |
$ |
SCOTT STACEY A |
PEBBLES FAMILY TRUST |
|||||
|
10/17/2018 |
|
Deeds |
$195,000 |
MCCONNELL LORI ELIZABETH |
SCOTT STACEY A |
|||||
|
5/1/2017 |
|
Deeds |
$177,500 |
JONES LINSI SHEA |
MCCONNELL LORI ELIZABETH |
|||||
| Last Mailed Notice of Value (N.O.V.) Information/History | ||||||||
|---|---|---|---|---|---|---|---|---|
| Year | Date | Market Value | Taxable Market Value | Gross Assessed | Exemption | Net Assessed | ||
|
2025 |
02/14/2025 |
236,500 |
236,500 |
26,015 |
0 |
26,015 |
||
|
2024 |
02/13/2024 |
232,000 |
232,000 |
25,520 |
0 |
25,520 |
||
|
2022 |
03/15/2022 |
262,000 |
262,000 |
28,820 |
0 |
28,820 |
||
|
2019 |
04/02/2019 |
193,000 |
193,000 |
21,230 |
1,000 |
20,230 |
||
|
2018 |
04/16/2018 |
175,500 |
175,500 |
19,305 |
1,000 |
18,305 |
||
| Property Building Permit History | |||||||||||
|---|---|---|---|---|---|---|---|---|---|---|---|
| Issued | Permit # | Provided by | Bldg # | Description | Est Construction Cost | Status | |||||
| No Building Permit records returned. | |||||||||||
| Click button on building number to access detailed information: | ||||||
|---|---|---|---|---|---|---|
| Bldg # | Vacant/Improved Land | Bldg Description | Year Built | SqFt | # Stories | |
|
1 |
Improved |
Ranch 1 Story |
1929 |
1,323 |
1 Stories |
|