|
|
|
| Larry Stein Oklahoma County Assessor (405) 713-1200 - Public Access System |
|
|
|
|
|
|
| Real Property Display - Screen Produced 4/12/2026 7:12:15 AM | ||||
|---|---|---|---|---|
| Account: R063340300 | Type: Residential | Location: |
2132 W PARK PL |
|
| Building Name/Occupant: |
|
OKLAHOMA CITY |
||
| Owner Name 1: | XIAP ISAAC SICAJAU |
Parcel PIN#: |
2718-06-334-0300 |
|
| Owner Name 2: | 1/4 section #: |
2718 |
||
| Owner Name 3: | Parent Acct: |
|
||
| Billing Address: | 2132 W PARK PL | Tax District: |
|
|
| City, State, Zip | OKLAHOMA CITY, OK 73107-5631 | School System: |
Oklahoma City #89 |
|
|
Country: (If noted) |
Land Size: |
0.1607 Acres |
||
|
Land Value: 31,500 |
|
|||
|
Sect 30-T12N-R3W Qtr SE |
YOUNGS ENGLEWOOD ADD
Block
002
Lot
000
|
|||
| Full Legal Description: YOUNGS ENGLEWOOD ADD BLK 2 LOTS 24 & 25 |
| Photo & Sketch (if available) | Comp Sales (ordered by relevancy) |
|
||||||||||||||||||
|
||||||||||||||||||||
| Value History (*The County Treasurer 405-713-1300 posts & collects actual tax amounts. Contact information HERE) | |||||||||||||
|---|---|---|---|---|---|---|---|---|---|---|---|---|---|
| Year | Market Value | Taxable Mkt Value | Gross Assessed | Exemption | Net Assessed | Millage | Est. Tax | Tax Savings | |||||
|
2026 |
179,000 |
179,000 |
19,690 |
0 |
19,690 |
122.90 |
$2,420 |
$0 |
|||||
|
2025 |
0 |
0 |
0 |
0 |
0 |
122.90 |
$0 |
$0 |
|||||
|
2024 |
0 |
0 |
0 |
0 |
0 |
123.89 |
$0 |
$0 |
|||||
|
2023 |
156,000 |
156,000 |
17,160 |
0 |
17,160 |
122.82 |
$2,108 |
$0 |
|||||
|
2022 |
0 |
0 |
0 |
0 |
0 |
117.63 |
$0 |
$0 |
|||||
| Property Account Status/Adjustments/Exemptions | ||||||
|---|---|---|---|---|---|---|
| Account # | Exemption Description | Amount | ||||
| No adjustment/exemption records returned. | ||||||
| Property Deed Transaction History (Recorded in the County Clerk's Office) | ||||||||||
|---|---|---|---|---|---|---|---|---|---|---|
| Date | Type | Book | Page | Price | Grantor | Grantee | ||||
|
10/27/2025 |
|
Deeds |
$220,000 |
MONTERROSO MARCOS TIMOTEO LOPEZ |
XIAP ISAAC SICAJAU |
|||||
|
5/19/2025 |
|
Deeds |
$100,000 |
SPRING CREEK COMPASSION INC |
MONTERROSO MARCOS TIMOTEO LOPEZ |
|||||
|
12/31/2022 |
|
Hmstd Off & |
$0 |
OKC COMPASSION INC |
SPRING CREEK COMPASSION INC |
|||||
|
4/30/2009 |
|
Deeds |
$25,000 |
SHIPMAN NATHANIEL L |
OKC COMPASSION INC |
|||||
|
3/25/1996 |
|
Historical |
$0 |
ELDRIDGE JACK W & ALMA J |
SHIPMAN NATHANIEL L |
|||||
| Last Mailed Notice of Value (N.O.V.) Information/History | ||||||
|---|---|---|---|---|---|---|
| Year | Date | Market Value | Taxable Market Value | Gross Assessed | Exemption | Net Assessed |
|
2026 |
02/23/2026 |
179,000 |
179,000 |
19,690 |
0 |
19,690 |
|
2024 |
02/13/2024 |
158,500 |
158,500 |
17,435 |
0 |
17,435 |
|
2023 |
04/21/2023 |
156,000 |
156,000 |
17,160 |
0 |
17,160 |
| Property Building Permit History | ||||||
|---|---|---|---|---|---|---|
| Issued | Permit # | Provided by | Bldg # | Description | Est Construction Cost | Status |
|
6/25/2024 |
BLDR-2024-01708 |
|
1 |
Remodeled |
1,000 |
Inactive |
|
12/15/2022 |
|
|
1 |
Remodeled |
|
Inactive |
| Click button on building number to access detailed information: | ||||||
|---|---|---|---|---|---|---|
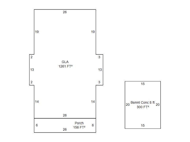
| Bldg # | Vacant/Improved Land | Bldg Description | Year Built | SqFt | # Stories | |
|
1 |
Improved |
Ranch 1 Story |
1920 |
1,261 |
1 Stories |
|