|
|
|
| Larry Stein Oklahoma County Assessor (405) 713-1200 - Public Access System |
|
|
|
|
|
|
| Real Property Display - Screen Produced 4/12/2026 2:29:51 PM | ||||
|---|---|---|---|---|
| Account: R063341510 | Type: Residential | Location: |
2354 NW 11TH ST |
|
| Building Name/Occupant: |
|
OKLAHOMA CITY |
||
| Owner Name 1: | MST PROJECT LLC |
Parcel PIN#: |
2718-06-334-1510 |
|
| Owner Name 2: | 1/4 section #: |
2718 |
||
| Owner Name 3: | Parent Acct: |
|
||
| Billing Address: | 6608 N WESTERN AVE, Unit 1335 | Tax District: |
|
|
| City, State, Zip | OKLAHOMA CITY, OK 73116-7326 | School System: |
Oklahoma City #89 |
|
|
Country: (If noted) |
Land Size: |
0.1550 Acres |
||
|
Land Value: 30,375 |
|
|||
|
Sect 30-T12N-R3W Qtr SE |
YOUNGS ENGLEWOOD ADD
Block
007
Lot
039
|
|||
| Full Legal Description: YOUNGS ENGLEWOOD ADD 007 039 |
| Photo & Sketch (if available) | Comp Sales (ordered by relevancy) |
|
||||||||||||||||||
|
||||||||||||||||||||
| Value History (*The County Treasurer 405-713-1300 posts & collects actual tax amounts. Contact information HERE) | |||||||||||||
|---|---|---|---|---|---|---|---|---|---|---|---|---|---|
| Year | Market Value | Taxable Mkt Value | Gross Assessed | Exemption | Net Assessed | Millage | Est. Tax | Tax Savings | |||||
|
2026 |
166,500 |
166,500 |
18,315 |
0 |
18,315 |
122.90 |
$2,251 |
$0 |
|||||
|
2025 |
163,500 |
163,500 |
17,985 |
0 |
17,985 |
122.90 |
$2,210 |
$0 |
|||||
|
2024 |
158,500 |
158,500 |
17,435 |
0 |
17,435 |
123.89 |
$2,160 |
$0 |
|||||
|
2023 |
155,000 |
93,341 |
10,266 |
0 |
10,266 |
122.82 |
$1,261 |
$833 |
|||||
|
2022 |
121,500 |
88,897 |
9,777 |
0 |
9,777 |
117.63 |
$1,150 |
$422 |
|||||
| Property Account Status/Adjustments/Exemptions | ||
|---|---|---|
| Account # | Exemption Description | Amount |
|
R063341510 |
5% Capped Account |
0 |
| Property Deed Transaction History (Recorded in the County Clerk's Office) | ||||||||||
|---|---|---|---|---|---|---|---|---|---|---|
| Date | Type | Book | Page | Price | Grantor | Grantee | ||||
|
12/27/2023 |
|
Deeds |
$137,500 |
INSTANTHOUSEOFFER LLC |
MST PROJECT LLC |
|||||
|
10/13/2023 |
|
Deeds |
$120,000 |
RLH PROPERTIES LLC |
INSTANTHOUSEOFFER LLC |
|||||
|
2/12/2007 |
|
Hmstd Off & |
$0 |
HINER ROBERT |
RLH PROPERTIES LLC |
|||||
|
2/26/2004 |
|
Deeds |
$0 |
STEVENS JOHN S & MARGARET K |
HINER ROBERT |
|||||
|
9/9/1996 |
|
Historical |
$0 |
STEVENS JOHN S |
HINER ROBERT L |
|||||
| Last Mailed Notice of Value (N.O.V.) Information/History | ||||||||
|---|---|---|---|---|---|---|---|---|
| Year | Date | Market Value | Taxable Market Value | Gross Assessed | Exemption | Net Assessed | ||
|
2026 |
02/23/2026 |
166,500 |
166,500 |
18,315 |
0 |
18,315 |
||
|
2025 |
02/14/2025 |
163,500 |
163,500 |
17,985 |
0 |
17,985 |
||
|
2024 |
02/13/2024 |
158,500 |
158,500 |
17,435 |
0 |
17,435 |
||
|
2023 |
02/14/2023 |
155,000 |
93,341 |
10,266 |
0 |
10,266 |
||
|
2022 |
03/15/2022 |
121,500 |
88,897 |
9,777 |
0 |
9,777 |
||
| Property Building Permit History | |||||||||||
|---|---|---|---|---|---|---|---|---|---|---|---|
| Issued | Permit # | Provided by | Bldg # | Description | Est Construction Cost | Status | |||||
| No Building Permit records returned. | |||||||||||
| Click button on building number to access detailed information: | ||||||
|---|---|---|---|---|---|---|
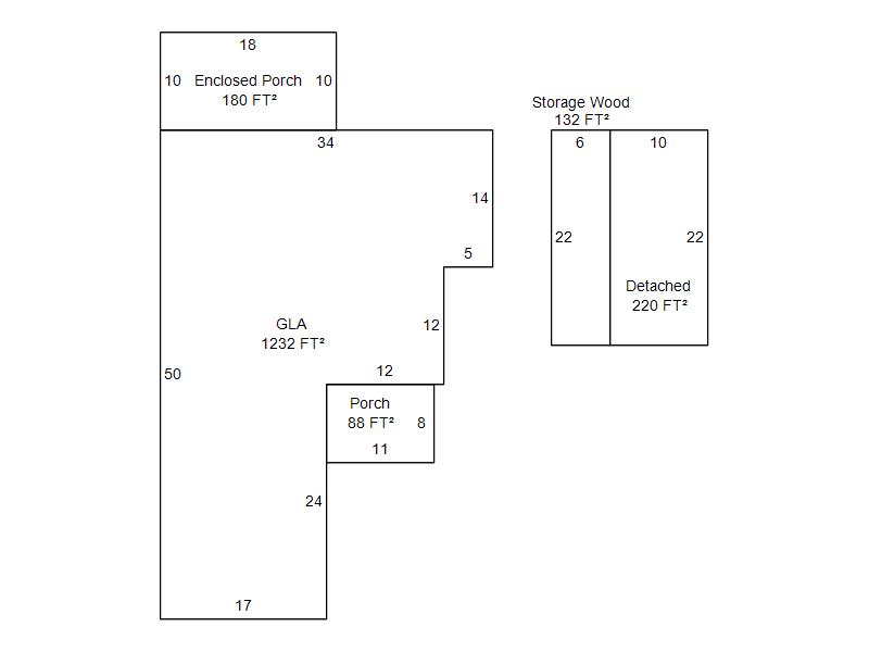
| Bldg # | Vacant/Improved Land | Bldg Description | Year Built | SqFt | # Stories | |
|
1 |
Improved |
Ranch 1 Story |
1917 |
1,232 |
1 Stories |
|