|
|
|
| Larry Stein Oklahoma County Assessor (405) 713-1200 - Public Access System |
|
|
|
|
|
|
| Real Property Display - Screen Produced 4/12/2026 2:36:02 PM | ||||
|---|---|---|---|---|
| Account: R063343640 | Type: Residential | Location: |
2319 NW 12TH ST |
|
| Building Name/Occupant: |
PENN OAKS APARTMENTS |
OKLAHOMA CITY |
||
| Owner Name 1: | WILLIAMSON BEATRICE |
Parcel PIN#: |
2718-06-334-3640 |
|
| Owner Name 2: | DAVIS RACHEL | 1/4 section #: |
2718 |
|
| Owner Name 3: | Parent Acct: |
|
||
| Billing Address: | 333 NW 5TH ST, Unit 2408 | Tax District: |
|
|
| City, State, Zip | OKLAHOMA CITY, OK 73102-3042 | School System: |
Oklahoma City #89 |
|
|
Country: (If noted) |
Land Size: |
0.1722 Acres |
||
|
Land Value: 33,750 |
|
|||
|
Sect 30-T12N-R3W Qtr SE |
YOUNGS ENGLEWOOD ADD
Block
017
Lot
000
|
|||
| Full Legal Description: YOUNGS ENGLEWOOD ADD 017 000 LOTS 9 & 10 PLUS 1/2 VAC ALLEY ADJ SD LOTS ON N |
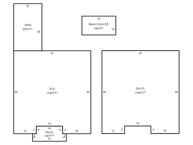
| Photo & Sketch (if available) | Comp Sales (ordered by relevancy) |
|
||||||||||||||||||
|
||||||||||||||||||||
| Value History (*The County Treasurer 405-713-1300 posts & collects actual tax amounts. Contact information HERE) | |||||||||||||
|---|---|---|---|---|---|---|---|---|---|---|---|---|---|
| Year | Market Value | Taxable Mkt Value | Gross Assessed | Exemption | Net Assessed | Millage | Est. Tax | Tax Savings | |||||
|
2026 |
487,000 |
483,525 |
53,187 |
0 |
53,187 |
122.90 |
$6,537 |
$47 |
|||||
|
2025 |
460,500 |
460,500 |
50,655 |
0 |
50,655 |
122.90 |
$6,225 |
$0 |
|||||
|
2024 |
486,500 |
486,500 |
53,515 |
0 |
53,515 |
123.89 |
$6,630 |
$0 |
|||||
|
2023 |
441,500 |
395,850 |
43,543 |
0 |
43,543 |
122.82 |
$5,348 |
$617 |
|||||
|
2022 |
377,000 |
377,000 |
41,470 |
0 |
41,470 |
117.63 |
$4,878 |
$0 |
|||||
| Property Account Status/Adjustments/Exemptions | ||
|---|---|---|
| Account # | Exemption Description | Amount |
|
R063343640 |
5% Capped Account |
0 |
| Property Deed Transaction History (Recorded in the County Clerk's Office) | ||||||||||
|---|---|---|---|---|---|---|---|---|---|---|
| Date | Type | Book | Page | Price | Grantor | Grantee | ||||
|
4/10/2023 |
|
Deeds |
$440,000 |
BROWNING JAMES C |
WILLIAMSON BEATRICE |
|||||
|
9/22/2020 |
|
Deeds |
$375,000 |
TB HOLDINGS LLC |
BROWNING JAMES C |
|||||
|
2/26/2020 |
|
Hmstd Off & |
$0 |
BROWN REALTY INVESTMENTS LLC |
TB HOLDINGS LLC |
|||||
|
8/8/2016 |
|
Deeds |
$110,000 |
SUJAUDDOWLA MOHAMMED & ERA L |
BROWN REALTY INVESTMENTS LLC |
|||||
|
4/26/2005 |
|
Deeds |
$0 |
LAWSON LESTER PATTY L HART LESLIE |
SUJAUDDOWLA MOHAMMED & ERA L |
|||||
| Last Mailed Notice of Value (N.O.V.) Information/History | ||||||||
|---|---|---|---|---|---|---|---|---|
| Year | Date | Market Value | Taxable Market Value | Gross Assessed | Exemption | Net Assessed | ||
|
2026 |
02/23/2026 |
487,000 |
483,525 |
53,187 |
0 |
53,187 |
||
|
2024 |
02/13/2024 |
486,500 |
486,500 |
53,515 |
0 |
53,515 |
||
|
2023 |
02/14/2023 |
441,500 |
395,850 |
43,543 |
0 |
43,543 |
||
|
2022 |
03/15/2022 |
377,000 |
377,000 |
41,470 |
0 |
41,470 |
||
|
2021 |
03/19/2021 |
371,000 |
371,000 |
40,810 |
0 |
40,810 |
||
| Property Building Permit History | ||||||
|---|---|---|---|---|---|---|
| Issued | Permit # | Provided by | Bldg # | Description | Est Construction Cost | Status |
|
8/27/2018 |
|
|
1 |
Remodeled |
75,000 |
Inactive |
|
8/23/2018 |
|
|
1 |
Remodeled |
225,000 |
Inactive |
| Click button on building number to access detailed information: | ||||||
|---|---|---|---|---|---|---|
| Bldg # | Vacant/Improved Land | Bldg Description | Year Built | SqFt | # Stories | |
|
1 |
Improved |
Apartment <= 3 Stories |
1932 |
3,496 |
2 Stories |
|