|
|
|
| Larry Stein Oklahoma County Assessor (405) 713-1200 - Public Access System |
|
|
|
|
|
|
| Real Property Display - Screen Produced 4/14/2026 8:56:44 AM | ||||
|---|---|---|---|---|
| Account: R063347905 | Type: Residential | Location: |
2208 NW 16TH ST |
|
| Building Name/Occupant: |
|
OKLAHOMA CITY |
||
| Owner Name 1: | CRAMER MARY K & MATTHEW S |
Parcel PIN#: |
2718-06-334-7905 |
|
| Owner Name 2: | 1/4 section #: |
2718 |
||
| Owner Name 3: | Parent Acct: |
|
||
| Billing Address: | 550 VETERANS UNITED DR | Tax District: |
|
|
| City, State, Zip | COLUMBIA, MO 65201-8399 | School System: |
Oklahoma City #89 |
|
|
Country: (If noted) |
Land Size: |
0.1607 Acres |
||
|
Land Value: 31,500 |
|
|||
|
Sect 30-T12N-R3W Qtr SE |
YOUNGS ENGLEWOOD ADD
Block
033
Lot
000
|
|||
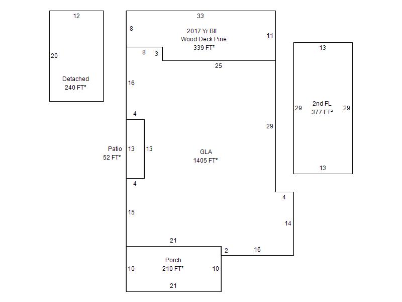
| Full Legal Description: YOUNGS ENGLEWOOD ADD 033 000 LOTS 44 & 45 |
| Photo & Sketch (if available) | Comp Sales (ordered by relevancy) |
|
||||||||||||||||||
|
||||||||||||||||||||
| Value History (*The County Treasurer 405-713-1300 posts & collects actual tax amounts. Contact information HERE) | |||||||||||||
|---|---|---|---|---|---|---|---|---|---|---|---|---|---|
| Year | Market Value | Taxable Mkt Value | Gross Assessed | Exemption | Net Assessed | Millage | Est. Tax | Tax Savings | |||||
|
2026 |
382,500 |
382,500 |
42,075 |
0 |
42,075 |
122.90 |
$5,171 |
$0 |
|||||
|
2025 |
386,500 |
386,500 |
42,515 |
0 |
42,515 |
122.90 |
$5,225 |
$0 |
|||||
|
2024 |
376,500 |
376,500 |
41,415 |
0 |
41,415 |
123.89 |
$5,131 |
$0 |
|||||
|
2023 |
366,500 |
366,500 |
40,315 |
0 |
40,315 |
122.82 |
$4,951 |
$0 |
|||||
|
2022 |
317,000 |
259,638 |
28,560 |
0 |
28,560 |
117.63 |
$3,360 |
$742 |
|||||
| Property Account Status/Adjustments/Exemptions | ||
|---|---|---|
| Account # | Exemption Description | Amount |
|
R063347905 |
5% Capped Account |
0 |
| Property Deed Transaction History (Recorded in the County Clerk's Office) | ||||||||||
|---|---|---|---|---|---|---|---|---|---|---|
| Date | Type | Book | Page | Price | Grantor | Grantee | ||||
|
7/31/2023 |
|
Deeds |
$392,000 |
STAKER STEPHEN ANDREW |
CRAMER MARY K & MATTHEW S |
|||||
|
9/9/2022 |
|
Deeds |
$379,000 |
NEWMAN DAYNA |
STAKER STEPHEN ANDREW |
|||||
|
6/22/2018 |
|
Deeds |
$250,000 |
GOSSARD ANDREA L |
NEWMAN DAYNA |
|||||
|
9/4/2013 |
|
Deeds |
$128,000 |
KONDAUR CAPITAL CORPORTION TRS MATAWIN VENTURES TRUST SERIES |
GOSSARD ANDREA L |
|||||
|
7/10/2013 |
|
Hmstd Off & |
$0 |
COOK AUDREY D |
KONDAUR CAPITAL CORPORTION TRS MATAWIN VENTURES TRUST SERIES |
|||||
| Last Mailed Notice of Value (N.O.V.) Information/History | ||||||||
|---|---|---|---|---|---|---|---|---|
| Year | Date | Market Value | Taxable Market Value | Gross Assessed | Exemption | Net Assessed | ||
|
2025 |
02/14/2025 |
386,500 |
386,500 |
42,515 |
0 |
42,515 |
||
|
2024 |
02/13/2024 |
376,500 |
376,500 |
41,415 |
0 |
41,415 |
||
|
2023 |
02/14/2023 |
366,500 |
366,500 |
40,315 |
0 |
40,315 |
||
|
2022 |
03/15/2022 |
317,000 |
259,638 |
28,560 |
0 |
28,560 |
||
|
2021 |
03/19/2021 |
255,500 |
247,275 |
27,200 |
0 |
27,200 |
||
| Property Building Permit History | |||||||||||
|---|---|---|---|---|---|---|---|---|---|---|---|
| Issued | Permit # | Provided by | Bldg # | Description | Est Construction Cost | Status | |||||
| No Building Permit records returned. | |||||||||||
| Click button on building number to access detailed information: | ||||||
|---|---|---|---|---|---|---|
| Bldg # | Vacant/Improved Land | Bldg Description | Year Built | SqFt | # Stories | |
|
1 |
Improved |
1½ Story Fin |
1920 |
1,782 |
1.5 Stories |
|