|
|
|
| Larry Stein Oklahoma County Assessor (405) 713-1200 - Public Access System |
|
|
|
|
|
|
| Real Property Display - Screen Produced 4/12/2026 7:36:49 PM | ||||
|---|---|---|---|---|
| Account: R064142100 | Type: Residential | Location: |
2638 NW 12TH ST |
|
| Building Name/Occupant: |
|
OKLAHOMA CITY |
||
| Owner Name 1: | SERIGHT BRAYDEN |
Parcel PIN#: |
2719-06-414-2100 |
|
| Owner Name 2: | 1/4 section #: |
2719 |
||
| Owner Name 3: | Parent Acct: |
|
||
| Billing Address: | 2640 NW 12TH ST | Tax District: |
|
|
| City, State, Zip | OKLAHOMA CITY, OK 73107-5420 | School System: |
Oklahoma City #89 |
|
|
Country: (If noted) |
Land Size: |
0.1722 Acres |
||
|
Land Value: 32,625 |
|
|||
|
Sect 30-T12N-R3W Qtr SW |
MILLERS BOULEVARD
Block
010
Lot
007
|
|||
| Full Legal Description: MILLERS BOULEVARD 010 007 W50FT |
| Photo & Sketch (if available) | Comp Sales (ordered by relevancy) |
|
||||||||||||||||||
|
||||||||||||||||||||
| Value History (*The County Treasurer 405-713-1300 posts & collects actual tax amounts. Contact information HERE) | |||||||||||||
|---|---|---|---|---|---|---|---|---|---|---|---|---|---|
| Year | Market Value | Taxable Mkt Value | Gross Assessed | Exemption | Net Assessed | Millage | Est. Tax | Tax Savings | |||||
|
2026 |
347,000 |
347,000 |
38,170 |
0 |
38,170 |
122.90 |
$4,691 |
$0 |
|||||
|
2025 |
359,500 |
359,500 |
39,545 |
0 |
39,545 |
122.90 |
$4,860 |
$0 |
|||||
|
2024 |
196,500 |
89,382 |
9,831 |
0 |
9,831 |
123.89 |
$1,218 |
$1,460 |
|||||
|
2023 |
185,000 |
85,126 |
9,363 |
0 |
9,363 |
122.82 |
$1,150 |
$1,349 |
|||||
|
2022 |
144,500 |
81,073 |
8,917 |
0 |
8,917 |
117.63 |
$1,049 |
$821 |
|||||
| Property Account Status/Adjustments/Exemptions | ||
|---|---|---|
| Account # | Exemption Description | Amount |
|
R064142100 |
5% Capped Account |
0 |
| Property Deed Transaction History (Recorded in the County Clerk's Office) | ||||||||||
|---|---|---|---|---|---|---|---|---|---|---|
| Date | Type | Book | Page | Price | Grantor | Grantee | ||||
|
11/20/2024 |
|
Deeds |
$270,000 |
CHAPMAN FOSS BLAIR |
SERIGHT BRAYDEN |
|||||
|
10/31/2023 |
|
Hmstd Off & |
$0 |
CHAPMAN GARY S LF EST ETAL |
CHAPMAN FOSS BLAIR |
|||||
|
3/31/2016 |
|
Hmstd Off & |
$0 |
FTIE MARGIE TRS |
CHAPMAN SCOTT COLE |
|||||
|
3/31/2016 |
|
Hmstd Off & |
$0 |
CHAPMAN SCOTT COLE & BILLYE RUTH |
CHAPMAN GARY S LF EST ETAL |
|||||
|
5/16/2003 |
|
Hmstd Off & |
$0 |
CHAPMAN JACK D TRS CHAPMAN JACK D TRUST |
CHAPMAN GARY S LF EST ETAL FOSS BLAIR CHAPMAN |
|||||
| Last Mailed Notice of Value (N.O.V.) Information/History | ||||||||
|---|---|---|---|---|---|---|---|---|
| Year | Date | Market Value | Taxable Market Value | Gross Assessed | Exemption | Net Assessed | ||
|
2025 |
02/14/2025 |
359,500 |
359,500 |
39,545 |
0 |
39,545 |
||
|
2024 |
02/13/2024 |
196,500 |
89,382 |
9,831 |
0 |
9,831 |
||
|
2023 |
02/14/2023 |
185,000 |
85,126 |
9,363 |
0 |
9,363 |
||
|
2022 |
03/15/2022 |
144,500 |
81,073 |
8,917 |
0 |
8,917 |
||
|
2021 |
03/19/2021 |
119,000 |
77,213 |
8,493 |
0 |
8,493 |
||
| Property Building Permit History | |||||||||||
|---|---|---|---|---|---|---|---|---|---|---|---|
| Issued | Permit # | Provided by | Bldg # | Description | Est Construction Cost | Status | |||||
| No Building Permit records returned. | |||||||||||
| Click button on building number to access detailed information: | ||||||
|---|---|---|---|---|---|---|
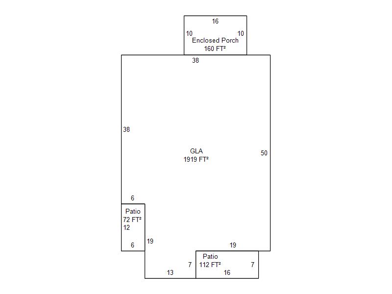
| Bldg # | Vacant/Improved Land | Bldg Description | Year Built | SqFt | # Stories | |
|
1 |
Improved |
Duplex One Story |
1926 |
1,919 |
1 Stories |
|