|
|
|
| Larry Stein Oklahoma County Assessor (405) 713-1200 - Public Access System |
|
|
|
|
|
|
| Real Property Display - Screen Produced 4/12/2026 7:36:49 PM | ||||
|---|---|---|---|---|
| Account: R064144650 | Type: Residential | Location: |
2732 NW 15TH ST |
|
| Building Name/Occupant: |
|
OKLAHOMA CITY |
||
| Owner Name 1: | GREEN RYAN |
Parcel PIN#: |
2719-06-414-4650 |
|
| Owner Name 2: | 1/4 section #: |
2719 |
||
| Owner Name 3: | Parent Acct: |
|
||
| Billing Address: | 2732 NW 15TH ST | Tax District: |
|
|
| City, State, Zip | OKLAHOMA CITY, OK 73107-4826 | School System: |
Oklahoma City #89 |
|
|
Country: (If noted) |
Land Size: |
0.1722 Acres |
||
|
Land Value: 32,625 |
|
|||
|
Sect 30-T12N-R3W Qtr SW |
MILLERS BOULEVARD
Block
016
Lot
010
|
|||
| Full Legal Description: MILLERS BOULEVARD 016 010 W50FT |
| Photo & Sketch (if available) | Comp Sales (ordered by relevancy) |
|
||||||||||||||||||
|
||||||||||||||||||||
| Value History (*The County Treasurer 405-713-1300 posts & collects actual tax amounts. Contact information HERE) | |||||||||||||
|---|---|---|---|---|---|---|---|---|---|---|---|---|---|
| Year | Market Value | Taxable Mkt Value | Gross Assessed | Exemption | Net Assessed | Millage | Est. Tax | Tax Savings | |||||
|
2026 |
278,000 |
278,000 |
30,580 |
0 |
30,580 |
122.90 |
$3,758 |
$0 |
|||||
|
2025 |
284,500 |
284,500 |
31,295 |
0 |
31,295 |
122.90 |
$3,846 |
$0 |
|||||
|
2024 |
271,000 |
218,212 |
24,003 |
0 |
24,003 |
123.89 |
$2,974 |
$719 |
|||||
|
2023 |
262,500 |
207,821 |
22,859 |
0 |
22,859 |
122.82 |
$2,808 |
$739 |
|||||
|
2022 |
216,000 |
197,925 |
21,771 |
0 |
21,771 |
117.63 |
$2,561 |
$234 |
|||||
| Property Account Status/Adjustments/Exemptions | ||
|---|---|---|
| Account # | Exemption Description | Amount |
|
R064144650 |
5% Capped Account |
0 |
| Property Deed Transaction History (Recorded in the County Clerk's Office) | ||||||||||
|---|---|---|---|---|---|---|---|---|---|---|
| Date | Type | Book | Page | Price | Grantor | Grantee | ||||
|
7/30/2024 |
|
Deeds |
$230,000 |
CORUM WHITNEY & JACOB |
GREEN RYAN |
|||||
|
7/24/2019 |
|
Deeds |
$177,000 |
WEBSTER ADAM & JAYMIE |
CORUM WHITNEY & JACOB |
|||||
|
12/19/2013 |
|
Deeds |
$150,000 |
FORGET BRENT D |
WEBSTER ADAM & JAYMIE |
|||||
|
5/20/2010 |
|
Deeds |
$127,500 |
BAKER ORIE T & CLYTIE |
FORGET BRENT D |
|||||
|
1/31/2008 |
|
Deeds |
$125,000 |
SCHUTTEN JOHN T & TERESITA |
BAKER ORIE T & CLYTIE |
|||||
| Last Mailed Notice of Value (N.O.V.) Information/History | ||||||||
|---|---|---|---|---|---|---|---|---|
| Year | Date | Market Value | Taxable Market Value | Gross Assessed | Exemption | Net Assessed | ||
|
2025 |
02/14/2025 |
284,500 |
284,500 |
31,295 |
0 |
31,295 |
||
|
2024 |
02/13/2024 |
271,000 |
218,212 |
24,003 |
0 |
24,003 |
||
|
2023 |
02/14/2023 |
262,500 |
207,821 |
22,859 |
0 |
22,859 |
||
|
2022 |
03/15/2022 |
216,000 |
197,925 |
21,771 |
0 |
21,771 |
||
|
2021 |
03/19/2021 |
188,500 |
188,500 |
20,735 |
0 |
20,735 |
||
| Property Building Permit History | |||||||||||
|---|---|---|---|---|---|---|---|---|---|---|---|
| Issued | Permit # | Provided by | Bldg # | Description | Est Construction Cost | Status | |||||
| No Building Permit records returned. | |||||||||||
| Click button on building number to access detailed information: | ||||||
|---|---|---|---|---|---|---|
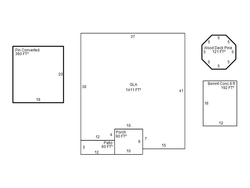
| Bldg # | Vacant/Improved Land | Bldg Description | Year Built | SqFt | # Stories | |
|
1 |
Improved |
Ranch 1 Story |
1928 |
1,411 |
1 Stories |
|