|
|
|
| Larry Stein Oklahoma County Assessor (405) 713-1200 - Public Access System |
|
|
|
|
|
|
| Real Property Display - Screen Produced 4/12/2026 4:13:18 PM | ||||
|---|---|---|---|---|
| Account: R064145280 | Type: Residential | Location: |
2728 NW 11TH ST |
|
| Building Name/Occupant: |
|
OKLAHOMA CITY |
||
| Owner Name 1: | OCONNOR PATRICK JOHN |
Parcel PIN#: |
2719-06-414-5280 |
|
| Owner Name 2: | 1/4 section #: |
2719 |
||
| Owner Name 3: | Parent Acct: |
|
||
| Billing Address: | 2728 NW 11TH ST | Tax District: |
|
|
| City, State, Zip | OKLAHOMA CITY, OK 73107-5416 | School System: |
Oklahoma City #89 |
|
|
Country: (If noted) |
Land Size: |
0.1722 Acres |
||
|
Land Value: 32,625 |
|
|||
|
Sect 30-T12N-R3W Qtr SW |
MILLERS BOULEVARD
Block
020
Lot
000
|
|||
| Full Legal Description: MILLERS BOULEVARD 020 000 E25FT OF LOT 10 & W25FT LOT 11 |
| Photo & Sketch (if available) | Comp Sales (ordered by relevancy) |
|
||||||||||||||||||
|
||||||||||||||||||||
| Value History (*The County Treasurer 405-713-1300 posts & collects actual tax amounts. Contact information HERE) | |||||||||||||
|---|---|---|---|---|---|---|---|---|---|---|---|---|---|
| Year | Market Value | Taxable Mkt Value | Gross Assessed | Exemption | Net Assessed | Millage | Est. Tax | Tax Savings | |||||
|
2026 |
210,000 |
210,000 |
23,100 |
1,000 |
22,100 |
122.90 |
$2,716 |
$123 |
|||||
|
2025 |
215,500 |
213,003 |
23,429 |
0 |
23,429 |
122.90 |
$2,880 |
$34 |
|||||
|
2024 |
211,000 |
202,860 |
22,314 |
0 |
22,314 |
123.89 |
$2,765 |
$111 |
|||||
|
2023 |
204,500 |
193,200 |
21,252 |
0 |
21,252 |
122.82 |
$2,610 |
$153 |
|||||
|
2022 |
184,000 |
184,000 |
20,240 |
0 |
20,240 |
117.63 |
$2,381 |
$0 |
|||||
| Property Account Status/Adjustments/Exemptions | ||
|---|---|---|
| Account # | Exemption Description | Amount |
|
R064145280 |
Homestead |
1,000 |
| Property Deed Transaction History (Recorded in the County Clerk's Office) | ||||||||||
|---|---|---|---|---|---|---|---|---|---|---|
| Date | Type | Book | Page | Price | Grantor | Grantee | ||||
|
11/6/2025 |
|
Deeds |
$209,500 |
JOHNSON MEGAN G |
OCONNOR PATRICK JOHN |
|||||
|
5/28/2021 |
|
Deeds |
$186,000 |
PHILLIPS SETH B |
JOHNSON MEGAN G |
|||||
|
4/5/2019 |
|
Deeds |
$150,000 |
KARLOVITZ JENNIFER S |
PHILLIPS SETH B |
|||||
|
9/6/2013 |
|
Deeds |
$117,000 |
LEONARD DONNIE |
KARLOVITZ JENNIFER S |
|||||
|
12/13/2012 |
|
Deeds |
$68,500 |
HOLLOWAY PAULINE J TRS HOLLOWAY PAULINE 2009 REV TRUST |
LEONARD DONNIE |
|||||
| Last Mailed Notice of Value (N.O.V.) Information/History | ||||||||
|---|---|---|---|---|---|---|---|---|
| Year | Date | Market Value | Taxable Market Value | Gross Assessed | Exemption | Net Assessed | ||
|
2025 |
02/14/2025 |
215,500 |
213,003 |
23,429 |
0 |
23,429 |
||
|
2024 |
02/13/2024 |
211,000 |
202,860 |
22,314 |
0 |
22,314 |
||
|
2023 |
02/14/2023 |
204,500 |
193,200 |
21,252 |
0 |
21,252 |
||
|
2022 |
03/15/2022 |
184,000 |
184,000 |
20,240 |
0 |
20,240 |
||
|
2021 |
03/19/2021 |
156,500 |
145,745 |
16,031 |
1,000 |
15,031 |
||
| Property Building Permit History | |||||||||||
|---|---|---|---|---|---|---|---|---|---|---|---|
| Issued | Permit # | Provided by | Bldg # | Description | Est Construction Cost | Status | |||||
| No Building Permit records returned. | |||||||||||
| Click button on building number to access detailed information: | ||||||
|---|---|---|---|---|---|---|
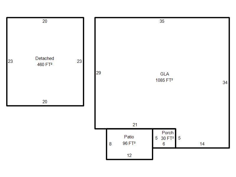
| Bldg # | Vacant/Improved Land | Bldg Description | Year Built | SqFt | # Stories | |
|
1 |
Improved |
Ranch 1 Story |
1930 |
1,085 |
1 Stories |
|