|
|
|
| Larry Stein Oklahoma County Assessor (405) 713-1200 - Public Access System |
|
|
|
|
|
|
| Real Property Display - Screen Produced 4/12/2026 2:40:32 PM | ||||
|---|---|---|---|---|
| Account: R064145340 | Type: Residential | Location: |
2700 W PARK PL |
|
| Building Name/Occupant: |
|
OKLAHOMA CITY |
||
| Owner Name 1: | PEONIES & SAGE LTD |
Parcel PIN#: |
2719-06-414-5340 |
|
| Owner Name 2: | 1/4 section #: |
2719 |
||
| Owner Name 3: | Parent Acct: |
|
||
| Billing Address: | 3400 SOMERSET FARMS RD | Tax District: |
|
|
| City, State, Zip | NEWALLA, OK 74857-9034 | School System: |
Oklahoma City #89 |
|
|
Country: (If noted) |
Land Size: |
0.1722 Acres |
||
|
Land Value: 32,625 |
|
|||
|
Sect 30-T12N-R3W Qtr SW |
MILLERS BOULEVARD
Block
021
Lot
000
|
|||
| Full Legal Description: MILLERS BOULEVARD 021 000 E50FT OF LOT 1 & E50FT OF N 1/2 OF LOT 2 |
| Photo & Sketch (if available) | Comp Sales (ordered by relevancy) |
|
||||||||||||||||||
|
||||||||||||||||||||
| Value History (*The County Treasurer 405-713-1300 posts & collects actual tax amounts. Contact information HERE) | |||||||||||||
|---|---|---|---|---|---|---|---|---|---|---|---|---|---|
| Year | Market Value | Taxable Mkt Value | Gross Assessed | Exemption | Net Assessed | Millage | Est. Tax | Tax Savings | |||||
|
2026 |
161,500 |
161,500 |
17,765 |
0 |
17,765 |
122.90 |
$2,183 |
$0 |
|||||
|
2025 |
162,500 |
110,685 |
12,174 |
1,000 |
11,174 |
122.90 |
$1,373 |
$823 |
|||||
|
2024 |
158,000 |
107,462 |
11,820 |
1,000 |
10,820 |
123.89 |
$1,341 |
$813 |
|||||
|
2023 |
152,500 |
104,333 |
11,476 |
1,000 |
10,476 |
122.82 |
$1,287 |
$774 |
|||||
|
2022 |
122,500 |
101,295 |
11,141 |
1,000 |
10,141 |
117.63 |
$1,193 |
$392 |
|||||
| Property Account Status/Adjustments/Exemptions | ||||||
|---|---|---|---|---|---|---|
| Account # | Exemption Description | Amount | ||||
| No adjustment/exemption records returned. | ||||||
| Property Deed Transaction History (Recorded in the County Clerk's Office) | ||||||||||
|---|---|---|---|---|---|---|---|---|---|---|
| Date | Type | Book | Page | Price | Grantor | Grantee | ||||
|
1/22/2025 |
|
Deeds |
$155,000 |
RAYBURN SCOTT GENE TRS |
PEONIES & SAGE LTD |
|||||
|
12/22/2023 |
|
Deeds |
$0 |
RAYBURN SCOTT G |
RAYBURN SCOTT GENE TRS |
|||||
|
1/10/2014 |
|
Deeds |
$92,000 |
SCHWEITZER DOUGLAS LOYD |
RAYBURN SCOTT G |
|||||
|
6/11/2002 |
|
Deeds |
$24,500 |
DAY JANA KAY |
SCHWEITZER DOUGLAS LOYD |
|||||
|
6/5/2002 |
|
Deeds |
$0 |
MEEK RAY V & WILLA E |
MEEK WILLA E |
|||||
| Last Mailed Notice of Value (N.O.V.) Information/History | ||||||||
|---|---|---|---|---|---|---|---|---|
| Year | Date | Market Value | Taxable Market Value | Gross Assessed | Exemption | Net Assessed | ||
|
2026 |
02/23/2026 |
161,500 |
161,500 |
17,765 |
0 |
17,765 |
||
|
2025 |
02/14/2025 |
162,500 |
110,685 |
12,174 |
1,000 |
11,174 |
||
|
2025 |
03/28/2025 |
162,500 |
110,685 |
12,174 |
1,000 |
11,174 |
||
|
2024 |
02/13/2024 |
158,000 |
107,462 |
11,820 |
1,000 |
10,820 |
||
|
2023 |
02/14/2023 |
152,500 |
104,333 |
11,476 |
1,000 |
10,476 |
||
| Property Building Permit History | |||||||||||
|---|---|---|---|---|---|---|---|---|---|---|---|
| Issued | Permit # | Provided by | Bldg # | Description | Est Construction Cost | Status | |||||
| No Building Permit records returned. | |||||||||||
| Click button on building number to access detailed information: | ||||||
|---|---|---|---|---|---|---|
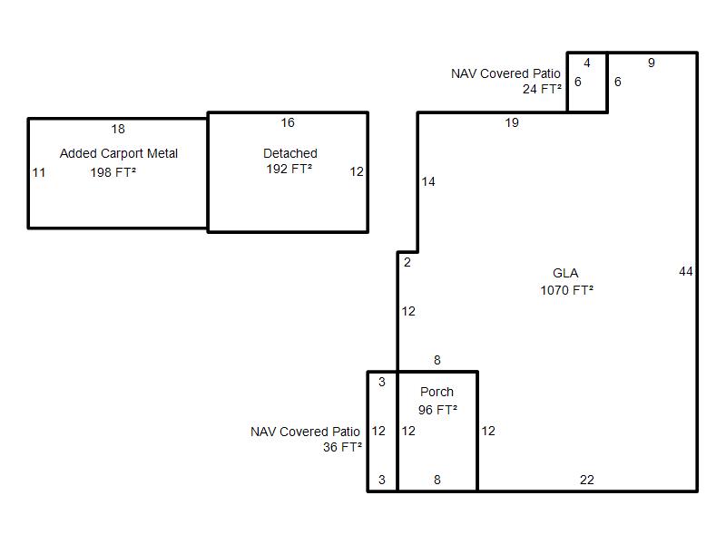
| Bldg # | Vacant/Improved Land | Bldg Description | Year Built | SqFt | # Stories | |
|
1 |
Improved |
Ranch 1 Story |
1928 |
1,070 |
1 Stories |
|