|
|
|
| Larry Stein Oklahoma County Assessor (405) 713-1200 - Public Access System |
|
|
|
|
|
|
| Real Property Display - Screen Produced 4/12/2026 2:48:33 PM | ||||
|---|---|---|---|---|
| Account: R063580250 | Type: Residential | Location: |
2839 NW 22ND ST |
|
| Building Name/Occupant: |
|
OKLAHOMA CITY |
||
| Owner Name 1: | MOORE KASEY |
Parcel PIN#: |
2720-06-358-0250 |
|
| Owner Name 2: | 1/4 section #: |
2720 |
||
| Owner Name 3: | Parent Acct: |
|
||
| Billing Address: | 2839 NW 22ND ST | Tax District: |
|
|
| City, State, Zip | OKLAHOMA CITY, OK 73107-3117 | School System: |
Oklahoma City #89 |
|
|
Country: (If noted) |
Land Size: |
0.1722 Acres |
||
|
Land Value: 35,250 |
|
|||
|
Sect 30-T12N-R3W Qtr NW |
CRESTWOOD ADDITION
Block
00A
Lot
000
|
|||
| Full Legal Description: CRESTWOOD ADDITION 00A 000 LOTS 51 & 52 |
| Photo & Sketch (if available) | Comp Sales (ordered by relevancy) |
|
||||||||||||||||||
|
||||||||||||||||||||
| Value History (*The County Treasurer 405-713-1300 posts & collects actual tax amounts. Contact information HERE) | |||||||||||||
|---|---|---|---|---|---|---|---|---|---|---|---|---|---|
| Year | Market Value | Taxable Mkt Value | Gross Assessed | Exemption | Net Assessed | Millage | Est. Tax | Tax Savings | |||||
|
2026 |
226,500 |
226,500 |
24,915 |
1,000 |
23,915 |
122.90 |
$2,939 |
$123 |
|||||
|
2025 |
229,000 |
226,085 |
24,869 |
1,000 |
23,869 |
122.90 |
$2,934 |
$162 |
|||||
|
2024 |
219,500 |
219,500 |
24,145 |
1,000 |
23,145 |
123.89 |
$2,867 |
$124 |
|||||
|
2023 |
151,000 |
151,000 |
16,610 |
0 |
16,610 |
122.82 |
$2,040 |
$0 |
|||||
|
2022 |
156,500 |
127,627 |
14,037 |
0 |
14,037 |
117.63 |
$1,651 |
$374 |
|||||
| Property Account Status/Adjustments/Exemptions | ||
|---|---|---|
| Account # | Exemption Description | Amount |
|
R063580250 |
3% Cap Homestead |
0 |
|
R063580250 |
Homestead |
1,000 |
| Property Deed Transaction History (Recorded in the County Clerk's Office) | ||||||||||
|---|---|---|---|---|---|---|---|---|---|---|
| Date | Type | Book | Page | Price | Grantor | Grantee | ||||
|
3/21/2023 |
|
Deeds |
$235,000 |
ACS PROPERTIES LLC |
MOORE KASEY |
|||||
|
1/7/2022 |
|
Deeds |
$147,500 |
CARR STEVE & NANCY L |
ACS PROPERTIES LLC |
|||||
|
9/9/2014 |
|
Deeds |
$105,000 |
GIPSON DAVID D |
CARR STEVE & NANCY L |
|||||
|
9/4/1998 |
|
Historical |
$43,500 |
ROSELL JOSE A MD |
GIPSON DAVID D |
|||||
|
9/21/1995 |
|
Historical |
$0 |
WAGNER PAUL J ETAL |
ROSELL JOSE A MD |
|||||
| Last Mailed Notice of Value (N.O.V.) Information/History | ||||||||
|---|---|---|---|---|---|---|---|---|
| Year | Date | Market Value | Taxable Market Value | Gross Assessed | Exemption | Net Assessed | ||
|
2026 |
02/23/2026 |
226,500 |
226,500 |
24,915 |
1,000 |
23,915 |
||
|
2025 |
02/14/2025 |
229,000 |
226,085 |
24,869 |
1,000 |
23,869 |
||
|
2024 |
02/13/2024 |
219,500 |
219,500 |
24,145 |
0 |
24,145 |
||
|
2023 |
02/14/2023 |
151,000 |
151,000 |
16,610 |
0 |
16,610 |
||
|
2022 |
03/15/2022 |
156,500 |
127,627 |
14,037 |
0 |
14,037 |
||
| Property Building Permit History | ||||||
|---|---|---|---|---|---|---|
| Issued | Permit # | Provided by | Bldg # | Description | Est Construction Cost | Status |
|
2/1/2018 |
|
|
|
Burn - Trip |
2,000 |
Inactive |
| Click button on building number to access detailed information: | ||||||
|---|---|---|---|---|---|---|
| Bldg # | Vacant/Improved Land | Bldg Description | Year Built | SqFt | # Stories | |
|
1 |
Improved |
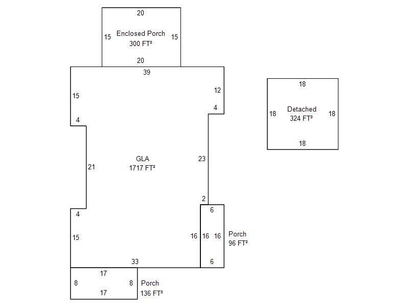
Duplex One Story |
1932 |
1,717 |
1 Stories |
|