Larry Stein Oklahoma County Assessor (405) 713-1200 - Public Access System
Home Contact Us Guest Book Map Search New Search
Real Property Display - Screen Produced   4/20/2026 3:54:06 AM 
Account: R063580610  Type: Residential

  

Location:

2753 NW 22ND ST

Building Name/Occupant:

 

OKLAHOMA CITY

Owner Name 1:  MONTOYA NESTOR & GLADYS

Parcel PIN#:

2720-06-358-0610

Owner Name 2:    1/4 section #:

2720

Owner Name 3:    Parent Acct:

 

Billing Address:  2753 NW 22ND ST Tax District:

City, State, Zip  OKLAHOMA CITY, OK  73107-3241 School System:

Oklahoma City #89

Country: (If noted)

  

Land Size:

0.1722  Acres

Personal Property

Land Value: 35,250 

Treasurer:

Sect 30-T12N-R3W Qtr NW

 CRESTWOOD ADDITION   Block 001  Lot 000   Subdivision Sales
 Full Legal Description:  CRESTWOOD ADDITION 001 000 LOTS 63 & 64

NOTE:  The following sales may or may not be used to determine Fair Market Value

Photo & Sketch (if available) Sales  Sales Report

 2629 NW 11TH ST OKLAHOMA CITY, OK

11/24/2025

 $229,000 

 2832 NW 19TH ST OKLAHOMA CITY, OK

08/21/2025

 $215,000 

 2518 NW 19TH ST OKLAHOMA CITY, OK

08/22/2025

 $190,000 

 2635 NW 12TH ST OKLAHOMA CITY, OK

04/11/2025

 $244,000 

 2719 NW 14TH ST OKLAHOMA CITY, OK

09/15/2025

 $183,500 

 2530 NW 20TH ST OKLAHOMA CITY, OK

03/11/2024

 $267,000 

Value History  (*The County Treasurer 405-713-1300 posts & collects actual tax amounts.  Contact information  HERE)
Year Market Value Taxable Mkt Value Gross Assessed Exemption Net Assessed Millage Est. Tax Tax Savings

2026

225,500 

225,500 

24,805 

24,805 

122.90 

$3,049 

$0 

2025

139,000 

139,000 

15,290 

15,290 

122.90 

$1,879 

$0 

2024

174,000 

56,525 

6,217 

1,000 

5,217 

123.89 

$646 

$1,725 

[1/10]
Property Account Status/Adjustments/Exemptions
Account # Exemption Description Amount

R063580610

5% Capped Account

Property Deed Transaction History   (Recorded in the County Clerk's Office)
Date Type Book Page Price Grantor Grantee

7/13/2024

Deeds

15818

279

 $150,000 

LAWSON MARY ETAL

MONTOYA NESTOR & GLADYS

12/8/2003

Deeds

9138

297

 $0 

LAWSON JAMES O

LAWSON MARY ETAL

1/1/1986

Historical

5426

851

 $0 

 

LAWSON JAMES O

Last Mailed Notice of Value (N.O.V.) Information/History
Year Date Market Value Taxable Market Value Gross Assessed Exemption Net Assessed

2026

03/30/2026

225,500 

225,500 

24,805 

24,805 

2025

03/28/2025

139,000 

139,000 

15,290 

15,290 

2024

02/13/2024

174,000 

56,525 

6,217 

1,000 

5,217 

[1/5]
Property Building Permit History
Issued Permit # Provided by Bldg # Description Est Construction Cost Status

7/24/2024

 

1

Remodeled

  

Inactive

Click button below to access detailed information and additional property photos:
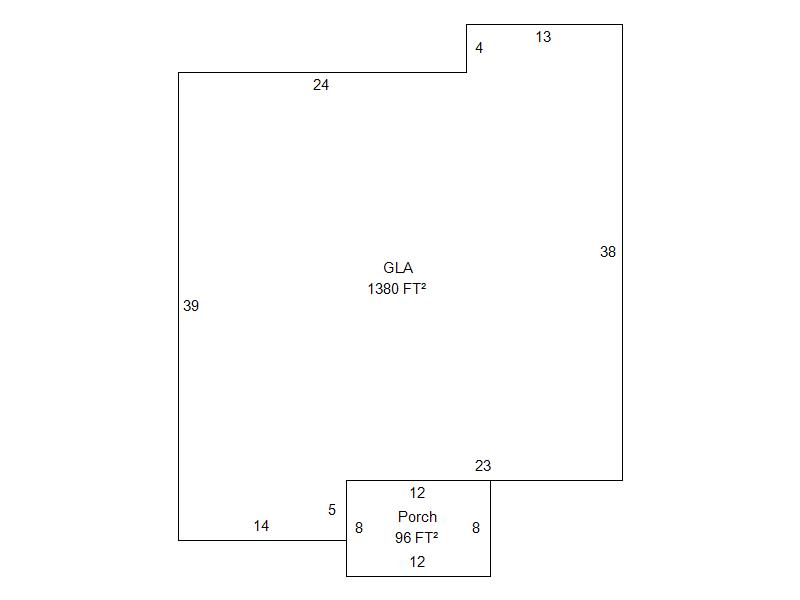
  Bldg # Vacant/Improved Land Bldg Description Year Built SqFt # Stories

Click

1

Improved

Ranch 1 Story

1940

1,380 

1 Stories