|
|
|
| Larry Stein Oklahoma County Assessor (405) 713-1200 - Public Access System |
|
|
|
|
|
|
| Real Property Display - Screen Produced 4/12/2026 2:40:32 PM | ||||
|---|---|---|---|---|
| Account: R063585720 | Type: Residential | Location: |
2530 NW 20TH ST |
|
| Building Name/Occupant: |
|
OKLAHOMA CITY |
||
| Owner Name 1: | KOCH SHELBY A |
Parcel PIN#: |
2720-06-358-5720 |
|
| Owner Name 2: | 1/4 section #: |
2720 |
||
| Owner Name 3: | Parent Acct: |
|
||
| Billing Address: | 2530 NW 20TH ST | Tax District: |
|
|
| City, State, Zip | OKLAHOMA CITY, OK 73107-3232 | School System: |
Oklahoma City #89 |
|
|
Country: (If noted) |
Land Size: |
0.1607 Acres |
||
|
Land Value: 32,900 |
|
|||
|
Sect 30-T12N-R3W Qtr NW |
CRESTWOOD ADDITION
Block
011
Lot
000
|
|||
| Full Legal Description: CRESTWOOD ADDITION 011 000 LOTS 15 & 16 |
| Photo & Sketch (if available) | Comp Sales (ordered by relevancy) |
|
||||||||||||||||||
|
||||||||||||||||||||
| Value History (*The County Treasurer 405-713-1300 posts & collects actual tax amounts. Contact information HERE) | |||||||||||||
|---|---|---|---|---|---|---|---|---|---|---|---|---|---|
| Year | Market Value | Taxable Mkt Value | Gross Assessed | Exemption | Net Assessed | Millage | Est. Tax | Tax Savings | |||||
|
2026 |
243,500 |
243,500 |
26,785 |
0 |
26,785 |
122.90 |
$3,292 |
$0 |
|||||
|
2025 |
249,500 |
249,500 |
27,445 |
0 |
27,445 |
122.90 |
$3,373 |
$0 |
|||||
|
2024 |
245,500 |
245,500 |
27,005 |
0 |
27,005 |
123.89 |
$3,346 |
$0 |
|||||
|
2023 |
238,500 |
182,505 |
20,074 |
0 |
20,074 |
122.82 |
$2,466 |
$757 |
|||||
|
2022 |
195,000 |
173,815 |
19,119 |
0 |
19,119 |
117.63 |
$2,249 |
$274 |
|||||
| Property Account Status/Adjustments/Exemptions | ||
|---|---|---|
| Account # | Exemption Description | Amount |
|
R063585720 |
5% Capped Account |
0 |
| Property Deed Transaction History (Recorded in the County Clerk's Office) | ||||||||||
|---|---|---|---|---|---|---|---|---|---|---|
| Date | Type | Book | Page | Price | Grantor | Grantee | ||||
|
3/11/2024 |
|
Deeds |
$267,000 |
BRANDON SWEARINGEN RENOVATIONS LLC |
KOCH SHELBY A |
|||||
|
5/19/2023 |
|
Deeds |
$170,500 |
KENNEY LINDA K |
BRANDON SWEARINGEN RENOVATIONS LLC |
|||||
|
12/17/2001 |
|
Deeds |
$73,000 |
CULLENS ROCKY D |
KENNEY LINDA K |
|||||
|
6/3/1998 |
|
Historical |
$67,500 |
DK PROPERTIES |
CULLENS ROCKY D |
|||||
|
6/1/1998 |
|
Historical |
$0 |
KEESEE KENNETH E |
DK PROPERTIES |
|||||
| Last Mailed Notice of Value (N.O.V.) Information/History | ||||||||
|---|---|---|---|---|---|---|---|---|
| Year | Date | Market Value | Taxable Market Value | Gross Assessed | Exemption | Net Assessed | ||
|
2025 |
02/14/2025 |
249,500 |
249,500 |
27,445 |
0 |
27,445 |
||
|
2024 |
02/13/2024 |
245,500 |
245,500 |
27,005 |
0 |
27,005 |
||
|
2024 |
04/05/2024 |
245,500 |
245,500 |
27,005 |
0 |
27,005 |
||
|
2023 |
02/14/2023 |
238,500 |
182,505 |
20,074 |
0 |
20,074 |
||
|
2022 |
03/15/2022 |
195,000 |
173,815 |
19,119 |
0 |
19,119 |
||
| Property Building Permit History | |||||||||||
|---|---|---|---|---|---|---|---|---|---|---|---|
| Issued | Permit # | Provided by | Bldg # | Description | Est Construction Cost | Status | |||||
| No Building Permit records returned. | |||||||||||
| Click button on building number to access detailed information: | ||||||
|---|---|---|---|---|---|---|
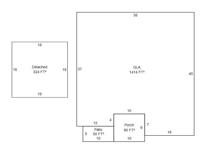
| Bldg # | Vacant/Improved Land | Bldg Description | Year Built | SqFt | # Stories | |
|
1 |
Improved |
Ranch 1 Story |
1928 |
1,414 |
1 Stories |
|