|
|
|
| Larry Stein Oklahoma County Assessor (405) 713-1200 - Public Access System |
|
|
|
|
|
|
| Real Property Display - Screen Produced 4/9/2026 5:40:36 AM | ||||
|---|---|---|---|---|
| Account: R063580820 | Type: Residential | Location: |
2532 NW 23RD ST |
|
| Building Name/Occupant: |
|
OKLAHOMA CITY |
||
| Owner Name 1: | SIX 10 INVESTMENTS LLC |
Parcel PIN#: |
2720-06-358-0820 |
|
| Owner Name 2: | 1/4 section #: |
2720 |
||
| Owner Name 3: | Parent Acct: |
|
||
| Billing Address: | 2509 STILL MEADOW RD | Tax District: |
|
|
| City, State, Zip | EDMOND, OK 73013 | School System: |
Oklahoma City #89 |
|
|
Country: (If noted) |
UNITED STATES |
Land Size: |
0.1722 Acres |
|
|
Land Value: 35,250 |
|
|||
|
Sect 30-T12N-R3W Qtr NW |
CRESTWOOD ADDITION
Block
002
Lot
000
|
|||
| Full Legal Description: CRESTWOOD ADDITION 002 000 LOTS 15 & 16 |
| Photo & Sketch (if available) | Comp Sales (ordered by relevancy) |
|
||||||||||||||||||
|
||||||||||||||||||||
| Value History (*The County Treasurer 405-713-1300 posts & collects actual tax amounts. Contact information HERE) | |||||||||||||
|---|---|---|---|---|---|---|---|---|---|---|---|---|---|
| Year | Market Value | Taxable Mkt Value | Gross Assessed | Exemption | Net Assessed | Millage | Est. Tax | Tax Savings | |||||
|
2026 |
163,500 |
163,500 |
17,985 |
0 |
17,985 |
122.90 |
$2,210 |
$0 |
|||||
|
2025 |
164,500 |
164,500 |
18,095 |
0 |
18,095 |
122.90 |
$2,224 |
$0 |
|||||
|
2024 |
159,000 |
84,341 |
9,276 |
0 |
9,276 |
123.89 |
$1,149 |
$1,017 |
|||||
|
2023 |
153,000 |
80,325 |
8,835 |
0 |
8,835 |
122.82 |
$1,085 |
$982 |
|||||
|
2022 |
76,500 |
76,500 |
8,415 |
0 |
8,415 |
117.63 |
$990 |
$0 |
|||||
| Property Account Status/Adjustments/Exemptions | ||
|---|---|---|
| Account # | Exemption Description | Amount |
|
R063580820 |
5% Capped Account |
0 |
| Property Deed Transaction History (Recorded in the County Clerk's Office) | |||||||
|---|---|---|---|---|---|---|---|
| Date | Type | Book | Page | Price | Grantor | Grantee | |
|
10/16/2024 |
|
Deeds |
$125,000 |
BROOKS ILEANA |
SIX 10 INVESTMENTS LLC |
||
|
7/1/2021 |
|
Deeds |
$75,000 |
RAMIREZ ROBERTO G & SILVIA BARRAGAN |
BROOKS ILEANA |
||
|
10/1/1999 |
|
Deeds |
$40,000 |
HANLIN ROBERT C & NELLYNE B |
RAMIREZ ROBERTO G & SILVIA BARRAGAN |
||
|
3/1/1979 |
|
Historical |
$0 |
|
HANLIN ROBERT C & NELLYNE B |
||
| Last Mailed Notice of Value (N.O.V.) Information/History | ||||||||
|---|---|---|---|---|---|---|---|---|
| Year | Date | Market Value | Taxable Market Value | Gross Assessed | Exemption | Net Assessed | ||
|
2025 |
02/14/2025 |
164,500 |
164,500 |
18,095 |
0 |
18,095 |
||
|
2024 |
02/13/2024 |
159,000 |
84,341 |
9,276 |
0 |
9,276 |
||
|
2023 |
02/14/2023 |
153,000 |
80,325 |
8,835 |
0 |
8,835 |
||
|
2021 |
03/19/2021 |
109,500 |
97,240 |
10,696 |
0 |
10,696 |
||
|
2020 |
03/10/2020 |
99,000 |
92,610 |
10,187 |
0 |
10,187 |
||
| Property Building Permit History | |||||||||||
|---|---|---|---|---|---|---|---|---|---|---|---|
| Issued | Permit # | Provided by | Bldg # | Description | Est Construction Cost | Status | |||||
| No Building Permit records returned. | |||||||||||
| Click button on building number to access detailed information: | ||||||
|---|---|---|---|---|---|---|
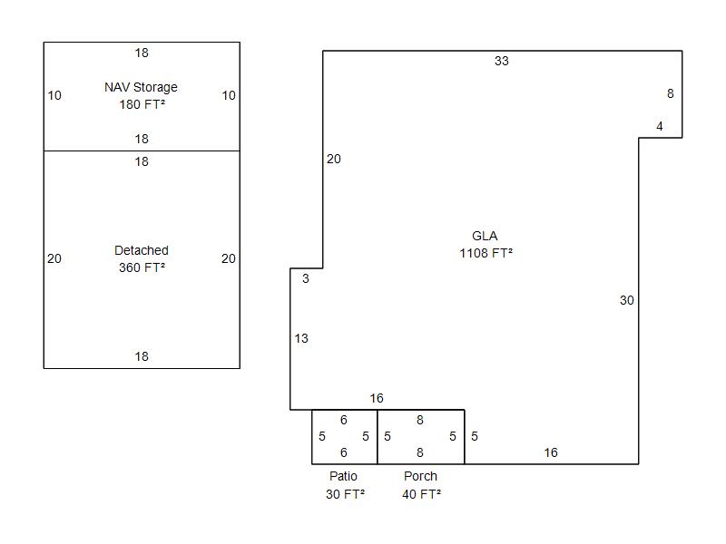
| Bldg # | Vacant/Improved Land | Bldg Description | Year Built | SqFt | # Stories | |
|
1 |
Improved |
Ranch 1 Story |
1932 |
1,108 |
1 Stories |
|