|
|
|
| Larry Stein Oklahoma County Assessor (405) 713-1200 - Public Access System |
|
|
|
|
|
|
| Real Property Display - Screen Produced 4/12/2026 2:24:33 PM | ||||
|---|---|---|---|---|
| Account: R063583450 | Type: Residential | Location: |
2705 NW 21ST ST |
|
| Building Name/Occupant: |
|
OKLAHOMA CITY |
||
| Owner Name 1: | FLOYD MARLA J TRUST |
Parcel PIN#: |
2720-06-358-3450 |
|
| Owner Name 2: | 1/4 section #: |
2720 |
||
| Owner Name 3: | Parent Acct: |
|
||
| Billing Address: | 2705 NW 21ST ST | Tax District: |
|
|
| City, State, Zip | OKLAHOMA CITY, OK 73107-3239 | School System: |
Oklahoma City #89 |
|
|
Country: (If noted) |
Land Size: |
0.1722 Acres |
||
|
Land Value: 35,250 |
|
|||
|
Sect 30-T12N-R3W Qtr NW |
CRESTWOOD ADDITION
Block
004
Lot
000
|
|||
| Full Legal Description: CRESTWOOD ADDITION 004 000 LOTS 39 & 40 |
| Photo & Sketch (if available) | Comp Sales (ordered by relevancy) |
|
||||||||||||||||||
|
||||||||||||||||||||
| Value History (*The County Treasurer 405-713-1300 posts & collects actual tax amounts. Contact information HERE) | |||||||||||||
|---|---|---|---|---|---|---|---|---|---|---|---|---|---|
| Year | Market Value | Taxable Mkt Value | Gross Assessed | Exemption | Net Assessed | Millage | Est. Tax | Tax Savings | |||||
|
2026 |
226,500 |
226,500 |
24,915 |
0 |
24,915 |
122.90 |
$3,062 |
$0 |
|||||
|
2025 |
232,000 |
130,809 |
14,388 |
2,000 |
12,388 |
122.90 |
$1,523 |
$1,614 |
|||||
|
2024 |
227,500 |
130,809 |
14,388 |
2,000 |
12,388 |
123.89 |
$1,535 |
$1,565 |
|||||
|
2023 |
222,500 |
130,809 |
14,388 |
1,000 |
13,388 |
122.82 |
$1,644 |
$1,362 |
|||||
|
2022 |
181,500 |
130,809 |
14,388 |
1,000 |
13,388 |
117.63 |
$1,575 |
$774 |
|||||
| Property Account Status/Adjustments/Exemptions | ||||||
|---|---|---|---|---|---|---|
| Account # | Exemption Description | Amount | ||||
| No adjustment/exemption records returned. | ||||||
| Property Deed Transaction History (Recorded in the County Clerk's Office) | ||||||||||
|---|---|---|---|---|---|---|---|---|---|---|
| Date | Type | Book | Page | Price | Grantor | Grantee | ||||
|
1/29/2026 |
|
Hmstd Off & |
$0 |
FLOYD MARLA |
FLOYD MARLA J TRUST |
|||||
|
9/5/2025 |
|
Deeds |
$225,000 |
JOHNSON FRANCES NOURY TRS |
FLOYD MARLA |
|||||
|
12/12/2014 |
|
Deeds |
$0 |
JOHNSON FRANCES N |
JOHNSON FRANCES NOURY TRS |
|||||
|
7/5/2005 |
|
Deeds |
$97,500 |
KELLEY KAREN K |
JOHNSON FRANCES N |
|||||
|
12/12/2000 |
|
Deeds |
$62,999 |
WOLF JOHN & ANNE TRS WOLF JOHN & ANNE TRUST |
KELLEY KAREN K |
|||||
| Last Mailed Notice of Value (N.O.V.) Information/History | ||||||||
|---|---|---|---|---|---|---|---|---|
| Year | Date | Market Value | Taxable Market Value | Gross Assessed | Exemption | Net Assessed | ||
|
2026 |
02/23/2026 |
226,500 |
226,500 |
24,915 |
0 |
24,915 |
||
|
2025 |
02/14/2025 |
232,000 |
130,809 |
14,388 |
2,000 |
12,388 |
||
|
2024 |
02/13/2024 |
227,500 |
130,809 |
14,388 |
1,000 |
13,388 |
||
|
2023 |
02/14/2023 |
222,500 |
130,809 |
14,388 |
1,000 |
13,388 |
||
|
2022 |
03/15/2022 |
181,500 |
130,809 |
14,388 |
1,000 |
13,388 |
||
| Property Building Permit History | |||||||||||
|---|---|---|---|---|---|---|---|---|---|---|---|
| Issued | Permit # | Provided by | Bldg # | Description | Est Construction Cost | Status | |||||
| No Building Permit records returned. | |||||||||||
| Click button on building number to access detailed information: | ||||||
|---|---|---|---|---|---|---|
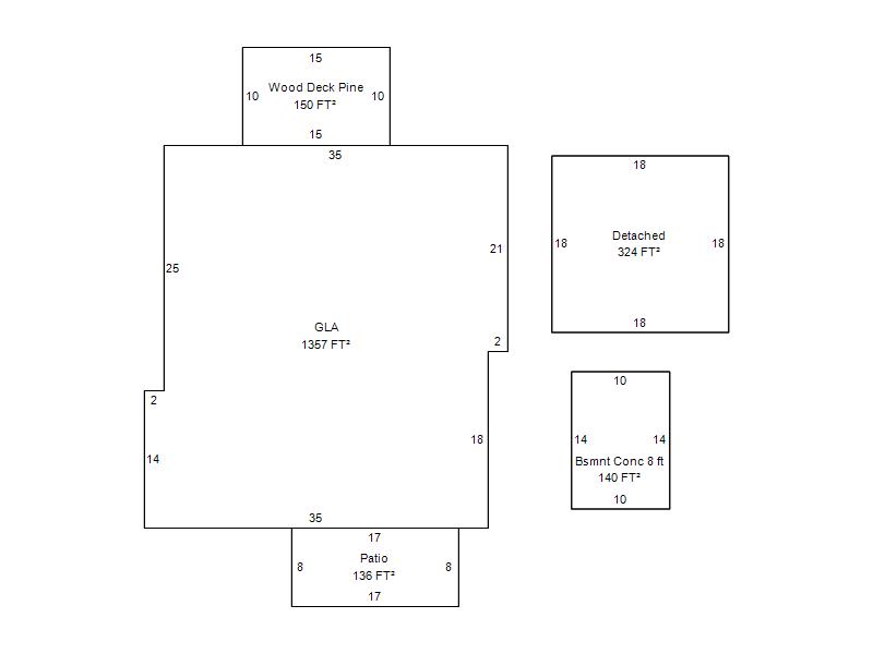
| Bldg # | Vacant/Improved Land | Bldg Description | Year Built | SqFt | # Stories | |
|
1 |
Improved |
Ranch 1 Story |
1930 |
1,357 |
1 Stories |
|