|
|
|
| Larry Stein Oklahoma County Assessor (405) 713-1200 - Public Access System |
|
|
|
|
|
|
| Real Property Display - Screen Produced 4/12/2026 12:52:17 PM | ||||
|---|---|---|---|---|
| Account: R063583460 | Type: Residential | Location: |
2709 NW 21ST ST |
|
| Building Name/Occupant: |
|
OKLAHOMA CITY |
||
| Owner Name 1: | SMALLWOOD CHASE |
Parcel PIN#: |
2720-06-358-3460 |
|
| Owner Name 2: | 1/4 section #: |
2720 |
||
| Owner Name 3: | Parent Acct: |
|
||
| Billing Address: | 2709 NW 21ST ST | Tax District: |
|
|
| City, State, Zip | OKLAHOMA CITY, OK 73107-3239 | School System: |
Oklahoma City #89 |
|
|
Country: (If noted) |
Land Size: |
0.1722 Acres |
||
|
Land Value: 35,250 |
|
|||
|
Sect 30-T12N-R3W Qtr NW |
CRESTWOOD ADDITION
Block
004
Lot
000
|
|||
| Full Legal Description: CRESTWOOD ADDITION 004 000 LOTS 41 & 42 |
| Photo & Sketch (if available) | Comp Sales (ordered by relevancy) |
|
||||||||||||||||||
|
||||||||||||||||||||
| Value History (*The County Treasurer 405-713-1300 posts & collects actual tax amounts. Contact information HERE) | |||||||||||||
|---|---|---|---|---|---|---|---|---|---|---|---|---|---|
| Year | Market Value | Taxable Mkt Value | Gross Assessed | Exemption | Net Assessed | Millage | Est. Tax | Tax Savings | |||||
|
2026 |
192,500 |
192,500 |
21,175 |
1,000 |
20,175 |
122.90 |
$2,480 |
$123 |
|||||
|
2025 |
197,500 |
197,500 |
21,725 |
1,000 |
20,725 |
122.90 |
$2,547 |
$123 |
|||||
|
2024 |
186,000 |
128,098 |
14,090 |
1,000 |
13,090 |
123.89 |
$1,622 |
$913 |
|||||
|
2023 |
178,000 |
124,367 |
13,679 |
1,000 |
12,679 |
122.82 |
$1,557 |
$847 |
|||||
|
2022 |
140,000 |
120,745 |
13,280 |
1,000 |
12,280 |
117.63 |
$1,445 |
$367 |
|||||
| Property Account Status/Adjustments/Exemptions | ||
|---|---|---|
| Account # | Exemption Description | Amount |
|
R063583460 |
3% Cap Homestead |
0 |
|
R063583460 |
Homestead |
1,000 |
| Property Deed Transaction History (Recorded in the County Clerk's Office) | |||||||
|---|---|---|---|---|---|---|---|
| Date | Type | Book | Page | Price | Grantor | Grantee | |
|
9/4/2024 |
|
Deeds |
$238,000 |
MAXWELL ELIZABETH C & ALEX M |
SMALLWOOD CHASE |
||
|
9/30/2016 |
|
Deeds |
$133,000 |
SNAPP DENNIS L |
MAXWELL ELIZABETH C & ALEX M |
||
|
9/9/2014 |
|
Deeds |
$0 |
SNAPP DENNIS L & TERI A |
SNAPP DENNIS L |
||
|
10/8/1991 |
|
Historical |
$0 |
HILL GLADYS O |
SNAPP DENNIS L & TERI A |
||
|
2/1/1980 |
|
Historical |
$0 |
|
HILL GLADYS O |
||
| Last Mailed Notice of Value (N.O.V.) Information/History | ||||||||
|---|---|---|---|---|---|---|---|---|
| Year | Date | Market Value | Taxable Market Value | Gross Assessed | Exemption | Net Assessed | ||
|
2025 |
02/14/2025 |
197,500 |
197,500 |
21,725 |
1,000 |
20,725 |
||
|
2024 |
02/13/2024 |
186,000 |
128,098 |
14,090 |
1,000 |
13,090 |
||
|
2023 |
02/14/2023 |
178,000 |
124,367 |
13,679 |
1,000 |
12,679 |
||
|
2022 |
03/15/2022 |
140,000 |
120,745 |
13,280 |
1,000 |
12,280 |
||
|
2021 |
03/19/2021 |
128,000 |
117,229 |
12,895 |
1,000 |
11,895 |
||
| Property Building Permit History | |||||||||||
|---|---|---|---|---|---|---|---|---|---|---|---|
| Issued | Permit # | Provided by | Bldg # | Description | Est Construction Cost | Status | |||||
| No Building Permit records returned. | |||||||||||
| Click button on building number to access detailed information: | ||||||
|---|---|---|---|---|---|---|
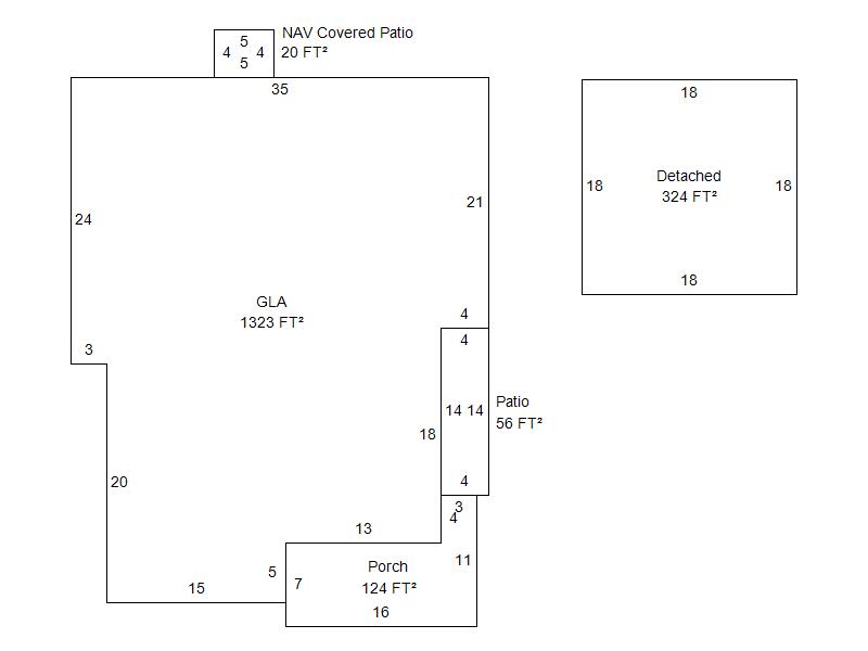
| Bldg # | Vacant/Improved Land | Bldg Description | Year Built | SqFt | # Stories | |
|
1 |
Improved |
Ranch 1 Story |
1929 |
1,323 |
1 Stories |
|