|
|
|
| Larry Stein Oklahoma County Assessor (405) 713-1200 - Public Access System |
|
|
|
|
|
|
| Real Property Display - Screen Produced 4/12/2026 4:13:19 PM | ||||
|---|---|---|---|---|
| Account: R063584230 | Type: Residential | Location: |
2841 NW 20TH ST |
|
| Building Name/Occupant: |
|
OKLAHOMA CITY |
||
| Owner Name 1: | CHALK MOUNTAIN INVESTMENTS LLC |
Parcel PIN#: |
2720-06-358-4230 |
|
| Owner Name 2: | 1/4 section #: |
2720 |
||
| Owner Name 3: | Parent Acct: |
|
||
| Billing Address: | 3321 NW 159TH ST | Tax District: |
|
|
| City, State, Zip | EDMOND, OK 73013-3210 | School System: |
Oklahoma City #89 |
|
|
Country: (If noted) |
Land Size: |
0.1722 Acres |
||
|
Land Value: 35,250 |
|
|||
|
Sect 30-T12N-R3W Qtr NW |
CRESTWOOD ADDITION
Block
006
Lot
000
|
|||
| Full Legal Description: CRESTWOOD ADDITION 006 000 LOTS 53 & 54 |
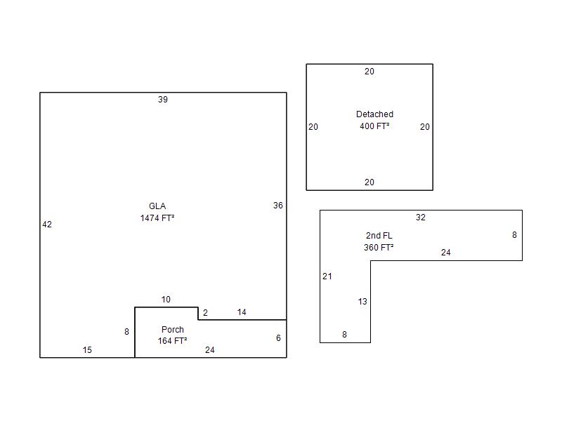
| Photo & Sketch (if available) | Comp Sales (ordered by relevancy) |
|
||||||||||||||||||
|
||||||||||||||||||||
| Value History (*The County Treasurer 405-713-1300 posts & collects actual tax amounts. Contact information HERE) | |||||||||||||
|---|---|---|---|---|---|---|---|---|---|---|---|---|---|
| Year | Market Value | Taxable Mkt Value | Gross Assessed | Exemption | Net Assessed | Millage | Est. Tax | Tax Savings | |||||
|
2026 |
206,000 |
206,000 |
22,660 |
0 |
22,660 |
122.90 |
$2,785 |
$0 |
|||||
|
2025 |
201,500 |
201,500 |
22,165 |
0 |
22,165 |
122.90 |
$2,724 |
$0 |
|||||
|
2024 |
194,500 |
194,500 |
21,395 |
0 |
21,395 |
123.89 |
$2,651 |
$0 |
|||||
|
2023 |
191,000 |
116,989 |
12,868 |
1,000 |
11,868 |
122.82 |
$1,458 |
$1,123 |
|||||
|
2022 |
149,000 |
113,582 |
12,492 |
1,000 |
11,492 |
117.63 |
$1,352 |
$576 |
|||||
| Property Account Status/Adjustments/Exemptions | ||
|---|---|---|
| Account # | Exemption Description | Amount |
|
R063584230 |
5% Capped Account |
0 |
| Property Deed Transaction History (Recorded in the County Clerk's Office) | |||||||
|---|---|---|---|---|---|---|---|
| Date | Type | Book | Page | Price | Grantor | Grantee | |
|
12/21/2023 |
|
Deeds |
$160,000 |
SWIHART SAMUEL T & LINDSAY S |
UNDER PAR INVESTMENTS LLC |
||
|
12/21/2023 |
|
Deeds |
$185,000 |
UNDER PAR INVESTMENTS LLC |
CHALK MOUNTAIN INVESTMENTS LLC |
||
|
10/1/1983 |
|
Historical |
$0 |
|
SWIHART SAMUEL T & LINDSAY S |
||
| Last Mailed Notice of Value (N.O.V.) Information/History | ||||||||
|---|---|---|---|---|---|---|---|---|
| Year | Date | Market Value | Taxable Market Value | Gross Assessed | Exemption | Net Assessed | ||
|
2026 |
02/23/2026 |
206,000 |
206,000 |
22,660 |
0 |
22,660 |
||
|
2025 |
02/14/2025 |
201,500 |
201,500 |
22,165 |
0 |
22,165 |
||
|
2024 |
02/13/2024 |
194,500 |
194,500 |
21,395 |
0 |
21,395 |
||
|
2023 |
02/14/2023 |
191,000 |
116,989 |
12,868 |
1,000 |
11,868 |
||
|
2022 |
03/15/2022 |
149,000 |
113,582 |
12,492 |
1,000 |
11,492 |
||
| Property Building Permit History | |||||||||||
|---|---|---|---|---|---|---|---|---|---|---|---|
| Issued | Permit # | Provided by | Bldg # | Description | Est Construction Cost | Status | |||||
| No Building Permit records returned. | |||||||||||
| Click button on building number to access detailed information: | ||||||
|---|---|---|---|---|---|---|
| Bldg # | Vacant/Improved Land | Bldg Description | Year Built | SqFt | # Stories | |
|
1 |
Improved |
1½ Story Fin |
1930 |
1,834 |
1.5 Stories |
|