|
|
|
| Larry Stein Oklahoma County Assessor (405) 713-1200 - Public Access System |
|
|
|
|
|
|
| Real Property Display - Screen Produced 4/12/2026 2:24:44 PM | ||||
|---|---|---|---|---|
| Account: R063586470 | Type: Residential | Location: |
2757 NW 18TH ST |
|
| Building Name/Occupant: |
|
OKLAHOMA CITY |
||
| Owner Name 1: | BLUESKY 88 CAPITAL LLC |
Parcel PIN#: |
2720-06-358-6470 |
|
| Owner Name 2: | 1/4 section #: |
2720 |
||
| Owner Name 3: | Parent Acct: |
|
||
| Billing Address: | 2757 NW 18TH ST | Tax District: |
|
|
| City, State, Zip | OKLAHOMA CITY, OK 73107-3934 | School System: |
Oklahoma City #89 |
|
|
Country: (If noted) |
Land Size: |
0.1722 Acres |
||
|
Land Value: 35,250 |
|
|||
|
Sect 30-T12N-R3W Qtr NW |
CRESTWOOD ADDITION
Block
013
Lot
000
|
|||
| Full Legal Description: CRESTWOOD ADDITION 013 000 LOTS 65 & 66 |
| Photo & Sketch (if available) | Comp Sales (ordered by relevancy) |
|
||||||||||||||||||
|
||||||||||||||||||||
| Value History (*The County Treasurer 405-713-1300 posts & collects actual tax amounts. Contact information HERE) | |||||||||||||
|---|---|---|---|---|---|---|---|---|---|---|---|---|---|
| Year | Market Value | Taxable Mkt Value | Gross Assessed | Exemption | Net Assessed | Millage | Est. Tax | Tax Savings | |||||
|
2026 |
163,500 |
163,500 |
17,985 |
0 |
17,985 |
122.90 |
$2,210 |
$0 |
|||||
|
2025 |
159,500 |
159,500 |
17,545 |
0 |
17,545 |
122.90 |
$2,156 |
$0 |
|||||
|
2024 |
154,500 |
79,015 |
8,690 |
0 |
8,690 |
123.89 |
$1,077 |
$1,029 |
|||||
|
2023 |
152,000 |
75,253 |
8,277 |
1,000 |
7,277 |
122.82 |
$894 |
$1,160 |
|||||
|
2022 |
119,000 |
75,253 |
8,277 |
1,000 |
7,277 |
117.63 |
$856 |
$684 |
|||||
| Property Account Status/Adjustments/Exemptions | ||
|---|---|---|
| Account # | Exemption Description | Amount |
|
R063586470 |
5% Capped Account |
0 |
| Property Deed Transaction History (Recorded in the County Clerk's Office) | ||||||||||
|---|---|---|---|---|---|---|---|---|---|---|
| Date | Type | Book | Page | Price | Grantor | Grantee | ||||
|
9/30/2025 |
|
Hmstd Off & |
$0 |
BLUESKY 88 CAPITAL LLC |
BLUESKY 88 CAPITAL LLC |
|||||
|
7/16/2024 |
|
Hmstd Off & |
$0 |
SUNRISE CAPITAL LLC |
BLUESKY 88 CAPITAL LLC |
|||||
|
4/10/2024 |
|
Deeds |
$130,000 |
WEST GOODSON LINDSEY ADDISON |
SUNRISE CAPITAL LLC |
|||||
|
12/5/2023 |
|
Hmstd Off & |
$0 |
NELSON TOPPY R |
WEST GOODSON LINDSEY ADDISON |
|||||
|
11/17/1995 |
|
Historical |
$40,500 |
OCONNOR FOREST R ADMR |
NELSON TOPPY R |
|||||
| Last Mailed Notice of Value (N.O.V.) Information/History | ||||||||
|---|---|---|---|---|---|---|---|---|
| Year | Date | Market Value | Taxable Market Value | Gross Assessed | Exemption | Net Assessed | ||
|
2026 |
02/23/2026 |
163,500 |
163,500 |
17,985 |
0 |
17,985 |
||
|
2025 |
02/14/2025 |
159,500 |
159,500 |
17,545 |
0 |
17,545 |
||
|
2024 |
02/13/2024 |
154,500 |
79,015 |
8,690 |
0 |
8,690 |
||
|
2023 |
02/14/2023 |
152,000 |
75,253 |
8,277 |
1,000 |
7,277 |
||
|
2022 |
03/15/2022 |
119,000 |
75,253 |
8,277 |
1,000 |
7,277 |
||
| Property Building Permit History | |||||||||||
|---|---|---|---|---|---|---|---|---|---|---|---|
| Issued | Permit # | Provided by | Bldg # | Description | Est Construction Cost | Status | |||||
| No Building Permit records returned. | |||||||||||
| Click button on building number to access detailed information: | ||||||
|---|---|---|---|---|---|---|
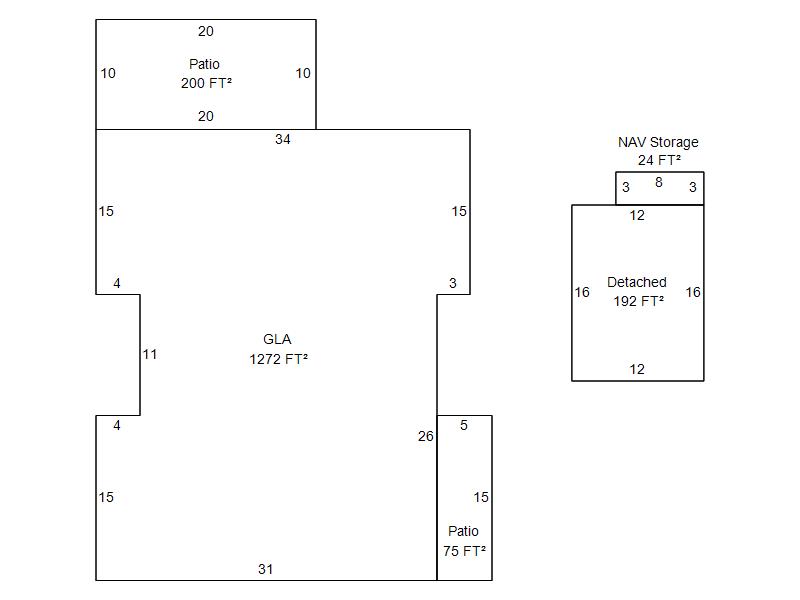
| Bldg # | Vacant/Improved Land | Bldg Description | Year Built | SqFt | # Stories | |
|
1 |
Improved |
Ranch 1 Story |
1930 |
1,272 |
1 Stories |
|