|
|
|
| Larry Stein Oklahoma County Assessor (405) 713-1200 - Public Access System |
|
|
|
|
|
|
| Real Property Display - Screen Produced 4/14/2026 8:34:22 AM | ||||
|---|---|---|---|---|
| Account: R063587450 | Type: Residential | Location: |
2771 NW 17TH ST |
|
| Building Name/Occupant: |
|
OKLAHOMA CITY |
||
| Owner Name 1: | ENGLAND JOEL MARK |
Parcel PIN#: |
2720-06-358-7450 |
|
| Owner Name 2: | KRAFT VICTORIA ELIZABETH | 1/4 section #: |
2720 |
|
| Owner Name 3: | Parent Acct: |
|
||
| Billing Address: | 2771 NW 17TH ST | Tax District: |
|
|
| City, State, Zip | OKLAHOMA CITY, OK 73107-3928 | School System: |
Oklahoma City #89 |
|
|
Country: (If noted) |
Land Size: |
0.1722 Acres |
||
|
Land Value: 35,250 |
|
|||
|
Sect 30-T12N-R3W Qtr NW |
CRESTWOOD ADDITION
Block
016
Lot
000
|
|||
| Full Legal Description: CRESTWOOD ADDITION 016 000 LOTS 71 & 72 |
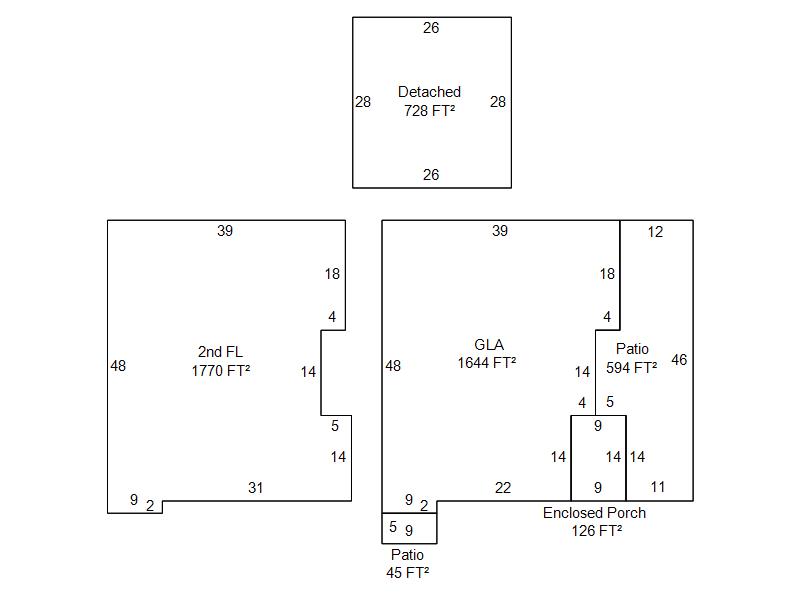
| Photo & Sketch (if available) | Comp Sales (ordered by relevancy) |
|
||||||||||||||||||
|
||||||||||||||||||||
| Value History (*The County Treasurer 405-713-1300 posts & collects actual tax amounts. Contact information HERE) | |||||||||||||
|---|---|---|---|---|---|---|---|---|---|---|---|---|---|
| Year | Market Value | Taxable Mkt Value | Gross Assessed | Exemption | Net Assessed | Millage | Est. Tax | Tax Savings | |||||
|
2026 |
607,500 |
607,500 |
66,825 |
66,825 |
0 |
122.90 |
$0 |
$8,213 |
|||||
|
2025 |
482,000 |
333,292 |
36,661 |
34,606 |
2,055 |
122.90 |
$253 |
$6,263 |
|||||
|
2024 |
478,000 |
323,585 |
35,593 |
1,000 |
34,593 |
123.89 |
$4,286 |
$2,228 |
|||||
|
2023 |
472,500 |
314,161 |
34,557 |
1,000 |
33,557 |
122.82 |
$4,122 |
$2,262 |
|||||
|
2022 |
404,500 |
305,011 |
33,550 |
1,000 |
32,550 |
117.63 |
$3,829 |
$1,405 |
|||||
| Property Account Status/Adjustments/Exemptions | ||
|---|---|---|
| Account # | Exemption Description | Amount |
|
R063587450 |
100% DAV Exemption |
100 |
|
R063587450 |
DAV Homestead |
0 |
| Property Deed Transaction History (Recorded in the County Clerk's Office) | ||||||||||
|---|---|---|---|---|---|---|---|---|---|---|
| Date | Type | Book | Page | Price | Grantor | Grantee | ||||
|
2/3/2025 |
|
Deeds |
$570,000 |
AZADI KAVON CHARLES |
ENGLAND JOEL MARK |
|||||
|
2/19/2014 |
|
Deeds |
$252,500 |
STALSWORTH CHARLES C & MIRIAM |
AZADI KAVON CHARLES |
|||||
|
1/20/1998 |
|
Historical |
$0 |
STALSWORTH CHARLES C |
STALSWORTH CHARLES C & MIRIAM |
|||||
|
4/12/1994 |
|
Historical |
$27,000 |
BAKER DWIGHT |
STALSWORTH CHARLES C |
|||||
|
11/7/1989 |
|
Historical |
$15,000 |
BEAIRD ROBERT D |
BAKER DWIGHT |
|||||
| Last Mailed Notice of Value (N.O.V.) Information/History | ||||||||
|---|---|---|---|---|---|---|---|---|
| Year | Date | Market Value | Taxable Market Value | Gross Assessed | Exemption | Net Assessed | ||
|
2026 |
02/23/2026 |
607,500 |
607,500 |
66,825 |
66,825 |
0 |
||
|
2025 |
02/14/2025 |
482,000 |
333,292 |
36,661 |
1,000 |
35,661 |
||
|
2025 |
03/28/2025 |
482,000 |
333,292 |
36,661 |
1,000 |
35,661 |
||
|
2024 |
02/13/2024 |
478,000 |
323,585 |
35,593 |
1,000 |
34,593 |
||
|
2023 |
02/14/2023 |
472,500 |
314,161 |
34,557 |
1,000 |
33,557 |
||
| Property Building Permit History | |||||||||||
|---|---|---|---|---|---|---|---|---|---|---|---|
| Issued | Permit # | Provided by | Bldg # | Description | Est Construction Cost | Status | |||||
| No Building Permit records returned. | |||||||||||
| Click button on building number to access detailed information: | ||||||
|---|---|---|---|---|---|---|
| Bldg # | Vacant/Improved Land | Bldg Description | Year Built | SqFt | # Stories | |
|
1 |
Improved |
2 Story |
1929 |
3,414 |
2 Stories |
|