|
|
|
| Larry Stein Oklahoma County Assessor (405) 713-1200 - Public Access System |
|
|
|
|
|
|
| Real Property Display - Screen Produced 4/1/2026 3:56:00 PM | ||||
|---|---|---|---|---|
| Account: R112482385 | Type: Residential | Location: |
3036 NW 68TH ST |
|
| Building Name/Occupant: |
|
OKLAHOMA CITY |
||
| Owner Name 1: | OKC WHITE FAMILY RENTALS LLC |
Parcel PIN#: |
2802-11-248-2385 |
|
| Owner Name 2: | 1/4 section #: |
2802 |
||
| Owner Name 3: | Parent Acct: |
|
||
| Billing Address: | 630 NE 63RD ST | Tax District: |
|
|
| City, State, Zip | OKLAHOMA CITY, OK 73105 | School System: |
Oklahoma City #89 |
|
|
Country: (If noted) |
Land Size: |
0.1708 Acres |
||
|
Land Value: 33,489 |
|
|||
|
Sect 1-T12N-R4W Qtr SE |
GRADY MUSGRAVE LAKESIDE
Block
006
Lot
010
|
|||
| Full Legal Description: GRADY MUSGRAVE LAKESIDE 006 010 |
| Photo & Sketch (if available) | Comp Sales (ordered by relevancy) |
|
||||||||||||||||||
|
||||||||||||||||||||
| Value History (*The County Treasurer 405-713-1300 posts & collects actual tax amounts. Contact information HERE) | |||||||||||||
|---|---|---|---|---|---|---|---|---|---|---|---|---|---|
| Year | Market Value | Taxable Mkt Value | Gross Assessed | Exemption | Net Assessed | Millage | Est. Tax | Tax Savings | |||||
|
2026 |
204,500 |
204,500 |
22,495 |
0 |
22,495 |
122.90 |
$2,765 |
$0 |
|||||
|
2025 |
211,500 |
211,500 |
23,265 |
0 |
23,265 |
122.90 |
$2,859 |
$0 |
|||||
|
2024 |
210,500 |
210,000 |
23,100 |
0 |
23,100 |
123.89 |
$2,862 |
$7 |
|||||
|
2023 |
200,000 |
200,000 |
22,000 |
0 |
22,000 |
122.82 |
$2,702 |
$0 |
|||||
|
2022 |
178,500 |
150,117 |
16,511 |
1,000 |
15,511 |
117.63 |
$1,825 |
$485 |
|||||
| Property Account Status/Adjustments/Exemptions | ||
|---|---|---|
| Account # | Exemption Description | Amount |
|
R112482385 |
5% Capped Account |
0 |
| Property Deed Transaction History (Recorded in the County Clerk's Office) | ||||||||||
|---|---|---|---|---|---|---|---|---|---|---|
| Date | Type | Book | Page | Price | Grantor | Grantee | ||||
|
9/21/2022 |
|
Deeds |
$202,000 |
CALLOWAY PATRICK WAYNE JR |
OKC WHITE FAMILY RENTALS LLC |
|||||
|
7/31/2019 |
|
Deeds |
$145,000 |
EVERGREEN 60 LLC |
CALLOWAY PATRICK WAYNE JR |
|||||
|
12/18/2017 |
|
Hmstd Off & |
$0 |
COWDEN DEBORAH L & LESTER L A III |
EVERGREEN 60 LLC |
|||||
|
9/22/2011 |
|
Deeds |
$95,000 |
RYAN KELLY K |
COWDEN DEBORAH L & LESTER L A III |
|||||
|
7/28/1989 |
|
Historical |
$39,000 |
SLICK WARREN A & KATHERINE L |
RYAN KELLY K |
|||||
| Last Mailed Notice of Value (N.O.V.) Information/History | ||||||||
|---|---|---|---|---|---|---|---|---|
| Year | Date | Market Value | Taxable Market Value | Gross Assessed | Exemption | Net Assessed | ||
|
2025 |
02/14/2025 |
211,500 |
211,500 |
23,265 |
0 |
23,265 |
||
|
2024 |
02/13/2024 |
210,500 |
210,000 |
23,100 |
0 |
23,100 |
||
|
2023 |
02/14/2023 |
200,000 |
200,000 |
22,000 |
0 |
22,000 |
||
|
2022 |
03/15/2022 |
178,500 |
150,117 |
16,511 |
1,000 |
15,511 |
||
|
2021 |
03/19/2021 |
153,500 |
145,745 |
16,031 |
1,000 |
15,031 |
||
| Property Building Permit History | |||||||||||
|---|---|---|---|---|---|---|---|---|---|---|---|
| Issued | Permit # | Provided by | Bldg # | Description | Est Construction Cost | Status | |||||
| No Building Permit records returned. | |||||||||||
| Click button on building number to access detailed information: | ||||||
|---|---|---|---|---|---|---|
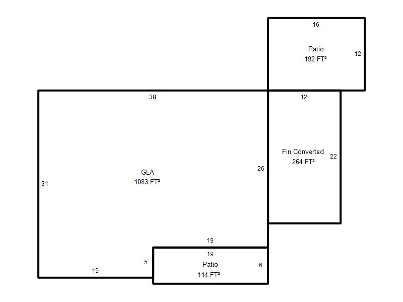
| Bldg # | Vacant/Improved Land | Bldg Description | Year Built | SqFt | # Stories | |
|
1 |
Improved |
Ranch 1 Story |
1952 |
1,083 |
1 Stories |
|