|
|
|
| Larry Stein Oklahoma County Assessor (405) 713-1200 - Public Access System |
|
|
|
|
|
|
| Real Property Display - Screen Produced 4/1/2026 5:25:37 PM | ||||
|---|---|---|---|---|
| Account: R189071800 | Type: Residential | Location: |
6064 NW EXPRESSWAY ST |
|
| Building Name/Occupant: |
|
WARR ACRES |
||
| Owner Name 1: | WILKERSON LAUREN A |
Parcel PIN#: |
2813-18-907-1800 |
|
| Owner Name 2: | 1/4 section #: |
2813 |
||
| Owner Name 3: | Parent Acct: |
|
||
| Billing Address: | 723 RIMROCK RD | Tax District: |
|
|
| City, State, Zip | EDMOND, OK 73034-7253 | School System: |
Putnam City #1 |
|
|
Country: (If noted) |
Land Size: |
1.0000 Square Feet |
||
|
Land Value: 8,820 |
|
|||
|
Sect 4-T12N-R4W Qtr NE |
CEDAR LAKE ESTATES
Block
000
Lot
000
|
|||
| Full Legal Description: CEDAR LAKE ESTATES 000 000 UNIT 6064 |
| Photo & Sketch (if available) | Comp Sales (ordered by relevancy) |
|
||||||||||||||||||
|
||||||||||||||||||||
| Value History (*The County Treasurer 405-713-1300 posts & collects actual tax amounts. Contact information HERE) | |||||||||||||
|---|---|---|---|---|---|---|---|---|---|---|---|---|---|
| Year | Market Value | Taxable Mkt Value | Gross Assessed | Exemption | Net Assessed | Millage | Est. Tax | Tax Savings | |||||
|
2026 |
86,000 |
86,000 |
9,460 |
0 |
9,460 |
115.77 |
$1,095 |
$0 |
|||||
|
2025 |
63,500 |
59,535 |
6,548 |
0 |
6,548 |
115.77 |
$758 |
$50 |
|||||
|
2024 |
64,500 |
56,700 |
6,237 |
0 |
6,237 |
114.25 |
$713 |
$98 |
|||||
|
2023 |
54,000 |
54,000 |
5,940 |
0 |
5,940 |
117.84 |
$700 |
$0 |
|||||
|
2022 |
50,000 |
44,625 |
4,908 |
0 |
4,908 |
120.40 |
$591 |
$71 |
|||||
| Property Account Status/Adjustments/Exemptions | ||||||
|---|---|---|---|---|---|---|
| Account # | Exemption Description | Amount | ||||
| No adjustment/exemption records returned. | ||||||
| Property Deed Transaction History (Recorded in the County Clerk's Office) | ||||||||||
|---|---|---|---|---|---|---|---|---|---|---|
| Date | Type | Book | Page | Price | Grantor | Grantee | ||||
|
3/13/2025 |
|
Deeds |
$90,000 |
SCARPATI GIAN CARLO |
WILKERSON LAUREN A |
|||||
|
3/12/2025 |
|
Hmstd Off & |
$0 |
PAIRAZAMAN CARLOS |
SCARPATI GIAN CARLO |
|||||
|
8/18/2023 |
|
Hmstd Off & |
$0 |
PAIRAZAMAN CARLOS |
SCARPATI GIAN CARLO |
|||||
|
1/28/2022 |
|
Deeds |
$53,000 |
RIVETER INVESTMENT PROPERTIES LLC |
PAIRAZAMAN CARLOS |
|||||
|
4/5/2018 |
|
Hmstd Off & |
$0 |
THOMAS KERI |
RIVETER INVESTMENT PROPERTIES LLC |
|||||
| Last Mailed Notice of Value (N.O.V.) Information/History | ||||||||
|---|---|---|---|---|---|---|---|---|
| Year | Date | Market Value | Taxable Market Value | Gross Assessed | Exemption | Net Assessed | ||
|
2026 |
02/23/2026 |
86,000 |
86,000 |
9,460 |
0 |
9,460 |
||
|
2025 |
02/14/2025 |
63,500 |
59,535 |
6,548 |
0 |
6,548 |
||
|
2025 |
03/28/2025 |
63,500 |
59,535 |
6,548 |
0 |
6,548 |
||
|
2024 |
02/13/2024 |
64,500 |
56,700 |
6,237 |
0 |
6,237 |
||
|
2023 |
02/14/2023 |
54,000 |
54,000 |
5,940 |
0 |
5,940 |
||
| Property Building Permit History | |||||||||||
|---|---|---|---|---|---|---|---|---|---|---|---|
| Issued | Permit # | Provided by | Bldg # | Description | Est Construction Cost | Status | |||||
| No Building Permit records returned. | |||||||||||
| Click button on building number to access detailed information: | ||||||
|---|---|---|---|---|---|---|
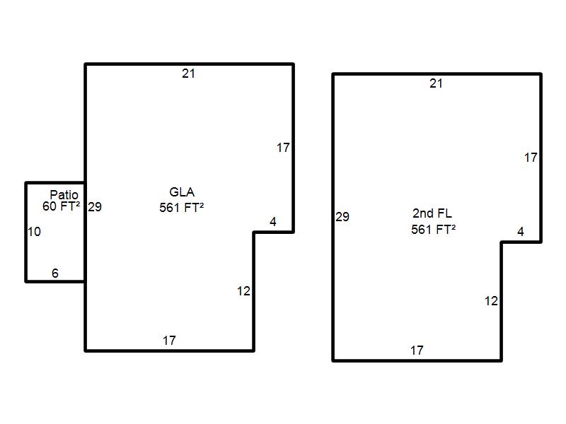
| Bldg # | Vacant/Improved Land | Bldg Description | Year Built | SqFt | # Stories | |
|
1 |
Improved |
Condo <= 3 Stories |
1979 |
1,122 |
2 Stories |
|