|
|
|
| Larry Stein Oklahoma County Assessor (405) 713-1200 - Public Access System |
|
|
|
|
|
|
| Real Property Display - Screen Produced 4/6/2026 8:52:14 AM | ||||
|---|---|---|---|---|
| Account: R148791270 | Type: Residential | Location: |
6430 GALAXIE DR |
|
| Building Name/Occupant: |
|
OKLAHOMA CITY |
||
| Owner Name 1: | IRIONS ASHLEY |
Parcel PIN#: |
2815-14-879-1270 |
|
| Owner Name 2: | 1/4 section #: |
2815 |
||
| Owner Name 3: | Parent Acct: |
|
||
| Billing Address: | 6430 GALAXIE DR | Tax District: |
|
|
| City, State, Zip | OKLAHOMA CITY, OK 73132-7011 | School System: |
Putnam City #1 |
|
|
Country: (If noted) |
Land Size: |
0.2863 Acres |
||
|
Land Value: 51,127 |
|
|||
|
Sect 4-T12N-R4W Qtr SW |
GALAXIE DEVE 4 SEASONS SEC 1
Block
002
Lot
003
|
|||
| Full Legal Description: GALAXIE DEVE 4 SEASONS SEC 1 002 003 |
| Photo & Sketch (if available) | Comp Sales (ordered by relevancy) |
|
||||||||||||||||||
|
||||||||||||||||||||
| Value History (*The County Treasurer 405-713-1300 posts & collects actual tax amounts. Contact information HERE) | |||||||||||||
|---|---|---|---|---|---|---|---|---|---|---|---|---|---|
| Year | Market Value | Taxable Mkt Value | Gross Assessed | Exemption | Net Assessed | Millage | Est. Tax | Tax Savings | |||||
|
2026 |
249,500 |
249,500 |
27,445 |
0 |
27,445 |
123.17 |
$3,380 |
$0 |
|||||
|
2025 |
262,500 |
262,500 |
28,875 |
0 |
28,875 |
123.17 |
$3,557 |
$0 |
|||||
|
2024 |
258,000 |
192,803 |
21,207 |
0 |
21,207 |
122.30 |
$2,594 |
$877 |
|||||
|
2023 |
228,000 |
183,622 |
20,197 |
0 |
20,197 |
121.91 |
$2,462 |
$595 |
|||||
|
2022 |
217,500 |
174,879 |
19,236 |
0 |
19,236 |
123.41 |
$2,374 |
$579 |
|||||
| Property Account Status/Adjustments/Exemptions | ||
|---|---|---|
| Account # | Exemption Description | Amount |
|
R148791270 |
5% Capped Account |
0 |
| Property Deed Transaction History (Recorded in the County Clerk's Office) | ||||||||||
|---|---|---|---|---|---|---|---|---|---|---|
| Date | Type | Book | Page | Price | Grantor | Grantee | ||||
|
5/16/2024 |
|
Deeds |
$280,000 |
SAWYER WILDA |
IRIONS ASHLEY |
|||||
|
10/2/2007 |
|
Deeds |
$0 |
SAWYER DONALD H |
SAWYER WILDA |
|||||
|
12/4/2004 |
|
Deeds |
$0 |
SAWYER WILDA J |
SAWYER WILDA J & DONALD H |
|||||
|
11/30/2004 |
|
Deeds |
$0 |
BREWER BOB J & F KAY SHEUMAKER HOWARD T |
BREWER BOB J & F KAY |
|||||
|
11/30/2004 |
|
Deeds |
$125,000 |
BREWER BOB J & F KAY |
SAWYER WILDA J |
|||||
| Last Mailed Notice of Value (N.O.V.) Information/History | ||||||||
|---|---|---|---|---|---|---|---|---|
| Year | Date | Market Value | Taxable Market Value | Gross Assessed | Exemption | Net Assessed | ||
|
2025 |
02/14/2025 |
262,500 |
262,500 |
28,875 |
0 |
28,875 |
||
|
2024 |
02/13/2024 |
258,000 |
192,803 |
21,207 |
0 |
21,207 |
||
|
2023 |
02/14/2023 |
228,000 |
183,622 |
20,197 |
0 |
20,197 |
||
|
2022 |
03/15/2022 |
217,500 |
174,879 |
19,236 |
0 |
19,236 |
||
|
2021 |
03/19/2021 |
180,000 |
166,552 |
18,320 |
0 |
18,320 |
||
| Property Building Permit History | |||||||||||
|---|---|---|---|---|---|---|---|---|---|---|---|
| Issued | Permit # | Provided by | Bldg # | Description | Est Construction Cost | Status | |||||
| No Building Permit records returned. | |||||||||||
| Click button on building number to access detailed information: | ||||||
|---|---|---|---|---|---|---|
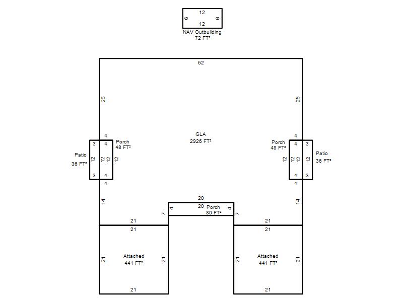
| Bldg # | Vacant/Improved Land | Bldg Description | Year Built | SqFt | # Stories | |
|
1 |
Improved |
Duplex One Story |
1974 |
2,926 |
1 Stories |
|