|
|
|
| Larry Stein Oklahoma County Assessor (405) 713-1200 - Public Access System |
|
|
|
|
|
|
| Real Property Display - Screen Produced 4/2/2026 8:31:47 PM | ||||
|---|---|---|---|---|
| Account: R142761385 | Type: Residential | Location: |
3913 NW 59TH ST |
|
| Building Name/Occupant: |
|
OKLAHOMA CITY |
||
| Owner Name 1: | BB AND B RENTALS LLC |
Parcel PIN#: |
2841-14-276-1385 |
|
| Owner Name 2: | 1/4 section #: |
2841 |
||
| Owner Name 3: | Parent Acct: |
|
||
| Billing Address: | 7608 N COUNCIL RD | Tax District: |
|
|
| City, State, Zip | OKLAHOMA CITY, OK 73132 | School System: |
Putnam City #1 |
|
|
Country: (If noted) |
Land Size: |
0.1985 Acres |
||
|
Land Value: 30,258 |
|
|||
|
Sect 11-T12N-R4W Qtr NE |
CORONADO HEIGHTS ADD
Block
002
Lot
028
|
|||
| Full Legal Description: CORONADO HEIGHTS ADD 002 028 |
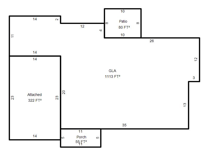
| Photo & Sketch (if available) | Comp Sales (ordered by relevancy) |
|
||||||||||||||||||
|
||||||||||||||||||||
| Value History (*The County Treasurer 405-713-1300 posts & collects actual tax amounts. Contact information HERE) | |||||||||||||
|---|---|---|---|---|---|---|---|---|---|---|---|---|---|
| Year | Market Value | Taxable Mkt Value | Gross Assessed | Exemption | Net Assessed | Millage | Est. Tax | Tax Savings | |||||
|
2026 |
150,000 |
150,000 |
16,500 |
0 |
16,500 |
123.17 |
$2,032 |
$0 |
|||||
|
2025 |
154,500 |
144,702 |
15,916 |
0 |
15,916 |
123.17 |
$1,961 |
$133 |
|||||
|
2024 |
152,000 |
137,812 |
15,158 |
0 |
15,158 |
122.30 |
$1,854 |
$191 |
|||||
|
2023 |
142,000 |
131,250 |
14,437 |
0 |
14,437 |
121.91 |
$1,760 |
$144 |
|||||
|
2022 |
125,000 |
125,000 |
13,750 |
0 |
13,750 |
123.41 |
$1,697 |
$0 |
|||||
| Property Account Status/Adjustments/Exemptions | ||
|---|---|---|
| Account # | Exemption Description | Amount |
|
R142761385 |
5% Capped Account |
0 |
| Property Deed Transaction History (Recorded in the County Clerk's Office) | |||||||
|---|---|---|---|---|---|---|---|
| Date | Type | Book | Page | Price | Grantor | Grantee | |
|
9/23/2021 |
|
Deeds |
$125,000 |
RICHARDSON JENNIFER L |
BB AND B RENTALS LLC |
||
|
3/6/2018 |
|
Deeds |
$0 |
RICHARDSON JIMMY & JENNIFER L |
RICHARDSON JENNIFER L |
||
|
6/25/2011 |
|
Deeds |
$0 |
RICHARDSON JIMMY |
RICHARDSON JIMMY & JENNIFER L |
||
|
8/28/2007 |
|
Deeds |
$91,500 |
KEESEE TERRY E & CHERYL A |
RICHARDSON JIMMY |
||
|
5/1/1980 |
|
Historical |
$0 |
|
KEESEE TERRY E & CHERYL A |
||
| Last Mailed Notice of Value (N.O.V.) Information/History | ||||||||
|---|---|---|---|---|---|---|---|---|
| Year | Date | Market Value | Taxable Market Value | Gross Assessed | Exemption | Net Assessed | ||
|
2026 |
02/23/2026 |
150,000 |
150,000 |
16,500 |
0 |
16,500 |
||
|
2025 |
02/14/2025 |
154,500 |
144,702 |
15,916 |
0 |
15,916 |
||
|
2024 |
02/13/2024 |
152,000 |
137,812 |
15,158 |
0 |
15,158 |
||
|
2023 |
02/14/2023 |
142,000 |
131,250 |
14,437 |
0 |
14,437 |
||
|
2022 |
03/15/2022 |
125,000 |
125,000 |
13,750 |
0 |
13,750 |
||
| Property Building Permit History | |||||||||||
|---|---|---|---|---|---|---|---|---|---|---|---|
| Issued | Permit # | Provided by | Bldg # | Description | Est Construction Cost | Status | |||||
| No Building Permit records returned. | |||||||||||
| Click button on building number to access detailed information: | ||||||
|---|---|---|---|---|---|---|
| Bldg # | Vacant/Improved Land | Bldg Description | Year Built | SqFt | # Stories | |
|
1 |
Improved |
Ranch 1 Story |
1955 |
1,113 |
1 Stories |
|