|
|
|
| Larry Stein Oklahoma County Assessor (405) 713-1200 - Public Access System |
|
|
|
|
|
|
| Real Property Display - Screen Produced 3/31/2026 11:33:05 PM | ||||
|---|---|---|---|---|
| Account: R142181345 | Type: Residential | Location: |
3913 NW 51ST ST |
|
| Building Name/Occupant: |
|
OKLAHOMA CITY |
||
| Owner Name 1: | CORBETT KELLY |
Parcel PIN#: |
2842-14-218-1345 |
|
| Owner Name 2: | 1/4 section #: |
2842 |
||
| Owner Name 3: | Parent Acct: |
|
||
| Billing Address: | 3913 NW 51ST ST | Tax District: |
|
|
| City, State, Zip | OKLAHOMA CITY, OK 73112-2047 | School System: |
Putnam City #1 |
|
|
Country: (If noted) |
Land Size: |
0.1364 Acres |
||
|
Land Value: 22,275 |
|
|||
|
Sect 11-T12N-R4W Qtr SE |
PORTLAND HILLS 2ND
Block
003
Lot
001
|
|||
| Full Legal Description: PORTLAND HILLS 2ND 003 001 |
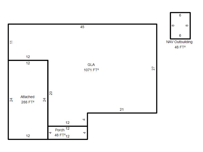
| Photo & Sketch (if available) | Comp Sales (ordered by relevancy) |
|
||||||||||||||||||
|
||||||||||||||||||||
| Value History (*The County Treasurer 405-713-1300 posts & collects actual tax amounts. Contact information HERE) | |||||||||||||
|---|---|---|---|---|---|---|---|---|---|---|---|---|---|
| Year | Market Value | Taxable Mkt Value | Gross Assessed | Exemption | Net Assessed | Millage | Est. Tax | Tax Savings | |||||
|
2026 |
139,000 |
139,000 |
15,290 |
0 |
15,290 |
123.17 |
$1,883 |
$0 |
|||||
|
2025 |
143,000 |
121,882 |
13,406 |
0 |
13,406 |
123.17 |
$1,651 |
$286 |
|||||
|
2024 |
140,500 |
116,079 |
12,768 |
0 |
12,768 |
122.30 |
$1,562 |
$329 |
|||||
|
2023 |
131,000 |
110,552 |
12,160 |
0 |
12,160 |
121.91 |
$1,483 |
$274 |
|||||
|
2022 |
116,000 |
105,288 |
11,581 |
0 |
11,581 |
123.41 |
$1,429 |
$145 |
|||||
| Property Account Status/Adjustments/Exemptions | ||||||
|---|---|---|---|---|---|---|
| Account # | Exemption Description | Amount | ||||
| No adjustment/exemption records returned. | ||||||
| Property Deed Transaction History (Recorded in the County Clerk's Office) | |||||||
|---|---|---|---|---|---|---|---|
| Date | Type | Book | Page | Price | Grantor | Grantee | |
|
6/26/2025 |
|
Deeds |
$170,000 |
FEUERBORN MICHAEL J & LINDA S |
CORBETT KELLY |
||
|
2/28/2014 |
|
Deeds |
$0 |
FEUERBORN MICHAEL J |
FEUERBORN MICHAEL J & LINDA S |
||
|
12/5/2003 |
|
Deeds |
$73,500 |
DAVIS ELFRIEDE L |
FEUERBORN MICHAEL J |
||
|
11/1/1986 |
|
Historical |
$0 |
ROSS ELFRIEDE L |
DAVIS ELFRIEDE L |
||
|
9/1/1985 |
|
Historical |
$0 |
|
ROSS ELFRIEDE L |
||
| Last Mailed Notice of Value (N.O.V.) Information/History | ||||||||
|---|---|---|---|---|---|---|---|---|
| Year | Date | Market Value | Taxable Market Value | Gross Assessed | Exemption | Net Assessed | ||
|
2026 |
02/23/2026 |
139,000 |
139,000 |
15,290 |
0 |
15,290 |
||
|
2025 |
02/14/2025 |
143,000 |
121,882 |
13,406 |
0 |
13,406 |
||
|
2024 |
02/13/2024 |
140,500 |
116,079 |
12,768 |
0 |
12,768 |
||
|
2023 |
02/14/2023 |
131,000 |
110,552 |
12,160 |
0 |
12,160 |
||
|
2022 |
03/15/2022 |
116,000 |
105,288 |
11,581 |
0 |
11,581 |
||
| Property Building Permit History | |||||||||||
|---|---|---|---|---|---|---|---|---|---|---|---|
| Issued | Permit # | Provided by | Bldg # | Description | Est Construction Cost | Status | |||||
| No Building Permit records returned. | |||||||||||
| Click button on building number to access detailed information: | ||||||
|---|---|---|---|---|---|---|
| Bldg # | Vacant/Improved Land | Bldg Description | Year Built | SqFt | # Stories | |
|
1 |
Improved |
Ranch 1 Story |
1955 |
1,071 |
1 Stories |
|