|
|
|
| Larry Stein Oklahoma County Assessor (405) 713-1200 - Public Access System |
|
|
|
|
|
|
| Real Property Display - Screen Produced 4/6/2026 4:50:44 AM | ||||
|---|---|---|---|---|
| Account: R142762385 | Type: Residential | Location: |
5913 N ROFF AVE |
|
| Building Name/Occupant: |
|
OKLAHOMA CITY |
||
| Owner Name 1: | ALVARADO ARTEMIO GARCIA |
Parcel PIN#: |
2841-14-276-2385 |
|
| Owner Name 2: | SAUCEDO CLAUDIA MARIBEL | 1/4 section #: |
2841 |
|
| Owner Name 3: | Parent Acct: |
|
||
| Billing Address: | 5913 N ROFF ST | Tax District: |
|
|
| City, State, Zip | OKLAHOMA CITY, OK 73112 | School System: |
Putnam City #1 |
|
|
Country: (If noted) |
Land Size: |
0.2321 Acres |
||
|
Land Value: 35,392 |
|
|||
|
Sect 11-T12N-R4W Qtr NE |
CORONADO HEIGHTS ADD
Block
006
Lot
004
|
|||
| Full Legal Description: CORONADO HEIGHTS ADD 006 004 |
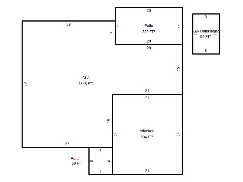
| Photo & Sketch (if available) | Comp Sales (ordered by relevancy) |
|
||||||||||||||||||
|
||||||||||||||||||||
| Value History (*The County Treasurer 405-713-1300 posts & collects actual tax amounts. Contact information HERE) | |||||||||||||
|---|---|---|---|---|---|---|---|---|---|---|---|---|---|
| Year | Market Value | Taxable Mkt Value | Gross Assessed | Exemption | Net Assessed | Millage | Est. Tax | Tax Savings | |||||
|
2026 |
223,500 |
223,500 |
24,585 |
0 |
24,585 |
123.17 |
$3,028 |
$0 |
|||||
|
2025 |
225,000 |
216,475 |
23,811 |
0 |
23,811 |
123.17 |
$2,933 |
$116 |
|||||
|
2024 |
221,000 |
206,167 |
22,677 |
0 |
22,677 |
122.30 |
$2,774 |
$200 |
|||||
|
2023 |
211,500 |
196,350 |
21,598 |
0 |
21,598 |
121.91 |
$2,633 |
$203 |
|||||
|
2022 |
187,000 |
187,000 |
20,570 |
0 |
20,570 |
123.41 |
$2,539 |
$0 |
|||||
| Property Account Status/Adjustments/Exemptions | ||
|---|---|---|
| Account # | Exemption Description | Amount |
|
R142762385 |
5% Capped Account |
0 |
| Property Deed Transaction History (Recorded in the County Clerk's Office) | ||||||||||
|---|---|---|---|---|---|---|---|---|---|---|
| Date | Type | Book | Page | Price | Grantor | Grantee | ||||
|
12/29/2021 |
|
Hmstd Off & |
$0 |
SAUCEDO CLAUDIA |
ALVARADO ARTEMIO GARCIA |
|||||
|
12/20/2021 |
|
Deeds |
$177,000 |
MCCURLEY LARRY D |
SAUCEDO CLAUDIA |
|||||
|
8/6/2012 |
|
Deeds |
$0 |
MCCURLEY LARRY D SEPARATE PROPERTY TRUST |
MCCURLEY LARRY D |
|||||
|
3/18/2008 |
|
Deeds |
$0 |
MCCURLEY LARRY D |
MCCURLEY LARRY D SEPARATE PROPERTY TRUST |
|||||
|
1/19/2007 |
|
Deeds |
$107,000 |
FELGENHAUER AMY |
MCCURLEY LARRY D |
|||||
| Last Mailed Notice of Value (N.O.V.) Information/History | ||||||||
|---|---|---|---|---|---|---|---|---|
| Year | Date | Market Value | Taxable Market Value | Gross Assessed | Exemption | Net Assessed | ||
|
2026 |
02/23/2026 |
223,500 |
223,500 |
24,585 |
0 |
24,585 |
||
|
2025 |
02/14/2025 |
225,000 |
216,475 |
23,811 |
0 |
23,811 |
||
|
2024 |
02/13/2024 |
221,000 |
206,167 |
22,677 |
0 |
22,677 |
||
|
2023 |
02/14/2023 |
211,500 |
196,350 |
21,598 |
0 |
21,598 |
||
|
2022 |
03/15/2022 |
187,000 |
187,000 |
20,570 |
0 |
20,570 |
||
| Property Building Permit History | |||||||||||
|---|---|---|---|---|---|---|---|---|---|---|---|
| Issued | Permit # | Provided by | Bldg # | Description | Est Construction Cost | Status | |||||
| No Building Permit records returned. | |||||||||||
| Click button on building number to access detailed information: | ||||||
|---|---|---|---|---|---|---|
| Bldg # | Vacant/Improved Land | Bldg Description | Year Built | SqFt | # Stories | |
|
1 |
Improved |
Ranch 1 Story |
1959 |
1,348 |
1 Stories |
|