|
|
|
| Larry Stein Oklahoma County Assessor (405) 713-1200 - Public Access System |
|
|
|
|
|
|
| Real Property Display - Screen Produced 4/4/2026 5:45:31 PM | ||||
|---|---|---|---|---|
| Account: R142692725 | Type: Residential | Location: |
4109 NW 60TH ST |
|
| Building Name/Occupant: |
|
OKLAHOMA CITY |
||
| Owner Name 1: | JMCPWC REV LIV TRUST |
Parcel PIN#: |
2844-14-269-2725 |
|
| Owner Name 2: | 1/4 section #: |
2844 |
||
| Owner Name 3: | Parent Acct: |
|
||
| Billing Address: | 4109 NW 60TH ST | Tax District: |
|
|
| City, State, Zip | OKLAHOMA CITY, OK 73112-1301 | School System: |
Putnam City #1 |
|
|
Country: (If noted) |
Land Size: |
0.2066 Acres |
||
|
Land Value: 38,700 |
|
|||
|
Sect 11-T12N-R4W Qtr NW |
LAKERIDGE
Block
009
Lot
030
|
|||
| Full Legal Description: LAKERIDGE 009 030 |
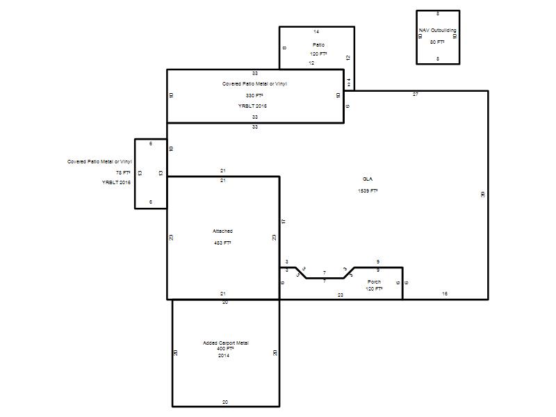
| Photo & Sketch (if available) | Comp Sales (ordered by relevancy) |
|
||||||||||||||||||
|
||||||||||||||||||||
| Value History (*The County Treasurer 405-713-1300 posts & collects actual tax amounts. Contact information HERE) | |||||||||||||
|---|---|---|---|---|---|---|---|---|---|---|---|---|---|
| Year | Market Value | Taxable Mkt Value | Gross Assessed | Exemption | Net Assessed | Millage | Est. Tax | Tax Savings | |||||
|
2026 |
204,500 |
204,500 |
22,495 |
1,000 |
21,495 |
123.17 |
$2,648 |
$123 |
|||||
|
2025 |
212,000 |
212,000 |
23,320 |
1,000 |
22,320 |
123.17 |
$2,749 |
$123 |
|||||
|
2024 |
210,500 |
210,500 |
23,155 |
1,000 |
22,155 |
122.30 |
$2,710 |
$122 |
|||||
|
2023 |
198,000 |
148,964 |
16,385 |
16,385 |
0 |
121.91 |
$0 |
$2,655 |
|||||
|
2022 |
175,000 |
144,626 |
15,907 |
15,907 |
0 |
123.41 |
$0 |
$2,375 |
|||||
| Property Account Status/Adjustments/Exemptions | ||
|---|---|---|
| Account # | Exemption Description | Amount |
|
R142692725 |
Freeze Senior Valuation |
0 |
|
R142692725 |
3% Cap Homestead |
0 |
|
R142692725 |
Homestead |
1,000 |
| Property Deed Transaction History (Recorded in the County Clerk's Office) | ||||||||||
|---|---|---|---|---|---|---|---|---|---|---|
| Date | Type | Book | Page | Price | Grantor | Grantee | ||||
|
12/28/2023 |
|
Deeds |
$220,000 |
CLOPTON GARY & RETA TRS |
JMCPWC REV LIV TRUST |
|||||
|
6/28/2023 |
|
Hmstd Off & |
$0 |
SMITH JIMMY EARL |
CLOPTON RETA |
|||||
|
6/28/2023 |
|
Deeds |
$0 |
CLOPTON RETA |
CLOPTON GARY & RETA TRS |
|||||
|
6/23/2013 |
|
Deeds |
$127,500 |
MOUTSATSON PETER G |
SMITH JIMMY EARL |
|||||
|
11/9/2004 |
|
Deeds |
$115,000 |
MULLINS SHAUN M & HEATHER A |
MOUTSATSON PETER G |
|||||
| Last Mailed Notice of Value (N.O.V.) Information/History | ||||||||
|---|---|---|---|---|---|---|---|---|
| Year | Date | Market Value | Taxable Market Value | Gross Assessed | Exemption | Net Assessed | ||
|
2025 |
02/14/2025 |
212,000 |
212,000 |
23,320 |
1,000 |
22,320 |
||
|
2024 |
02/13/2024 |
210,500 |
210,500 |
23,155 |
0 |
23,155 |
||
|
2023 |
02/14/2023 |
198,000 |
148,964 |
16,385 |
16,385 |
0 |
||
|
2022 |
03/15/2022 |
175,000 |
144,626 |
15,907 |
15,907 |
0 |
||
|
2021 |
03/19/2021 |
148,500 |
140,414 |
15,445 |
15,445 |
0 |
||
| Property Building Permit History | |||||||||||
|---|---|---|---|---|---|---|---|---|---|---|---|
| Issued | Permit # | Provided by | Bldg # | Description | Est Construction Cost | Status | |||||
| No Building Permit records returned. | |||||||||||
| Click button on building number to access detailed information: | ||||||
|---|---|---|---|---|---|---|
| Bldg # | Vacant/Improved Land | Bldg Description | Year Built | SqFt | # Stories | |
|
1 |
Improved |
Ranch 1 Story |
1961 |
1,539 |
1 Stories |
|