|
|
|
| Larry Stein Oklahoma County Assessor (405) 713-1200 - Public Access System |
|
|
|
|
|
|
| Real Property Display - Screen Produced 4/4/2026 9:44:30 PM | ||||
|---|---|---|---|---|
| Account: R142751430 | Type: Residential | Location: |
3320 NW 62ND ST |
|
| Building Name/Occupant: |
|
OKLAHOMA CITY |
||
| Owner Name 1: | HERRERA RAUL JR |
Parcel PIN#: |
2848-14-275-1430 |
|
| Owner Name 2: | 1/4 section #: |
2848 |
||
| Owner Name 3: | Parent Acct: |
|
||
| Billing Address: | 3320 NW 62ND ST | Tax District: |
|
|
| City, State, Zip | OKLAHOMA CITY, OK 73112-4102 | School System: |
Putnam City #1 |
|
|
Country: (If noted) |
Land Size: |
0.2303 Acres |
||
|
Land Value: 51,168 |
|
|||
|
Sect 12-T12N-R4W Qtr NW |
SMITHS HIGHLAND HILLS
Block
003
Lot
000
|
|||
| Full Legal Description: SMITHS HIGHLAND HILLS 003 000 LOT 6 EX E15FT & LOT 7 EX W30FT |
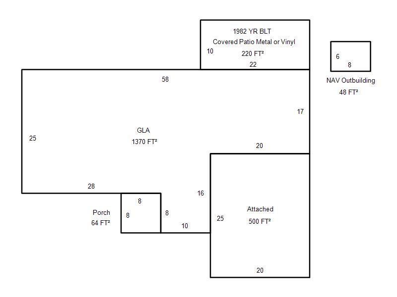
| Photo & Sketch (if available) | Comp Sales (ordered by relevancy) |
|
||||||||||||||||||
|
||||||||||||||||||||
| Value History (*The County Treasurer 405-713-1300 posts & collects actual tax amounts. Contact information HERE) | |||||||||||||
|---|---|---|---|---|---|---|---|---|---|---|---|---|---|
| Year | Market Value | Taxable Mkt Value | Gross Assessed | Exemption | Net Assessed | Millage | Est. Tax | Tax Savings | |||||
|
2026 |
220,000 |
220,000 |
24,200 |
1,000 |
23,200 |
123.17 |
$2,858 |
$123 |
|||||
|
2025 |
237,500 |
204,729 |
22,519 |
0 |
22,519 |
123.17 |
$2,774 |
$444 |
|||||
|
2024 |
238,500 |
194,980 |
21,447 |
0 |
21,447 |
122.30 |
$2,623 |
$585 |
|||||
|
2023 |
226,500 |
185,696 |
20,425 |
0 |
20,425 |
121.91 |
$2,490 |
$547 |
|||||
|
2022 |
202,500 |
176,854 |
19,453 |
0 |
19,453 |
123.41 |
$2,401 |
$348 |
|||||
| Property Account Status/Adjustments/Exemptions | ||
|---|---|---|
| Account # | Exemption Description | Amount |
|
R142751430 |
Homestead |
1,000 |
| Property Deed Transaction History (Recorded in the County Clerk's Office) | ||||||||||
|---|---|---|---|---|---|---|---|---|---|---|
| Date | Type | Book | Page | Price | Grantor | Grantee | ||||
|
3/28/2025 |
|
Deeds |
$212,000 |
CHAMPLIN 1993 REV TRUST |
HERRERA RAUL JR |
|||||
|
2/8/2013 |
|
Deeds |
$125,000 |
LYNCH DAVID A |
CHAMPLIN KATHERINE G |
|||||
|
2/8/2013 |
|
Deeds |
$0 |
CHAMPLIN KATHERINE G |
CHAMPLIN 1993 REV TRUST |
|||||
|
3/3/2006 |
|
Deeds |
$117,000 |
GRIMES CHRISTOPHER R SMITH JENNIFER R |
LYNCH DAVID A |
|||||
|
1/3/2003 |
|
Deeds |
$95,000 |
NORICK CAROLYN TRS NORICK CAROLYN LIVING TRUST |
GRIMES CHRISTOPHER R SMITH JENNIFER R |
|||||
| Last Mailed Notice of Value (N.O.V.) Information/History | ||||||||
|---|---|---|---|---|---|---|---|---|
| Year | Date | Market Value | Taxable Market Value | Gross Assessed | Exemption | Net Assessed | ||
|
2026 |
02/23/2026 |
220,000 |
220,000 |
24,200 |
1,000 |
23,200 |
||
|
2025 |
02/14/2025 |
237,500 |
204,729 |
22,519 |
0 |
22,519 |
||
|
2024 |
02/13/2024 |
238,500 |
194,980 |
21,447 |
0 |
21,447 |
||
|
2023 |
02/14/2023 |
226,500 |
185,696 |
20,425 |
0 |
20,425 |
||
|
2022 |
03/15/2022 |
202,500 |
176,854 |
19,453 |
0 |
19,453 |
||
| Property Building Permit History | |||||||||||
|---|---|---|---|---|---|---|---|---|---|---|---|
| Issued | Permit # | Provided by | Bldg # | Description | Est Construction Cost | Status | |||||
| No Building Permit records returned. | |||||||||||
| Click button on building number to access detailed information: | ||||||
|---|---|---|---|---|---|---|
| Bldg # | Vacant/Improved Land | Bldg Description | Year Built | SqFt | # Stories | |
|
1 |
Improved |
Ranch 1 Story |
1954 |
1,370 |
1 Stories |
|