|
|
|
| Larry Stein Oklahoma County Assessor (405) 713-1200 - Public Access System |
|
|
|
|
|
|
| Real Property Display - Screen Produced 4/2/2026 9:18:14 AM | ||||
|---|---|---|---|---|
| Account: R059753500 | Type: Residential | Location: |
2944 NW 48TH ST |
|
| Building Name/Occupant: |
|
OKLAHOMA CITY |
||
| Owner Name 1: | COURTNEY KAYLA JEAN |
Parcel PIN#: |
2849-05-975-3500 |
|
| Owner Name 2: | 1/4 section #: |
2849 |
||
| Owner Name 3: | Parent Acct: |
|
||
| Billing Address: | 2944 NW 48TH ST | Tax District: |
|
|
| City, State, Zip | OKLAHOMA CITY, OK 73112-6028 | School System: |
Oklahoma City #89 |
|
|
Country: (If noted) |
Land Size: |
0.2057 Acres |
||
|
Land Value: 35,840 |
|
|||
|
Sect 13-T12N-R4W Qtr NE |
MAYFAIR HEIGHTS BLKS 1 THRU 29
Block
021
Lot
000
|
|||
| Full Legal Description: MAYFAIR HEIGHTS BLKS 1 THRU 29 021 000 LOT 10 & E9.83FT OF LOT 11 |
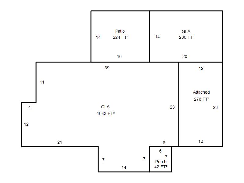
| Photo & Sketch (if available) | Comp Sales (ordered by relevancy) |
|
||||||||||||||||||
|
||||||||||||||||||||
| Value History (*The County Treasurer 405-713-1300 posts & collects actual tax amounts. Contact information HERE) | |||||||||||||
|---|---|---|---|---|---|---|---|---|---|---|---|---|---|
| Year | Market Value | Taxable Mkt Value | Gross Assessed | Exemption | Net Assessed | Millage | Est. Tax | Tax Savings | |||||
|
2026 |
157,500 |
157,500 |
17,325 |
0 |
17,325 |
122.90 |
$2,129 |
$0 |
|||||
|
2025 |
159,500 |
115,502 |
12,705 |
0 |
12,705 |
122.90 |
$1,561 |
$595 |
|||||
|
2024 |
139,500 |
110,002 |
12,100 |
0 |
12,100 |
123.89 |
$1,499 |
$402 |
|||||
|
2023 |
130,500 |
104,764 |
11,523 |
0 |
11,523 |
122.82 |
$1,415 |
$348 |
|||||
|
2022 |
113,500 |
99,776 |
10,974 |
0 |
10,974 |
117.63 |
$1,291 |
$178 |
|||||
| Property Account Status/Adjustments/Exemptions | ||||||
|---|---|---|---|---|---|---|
| Account # | Exemption Description | Amount | ||||
| No adjustment/exemption records returned. | ||||||
| Property Deed Transaction History (Recorded in the County Clerk's Office) | ||||||||||
|---|---|---|---|---|---|---|---|---|---|---|
| Date | Type | Book | Page | Price | Grantor | Grantee | ||||
|
9/25/2025 |
|
Deeds |
$175,000 |
T & D PROPERTY MANAGEMENT LLC |
COURTNEY KAYLA JEAN |
|||||
|
4/13/2016 |
|
Hmstd Off & |
$0 |
DURANT DAVID S & TINA |
T & D PROPERTY MANAGEMENT LLC |
|||||
|
12/8/2003 |
|
Deeds |
$50,000 |
AURORA LOAN SERVICING |
DURANT DAVID S & TINA |
|||||
|
9/8/2003 |
|
|
$0 |
SHAHAN PAMELA & DANIEL |
AURORA LOAN SERVICING |
|||||
|
11/28/2000 |
|
Deeds |
$48,333 |
HANSEN STACY R LAMLE SHAWN DAVID |
SHAHAN PAMELA & DANIEL |
|||||
| Last Mailed Notice of Value (N.O.V.) Information/History | ||||||||
|---|---|---|---|---|---|---|---|---|
| Year | Date | Market Value | Taxable Market Value | Gross Assessed | Exemption | Net Assessed | ||
|
2026 |
02/23/2026 |
157,500 |
157,500 |
17,325 |
0 |
17,325 |
||
|
2025 |
02/14/2025 |
159,500 |
115,502 |
12,705 |
0 |
12,705 |
||
|
2024 |
02/13/2024 |
139,500 |
110,002 |
12,100 |
0 |
12,100 |
||
|
2023 |
02/14/2023 |
130,500 |
104,764 |
11,523 |
0 |
11,523 |
||
|
2022 |
03/15/2022 |
113,500 |
99,776 |
10,974 |
0 |
10,974 |
||
| Property Building Permit History | |||||||||||
|---|---|---|---|---|---|---|---|---|---|---|---|
| Issued | Permit # | Provided by | Bldg # | Description | Est Construction Cost | Status | |||||
| No Building Permit records returned. | |||||||||||
| Click button on building number to access detailed information: | ||||||
|---|---|---|---|---|---|---|
| Bldg # | Vacant/Improved Land | Bldg Description | Year Built | SqFt | # Stories | |
|
1 |
Improved |
Ranch 1 Story |
1950 |
1,323 |
1 Stories |
|