|
|
|
| Larry Stein Oklahoma County Assessor (405) 713-1200 - Public Access System |
|
|
|
|
|
|
| Real Property Display - Screen Produced 3/31/2026 10:11:11 PM | ||||
|---|---|---|---|---|
| Account: R072781105 | Type: Residential | Location: |
3317 NW 45TH TER |
|
| Building Name/Occupant: |
|
OKLAHOMA CITY |
||
| Owner Name 1: | PETERSON KARA L |
Parcel PIN#: |
2852-07-278-1105 |
|
| Owner Name 2: | PETERSON BROCK T | 1/4 section #: |
2852 |
|
| Owner Name 3: | Parent Acct: |
|
||
| Billing Address: | 3317 NW 45TH TER | Tax District: |
|
|
| City, State, Zip | OKLAHOMA CITY, OK 73112-5907 | School System: |
Oklahoma City #89 |
|
|
Country: (If noted) |
Land Size: |
0.1820 Acres |
||
|
Land Value: 19,825 |
|
|||
|
Sect 13-T12N-R4W Qtr NW |
WESTMORELAND REPLAT BLK 1
Block
001
Lot
000
|
|||
| Full Legal Description: WESTMORELAND REPLAT BLK 1 001 000 E50FT OF LOT 10 & W15FT OF LOT 11 |
| Photo & Sketch (if available) | Comp Sales (ordered by relevancy) |
|
||||||||||||||||||
|
||||||||||||||||||||
| Value History (*The County Treasurer 405-713-1300 posts & collects actual tax amounts. Contact information HERE) | |||||||||||||
|---|---|---|---|---|---|---|---|---|---|---|---|---|---|
| Year | Market Value | Taxable Mkt Value | Gross Assessed | Exemption | Net Assessed | Millage | Est. Tax | Tax Savings | |||||
|
2026 |
292,000 |
292,000 |
32,120 |
0 |
32,120 |
122.90 |
$3,948 |
$0 |
|||||
|
2025 |
301,500 |
301,500 |
33,165 |
0 |
33,165 |
122.90 |
$4,076 |
$0 |
|||||
|
2024 |
299,500 |
299,500 |
32,945 |
0 |
32,945 |
123.89 |
$4,082 |
$0 |
|||||
|
2023 |
212,000 |
175,959 |
19,354 |
0 |
19,354 |
122.82 |
$2,377 |
$487 |
|||||
|
2022 |
188,500 |
167,580 |
18,433 |
0 |
18,433 |
117.63 |
$2,168 |
$271 |
|||||
| Property Account Status/Adjustments/Exemptions | ||
|---|---|---|
| Account # | Exemption Description | Amount |
|
R072781105 |
5% Capped Account |
0 |
| Property Deed Transaction History (Recorded in the County Clerk's Office) | ||||||||||
|---|---|---|---|---|---|---|---|---|---|---|
| Date | Type | Book | Page | Price | Grantor | Grantee | ||||
|
10/31/2023 |
|
Deeds |
$310,000 |
GRISBY JEANNETTE E & BRYAN M |
PETERSON KARA L |
|||||
|
11/21/2013 |
|
Deeds |
$143,500 |
PHARAOH TOM C |
GRISBY JEANNETTE E & BRYAN M |
|||||
|
11/17/2000 |
|
Deeds |
$40,000 |
STRICKLAND DOUGLAS & F L TRS STRICKLAND FRANCES L TRUST |
PHARAOH TOM C |
|||||
|
3/28/1997 |
|
Historical |
$0 |
STRICKLAND DOUGLAS & F L TRS |
STRICKLAND DOUGLAS & F L TRS |
|||||
|
8/14/1996 |
|
Historical |
$0 |
STRICKLAND D E & F L |
STRICKLAND DOUGLAS & F L TRS |
|||||
| Last Mailed Notice of Value (N.O.V.) Information/History | ||||||||
|---|---|---|---|---|---|---|---|---|
| Year | Date | Market Value | Taxable Market Value | Gross Assessed | Exemption | Net Assessed | ||
|
2025 |
02/14/2025 |
301,500 |
301,500 |
33,165 |
0 |
33,165 |
||
|
2024 |
02/13/2024 |
299,500 |
299,500 |
32,945 |
0 |
32,945 |
||
|
2023 |
02/14/2023 |
212,000 |
175,959 |
19,354 |
0 |
19,354 |
||
|
2022 |
03/15/2022 |
188,500 |
167,580 |
18,433 |
0 |
18,433 |
||
|
2021 |
03/19/2021 |
160,500 |
159,600 |
17,556 |
0 |
17,556 |
||
| Property Building Permit History | |||||||||||
|---|---|---|---|---|---|---|---|---|---|---|---|
| Issued | Permit # | Provided by | Bldg # | Description | Est Construction Cost | Status | |||||
| No Building Permit records returned. | |||||||||||
| Click button on building number to access detailed information: | ||||||
|---|---|---|---|---|---|---|
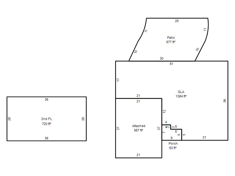
| Bldg # | Vacant/Improved Land | Bldg Description | Year Built | SqFt | # Stories | |
|
1 |
Improved |
1½ Story Fin |
1957 |
2,104 |
1.5 Stories |
|