|
|
|
| Larry Stein Oklahoma County Assessor (405) 713-1200 - Public Access System |
|
|
|
|
|
|
| Real Property Display - Screen Produced 4/4/2026 5:07:58 PM | ||||
|---|---|---|---|---|
| Account: R151141015 | Type: Residential | Location: |
1119 CAROLYN DR |
|
| Building Name/Occupant: |
|
MIDWEST CITY |
||
| Owner Name 1: | MOSLEY ROBBIE L |
Parcel PIN#: |
1415-15-114-1015 |
|
| Owner Name 2: | 1/4 section #: |
1415 |
||
| Owner Name 3: | Parent Acct: |
|
||
| Billing Address: | 1119 CAROLYN DR | Tax District: |
|
|
| City, State, Zip | OKLAHOMA CITY, OK 73110-2423 | School System: |
Mid-Del #52 |
|
|
Country: (If noted) |
Land Size: |
0.4591 Acres |
||
|
Land Value: 53,550 |
|
|||
|
Sect 4-T11N-R2W Qtr SW |
SOONER HEIGHTS
Block
000
Lot
002
|
|||
| Full Legal Description: SOONER HEIGHTS 000 002 |
| Photo & Sketch (if available) | Comp Sales (ordered by relevancy) |
|
||||||||||||||||||
|
||||||||||||||||||||
| Value History (*The County Treasurer 405-713-1300 posts & collects actual tax amounts. Contact information HERE) | |||||||||||||
|---|---|---|---|---|---|---|---|---|---|---|---|---|---|
| Year | Market Value | Taxable Mkt Value | Gross Assessed | Exemption | Net Assessed | Millage | Est. Tax | Tax Savings | |||||
|
2026 |
273,500 |
273,500 |
30,085 |
0 |
30,085 |
119.58 |
$3,598 |
$0 |
|||||
|
2025 |
278,500 |
278,500 |
30,635 |
0 |
30,635 |
119.58 |
$3,663 |
$0 |
|||||
|
2024 |
266,000 |
266,000 |
29,260 |
0 |
29,260 |
122.51 |
$3,585 |
$0 |
|||||
|
2023 |
238,500 |
191,772 |
21,094 |
1,000 |
20,094 |
117.71 |
$2,365 |
$723 |
|||||
|
2022 |
216,500 |
186,187 |
20,480 |
1,000 |
19,480 |
116.64 |
$2,272 |
$506 |
|||||
| Property Account Status/Adjustments/Exemptions | ||
|---|---|---|
| Account # | Exemption Description | Amount |
|
R151141015 |
5% Capped Account |
0 |
| Property Deed Transaction History (Recorded in the County Clerk's Office) | ||||||||||
|---|---|---|---|---|---|---|---|---|---|---|
| Date | Type | Book | Page | Price | Grantor | Grantee | ||||
|
4/27/2023 |
|
Deeds |
$225,000 |
MOSLEY LYNDA D TRS |
MOSLEY ROBBIE L |
|||||
|
7/23/2015 |
|
Deeds |
$0 |
MOSLEY LYNDA D |
MOSLEY LYNDA D TRS |
|||||
|
5/12/2000 |
|
Deeds |
$130,000 |
BAILEY S J & CHRISTENA |
MOSLEY LYNDA D |
|||||
|
9/8/1997 |
|
Historical |
$86,500 |
WILLIAMS GREGORY MARK |
BAILEY S J & CHRISTENA |
|||||
|
2/27/1990 |
|
Historical |
$0 |
WILLIAMS GREGORY M & ROSE M |
WILLIAMS GREGORY MARK |
|||||
| Last Mailed Notice of Value (N.O.V.) Information/History | ||||||||
|---|---|---|---|---|---|---|---|---|
| Year | Date | Market Value | Taxable Market Value | Gross Assessed | Exemption | Net Assessed | ||
|
2025 |
01/31/2025 |
278,500 |
278,500 |
30,635 |
0 |
30,635 |
||
|
2024 |
01/22/2024 |
266,000 |
266,000 |
29,260 |
0 |
29,260 |
||
|
2023 |
01/23/2023 |
238,500 |
191,772 |
21,094 |
1,000 |
20,094 |
||
|
2022 |
02/22/2022 |
216,500 |
186,187 |
20,480 |
1,000 |
19,480 |
||
|
2021 |
02/24/2021 |
191,000 |
180,765 |
19,884 |
1,000 |
18,884 |
||
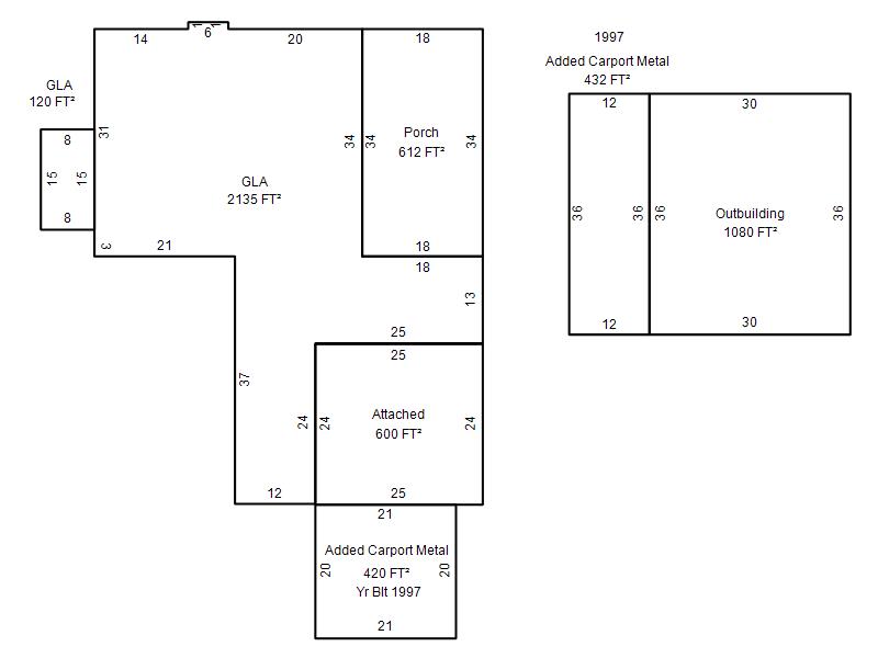
| Property Building Permit History | ||||||
|---|---|---|---|---|---|---|
| Issued | Permit # | Provided by | Bldg # | Description | Est Construction Cost | Status |
|
9/18/1997 |
10247764 |
MIDWEST CITY |
1 |
Garage |
12,500 |
Inactive |
|
9/12/1997 |
10247763 |
MIDWEST CITY |
1 |
Add On |
7,500 |
Inactive |
| Click button on building number to access detailed information: | ||||||
|---|---|---|---|---|---|---|
| Bldg # | Vacant/Improved Land | Bldg Description | Year Built | SqFt | # Stories | |
|
1 |
Improved |
Ranch 1 Story |
1977 |
2,255 |
1 Stories |
|