|
|
|
| Larry Stein Oklahoma County Assessor (405) 713-1200 - Public Access System |
|
|
|
|
|
|
| Real Property Display - Screen Produced 4/2/2026 12:35:49 AM | ||||
|---|---|---|---|---|
| Account: R175330220 | Type: Residential | Location: |
3836 N RIVERSIDE DR |
|
| Building Name/Occupant: |
|
BETHANY |
||
| Owner Name 1: | SCHRAMECK JOHN VICTOR |
Parcel PIN#: |
2870-17-533-0220 |
|
| Owner Name 2: | PIERCE SCHRAMECK LISA MARIE | 1/4 section #: |
2870 |
|
| Owner Name 3: | Parent Acct: |
|
||
| Billing Address: | 3836 N RIVERSIDE DR | Tax District: |
|
|
| City, State, Zip | BETHANY, OK 73008-3052 | School System: |
Putnam City #1 |
|
|
Country: (If noted) |
Land Size: |
0.2410 Acres |
||
|
Land Value: 45,675 |
|
|||
|
Sect 18-T12N-R4W Qtr SE |
ROYCE BROWNS RIVIERA
Block
004
Lot
022
|
|||
| Full Legal Description: ROYCE BROWNS RIVIERA 004 022 |
| Photo & Sketch (if available) | Comp Sales (ordered by relevancy) |
|
||||||||||||||||||
|
||||||||||||||||||||
| Value History (*The County Treasurer 405-713-1300 posts & collects actual tax amounts. Contact information HERE) | |||||||||||||
|---|---|---|---|---|---|---|---|---|---|---|---|---|---|
| Year | Market Value | Taxable Mkt Value | Gross Assessed | Exemption | Net Assessed | Millage | Est. Tax | Tax Savings | |||||
|
2026 |
242,000 |
242,000 |
26,620 |
1,000 |
25,620 |
122.14 |
$3,129 |
$122 |
|||||
|
2025 |
240,000 |
240,000 |
26,400 |
1,000 |
25,400 |
122.14 |
$3,102 |
$122 |
|||||
|
2024 |
246,500 |
246,500 |
27,115 |
1,000 |
26,115 |
120.52 |
$3,147 |
$121 |
|||||
|
2023 |
234,500 |
177,912 |
19,570 |
1,000 |
18,570 |
123.06 |
$2,285 |
$889 |
|||||
|
2022 |
206,500 |
172,731 |
18,999 |
1,000 |
17,999 |
112.54 |
$2,026 |
$531 |
|||||
| Property Account Status/Adjustments/Exemptions | ||
|---|---|---|
| Account # | Exemption Description | Amount |
|
R175330220 |
3% Cap Homestead |
0 |
|
R175330220 |
Homestead |
1,000 |
| Property Deed Transaction History (Recorded in the County Clerk's Office) | ||||||||||
|---|---|---|---|---|---|---|---|---|---|---|
| Date | Type | Book | Page | Price | Grantor | Grantee | ||||
|
7/6/2023 |
|
Deeds |
$197,000 |
PLINICKI SCOTT M & CYNTHIA |
SCHRAMECK JOHN VICTOR |
|||||
|
5/27/2016 |
|
Deeds |
$145,000 |
BARRON PHOEBE K & JEFFERY |
PLINICKI SCOTT M & CYNTHIA |
|||||
|
9/15/2014 |
|
Deeds |
$125,000 |
VOGEL GORDON L & SHANNON |
BARRON PHOEBE K & JEFFERY |
|||||
|
10/24/2012 |
|
Deeds |
$120,000 |
HARMON JAMES C & SHERRIE G |
VOGEL GORDON L & SHANNON |
|||||
|
2/17/2006 |
|
Deeds |
$0 |
VOGEL SHERRIE G |
HARMON JAMES C & SHERRIE G |
|||||
| Last Mailed Notice of Value (N.O.V.) Information/History | ||||||||
|---|---|---|---|---|---|---|---|---|
| Year | Date | Market Value | Taxable Market Value | Gross Assessed | Exemption | Net Assessed | ||
|
2026 |
02/23/2026 |
242,000 |
242,000 |
26,620 |
1,000 |
25,620 |
||
|
2024 |
02/13/2024 |
246,500 |
246,500 |
27,115 |
0 |
27,115 |
||
|
2023 |
02/14/2023 |
234,500 |
177,912 |
19,570 |
1,000 |
18,570 |
||
|
2022 |
03/15/2022 |
206,500 |
172,731 |
18,999 |
1,000 |
17,999 |
||
|
2021 |
03/19/2021 |
180,500 |
167,700 |
18,447 |
1,000 |
17,447 |
||
| Property Building Permit History | |||||||||||
|---|---|---|---|---|---|---|---|---|---|---|---|
| Issued | Permit # | Provided by | Bldg # | Description | Est Construction Cost | Status | |||||
| No Building Permit records returned. | |||||||||||
| Click button on building number to access detailed information: | ||||||
|---|---|---|---|---|---|---|
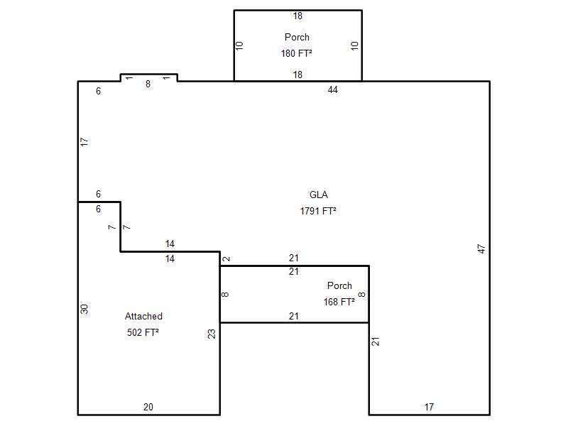
| Bldg # | Vacant/Improved Land | Bldg Description | Year Built | SqFt | # Stories | |
|
1 |
Improved |
Ranch 1 Story |
1966 |
1,791 |
1 Stories |
|