|
|
|
| Larry Stein Oklahoma County Assessor (405) 713-1200 - Public Access System |
|
|
|
|
|
|
| Real Property Display - Screen Produced 4/2/2026 5:55:03 PM | ||||
|---|---|---|---|---|
| Account: R175301395 | Type: Residential | Location: |
3508 N SHANNON AVE |
|
| Building Name/Occupant: |
|
BETHANY |
||
| Owner Name 1: | SIMS TIFFANY A |
Parcel PIN#: |
2873-17-530-1395 |
|
| Owner Name 2: | 1/4 section #: |
2873 |
||
| Owner Name 3: | Parent Acct: |
|
||
| Billing Address: | 3508 N SHANNON AVE | Tax District: |
|
|
| City, State, Zip | BETHANY, OK 73008-3560 | School System: |
Putnam City #1 |
|
|
Country: (If noted) |
Land Size: |
0.1653 Acres |
||
|
Land Value: 27,360 |
|
|||
|
Sect 19-T12N-R4W Qtr NE |
LEWALLENS WESTERN SANDS
Block
002
Lot
026
|
|||
| Full Legal Description: LEWALLENS WESTERN SANDS 002 026 |
| Photo & Sketch (if available) | Comp Sales (ordered by relevancy) |
|
||||||||||||||||||
|
||||||||||||||||||||
| Value History (*The County Treasurer 405-713-1300 posts & collects actual tax amounts. Contact information HERE) | |||||||||||||
|---|---|---|---|---|---|---|---|---|---|---|---|---|---|
| Year | Market Value | Taxable Mkt Value | Gross Assessed | Exemption | Net Assessed | Millage | Est. Tax | Tax Savings | |||||
|
2026 |
209,500 |
209,500 |
23,045 |
0 |
23,045 |
122.14 |
$2,815 |
$0 |
|||||
|
2025 |
211,000 |
184,147 |
20,255 |
0 |
20,255 |
122.14 |
$2,474 |
$361 |
|||||
|
2024 |
206,000 |
175,379 |
19,291 |
0 |
19,291 |
120.52 |
$2,325 |
$406 |
|||||
|
2023 |
195,500 |
167,028 |
18,372 |
0 |
18,372 |
123.06 |
$2,261 |
$385 |
|||||
|
2022 |
164,500 |
159,075 |
17,498 |
0 |
17,498 |
112.54 |
$1,969 |
$67 |
|||||
| Property Account Status/Adjustments/Exemptions | ||||||
|---|---|---|---|---|---|---|
| Account # | Exemption Description | Amount | ||||
| No adjustment/exemption records returned. | ||||||
| Property Deed Transaction History (Recorded in the County Clerk's Office) | ||||||||||
|---|---|---|---|---|---|---|---|---|---|---|
| Date | Type | Book | Page | Price | Grantor | Grantee | ||||
|
6/30/2025 |
|
Deeds |
$195,000 |
HERNANDEZ CRISTIAN ALAN |
SIMS TIFFANY A |
|||||
|
8/7/2020 |
|
Hmstd Off & |
$0 |
SUKASA INVESTMENTS LLC |
ESTRADA JAVIER |
|||||
|
8/7/2020 |
|
Deeds |
$153,000 |
ESTRADA JAVIER |
HERNANDEZ CRISTIAN ALAN |
|||||
|
11/11/2019 |
|
Deeds |
$95,000 |
TNA HOMES LLC |
SUKASA INVESTMENTS LLC |
|||||
|
10/4/2019 |
|
Deeds |
$70,000 |
JESTICE PAUL W & PAULETTA A |
TNA HOMES LLC |
|||||
| Last Mailed Notice of Value (N.O.V.) Information/History | ||||||||
|---|---|---|---|---|---|---|---|---|
| Year | Date | Market Value | Taxable Market Value | Gross Assessed | Exemption | Net Assessed | ||
|
2026 |
02/23/2026 |
209,500 |
209,500 |
23,045 |
0 |
23,045 |
||
|
2025 |
02/14/2025 |
211,000 |
184,147 |
20,255 |
0 |
20,255 |
||
|
2024 |
02/13/2024 |
206,000 |
175,379 |
19,291 |
0 |
19,291 |
||
|
2023 |
02/14/2023 |
195,500 |
167,028 |
18,372 |
0 |
18,372 |
||
|
2022 |
03/15/2022 |
164,500 |
159,075 |
17,498 |
0 |
17,498 |
||
| Property Building Permit History | |||||||||||
|---|---|---|---|---|---|---|---|---|---|---|---|
| Issued | Permit # | Provided by | Bldg # | Description | Est Construction Cost | Status | |||||
| No Building Permit records returned. | |||||||||||
| Click button on building number to access detailed information: | ||||||
|---|---|---|---|---|---|---|
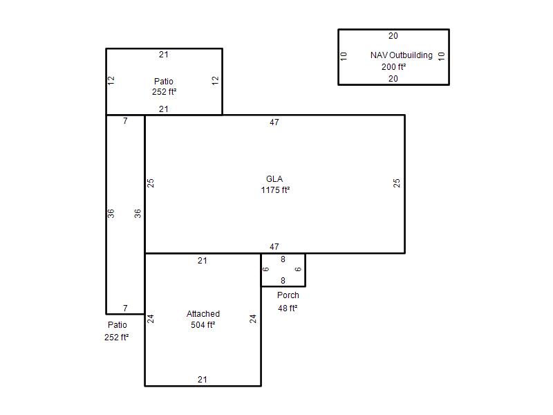
| Bldg # | Vacant/Improved Land | Bldg Description | Year Built | SqFt | # Stories | |
|
1 |
Improved |
Ranch 1 Story |
1962 |
1,175 |
1 Stories |
|