|
|
|
| Larry Stein Oklahoma County Assessor (405) 713-1200 - Public Access System |
|
|
|
|
|
|
| Real Property Display - Screen Produced 4/2/2026 4:11:22 PM | ||||
|---|---|---|---|---|
| Account: R175302145 | Type: Residential | Location: |
8332 NW 34TH ST |
|
| Building Name/Occupant: |
|
BETHANY |
||
| Owner Name 1: | PEREZ RAYMOND CHARLES |
Parcel PIN#: |
2873-17-530-2145 |
|
| Owner Name 2: | PEREZ MARTHA CECILIA | 1/4 section #: |
2873 |
|
| Owner Name 3: | Parent Acct: |
|
||
| Billing Address: | 8332 NW 34TH ST | Tax District: |
|
|
| City, State, Zip | BETHANY, OK 73008 | School System: |
Putnam City #1 |
|
|
Country: (If noted) |
Land Size: |
0.2032 Acres |
||
|
Land Value: 33,630 |
|
|||
|
Sect 19-T12N-R4W Qtr NE |
LEWALLENS WESTERN SANDS
Block
006
Lot
009
|
|||
| Full Legal Description: LEWALLENS WESTERN SANDS 006 009 |
| Photo & Sketch (if available) | Comp Sales (ordered by relevancy) |
|
||||||||||||||||||
|
||||||||||||||||||||
| Value History (*The County Treasurer 405-713-1300 posts & collects actual tax amounts. Contact information HERE) | |||||||||||||
|---|---|---|---|---|---|---|---|---|---|---|---|---|---|
| Year | Market Value | Taxable Mkt Value | Gross Assessed | Exemption | Net Assessed | Millage | Est. Tax | Tax Savings | |||||
|
2026 |
202,500 |
202,500 |
22,275 |
0 |
22,275 |
122.14 |
$2,721 |
$0 |
|||||
|
2025 |
205,500 |
205,500 |
22,605 |
0 |
22,605 |
122.14 |
$2,761 |
$0 |
|||||
|
2024 |
201,500 |
201,500 |
22,165 |
0 |
22,165 |
120.52 |
$2,671 |
$0 |
|||||
|
2023 |
190,500 |
151,069 |
16,617 |
0 |
16,617 |
123.06 |
$2,045 |
$534 |
|||||
|
2022 |
168,000 |
143,876 |
15,825 |
0 |
15,825 |
112.54 |
$1,781 |
$299 |
|||||
| Property Account Status/Adjustments/Exemptions | ||
|---|---|---|
| Account # | Exemption Description | Amount |
|
R175302145 |
5% Capped Account |
0 |
| Property Deed Transaction History (Recorded in the County Clerk's Office) | ||||||||||
|---|---|---|---|---|---|---|---|---|---|---|
| Date | Type | Book | Page | Price | Grantor | Grantee | ||||
|
1/26/2023 |
|
Deeds |
$195,000 |
DENHAM PROPERTIES LLC |
PEREZ RAYMOND CHARLES |
|||||
|
9/14/2015 |
|
Deeds |
$115,000 |
HUTCHINSON LEE ANN |
DENHAM PROPERTIES LLC |
|||||
|
8/25/2015 |
|
Deeds |
$0 |
HUTCHINSON LEE ANN JORDAN BECKY LU |
HUTCHINSON LEE ANN |
|||||
|
8/21/2015 |
|
Deeds |
$0 |
HUTCHINSON THOMAS LOUIS & LEE ANN JORDAN BECKY LU |
HUTCHINSON LEE ANN JORDAN BECKY LU |
|||||
|
3/31/2000 |
|
Deeds |
$0 |
HUTCHINSON THOMAS L & LEE ANN |
HUTCHINSON THOMAS LOUIS & LEE ANN JORDAN BECKY LU |
|||||
| Last Mailed Notice of Value (N.O.V.) Information/History | ||||||||
|---|---|---|---|---|---|---|---|---|
| Year | Date | Market Value | Taxable Market Value | Gross Assessed | Exemption | Net Assessed | ||
|
2025 |
02/14/2025 |
205,500 |
205,500 |
22,605 |
0 |
22,605 |
||
|
2024 |
02/13/2024 |
201,500 |
201,500 |
22,165 |
0 |
22,165 |
||
|
2023 |
02/14/2023 |
190,500 |
151,069 |
16,617 |
0 |
16,617 |
||
|
2022 |
03/15/2022 |
168,000 |
143,876 |
15,825 |
0 |
15,825 |
||
|
2021 |
03/19/2021 |
140,000 |
137,025 |
15,072 |
0 |
15,072 |
||
| Property Building Permit History | |||||||||||
|---|---|---|---|---|---|---|---|---|---|---|---|
| Issued | Permit # | Provided by | Bldg # | Description | Est Construction Cost | Status | |||||
| No Building Permit records returned. | |||||||||||
| Click button on building number to access detailed information: | ||||||
|---|---|---|---|---|---|---|
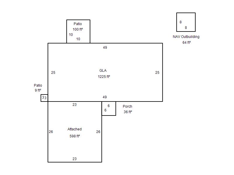
| Bldg # | Vacant/Improved Land | Bldg Description | Year Built | SqFt | # Stories | |
|
1 |
Improved |
Ranch 1 Story |
1962 |
1,225 |
1 Stories |
|