|
|
|
| Larry Stein Oklahoma County Assessor (405) 713-1200 - Public Access System |
|
|
|
|
|
|
| Real Property Display - Screen Produced 4/2/2026 1:50:40 AM | ||||
|---|---|---|---|---|
| Account: R173892695 | Type: Residential | Location: |
7716 NW 26TH ST |
|
| Building Name/Occupant: |
|
BETHANY |
||
| Owner Name 1: | XIONG JULIA HLIDA |
Parcel PIN#: |
2879-17-389-2695 |
|
| Owner Name 2: | HER PONGYU CHRISTIAN | 1/4 section #: |
2879 |
|
| Owner Name 3: | Parent Acct: |
|
||
| Billing Address: | 7716 NW 26TH ST | Tax District: |
|
|
| City, State, Zip | BETHANY, OK 73008-4936 | School System: |
Putnam City #1 |
|
|
Country: (If noted) |
Land Size: |
0.1858 Acres |
||
|
Land Value: 32,368 |
|
|||
|
Sect 20-T12N-R4W Qtr SW |
DEVILLE PARK
Block
009
Lot
000
|
|||
| Full Legal Description: DEVILLE PARK 009 000 W16FT LOT 4 & E52FT LOT 5 |
| Photo & Sketch (if available) | Comp Sales (ordered by relevancy) |
|
||||||||||||||||||
|
||||||||||||||||||||
| Value History (*The County Treasurer 405-713-1300 posts & collects actual tax amounts. Contact information HERE) | |||||||||||||
|---|---|---|---|---|---|---|---|---|---|---|---|---|---|
| Year | Market Value | Taxable Mkt Value | Gross Assessed | Exemption | Net Assessed | Millage | Est. Tax | Tax Savings | |||||
|
2026 |
245,000 |
245,000 |
26,950 |
1,000 |
25,950 |
122.14 |
$3,170 |
$122 |
|||||
|
2025 |
243,500 |
243,500 |
26,785 |
1,000 |
25,785 |
122.14 |
$3,149 |
$122 |
|||||
|
2024 |
201,500 |
169,561 |
18,651 |
0 |
18,651 |
120.52 |
$2,248 |
$423 |
|||||
|
2023 |
193,500 |
161,487 |
17,762 |
0 |
17,762 |
123.06 |
$2,186 |
$433 |
|||||
|
2022 |
172,500 |
153,798 |
16,917 |
0 |
16,917 |
112.54 |
$1,904 |
$232 |
|||||
| Property Account Status/Adjustments/Exemptions | ||
|---|---|---|
| Account # | Exemption Description | Amount |
|
R173892695 |
Homestead |
1,000 |
| Property Deed Transaction History (Recorded in the County Clerk's Office) | ||||||||||
|---|---|---|---|---|---|---|---|---|---|---|
| Date | Type | Book | Page | Price | Grantor | Grantee | ||||
|
8/25/2025 |
|
Deeds |
$280,000 |
MAY MISTY |
XIONG JULIA HLIDA |
|||||
|
4/17/2024 |
|
Deeds |
$269,500 |
FIGUEROA ANGELA AVIGAIL |
MAY MISTY |
|||||
|
8/10/2017 |
|
Deeds |
$125,000 |
MORRICAL JOHN DOUGLAS TRS ETAL MORRICAL JOHN DOUGLAS REV LIV |
FIGUEROA ANGELA AVIGAIL |
|||||
|
1/12/2012 |
|
Deeds |
$0 |
MORRICAL JOHN D & ANN C |
MORRICAL JOHN DOUGLAS TRS ETAL MORRICAL JOHN DOUGLAS REV LIV |
|||||
|
5/17/2005 |
|
Hmstd Off & |
$0 |
SOUTHWICK JUDY LYNN |
MORRICAL JOHN |
|||||
| Last Mailed Notice of Value (N.O.V.) Information/History | ||||||||
|---|---|---|---|---|---|---|---|---|
| Year | Date | Market Value | Taxable Market Value | Gross Assessed | Exemption | Net Assessed | ||
|
2026 |
02/23/2026 |
245,000 |
245,000 |
26,950 |
0 |
26,950 |
||
|
2025 |
02/14/2025 |
243,500 |
243,500 |
26,785 |
1,000 |
25,785 |
||
|
2024 |
02/13/2024 |
201,500 |
169,561 |
18,651 |
0 |
18,651 |
||
|
2023 |
02/14/2023 |
193,500 |
161,487 |
17,762 |
0 |
17,762 |
||
|
2022 |
03/15/2022 |
172,500 |
153,798 |
16,917 |
0 |
16,917 |
||
| Property Building Permit History | |||||||||||
|---|---|---|---|---|---|---|---|---|---|---|---|
| Issued | Permit # | Provided by | Bldg # | Description | Est Construction Cost | Status | |||||
| No Building Permit records returned. | |||||||||||
| Click button on building number to access detailed information: | ||||||
|---|---|---|---|---|---|---|
| Bldg # | Vacant/Improved Land | Bldg Description | Year Built | SqFt | # Stories | |
|
1 |
Improved |
Ranch 1 Story |
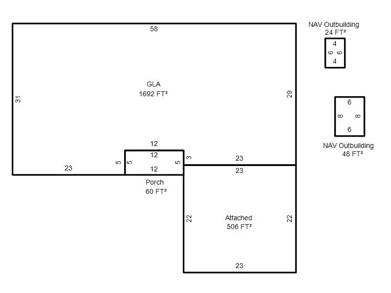
1962 |
1,692 |
1 Stories |
|