|
|
|
| Larry Stein Oklahoma County Assessor (405) 713-1200 - Public Access System |
|
|
|
|
|
|
| Real Property Display - Screen Produced 4/2/2026 11:49:17 AM | ||||
|---|---|---|---|---|
| Account: R113653030 | Type: Residential | Location: |
3249 N ROFF AVE |
|
| Building Name/Occupant: |
|
OKLAHOMA CITY |
||
| Owner Name 1: | GFELLER TRISTAN |
Parcel PIN#: |
2889-11-365-3030 |
|
| Owner Name 2: | 1/4 section #: |
2889 |
||
| Owner Name 3: | Parent Acct: |
|
||
| Billing Address: | 3249 N ROFF AVE | Tax District: |
|
|
| City, State, Zip | OKLAHOMA CITY, OK 73112-3343 | School System: |
Oklahoma City #89 |
|
|
Country: (If noted) |
Land Size: |
0.1540 Acres |
||
|
Land Value: 26,832 |
|
|||
|
Sect 23-T12N-R4W Qtr NE |
L L LYON SKYLINE VW
Block
013
Lot
036
|
|||
| Full Legal Description: L L LYON SKYLINE VW 013 036 |
| Photo & Sketch (if available) | Comp Sales (ordered by relevancy) |
|
||||||||||||||||||
|
||||||||||||||||||||
| Value History (*The County Treasurer 405-713-1300 posts & collects actual tax amounts. Contact information HERE) | |||||||||||||
|---|---|---|---|---|---|---|---|---|---|---|---|---|---|
| Year | Market Value | Taxable Mkt Value | Gross Assessed | Exemption | Net Assessed | Millage | Est. Tax | Tax Savings | |||||
|
2026 |
169,000 |
169,000 |
18,590 |
0 |
18,590 |
122.90 |
$2,285 |
$0 |
|||||
|
2025 |
177,000 |
118,244 |
13,006 |
1,000 |
12,006 |
122.90 |
$1,476 |
$917 |
|||||
|
2024 |
172,500 |
114,800 |
12,627 |
1,000 |
11,627 |
123.89 |
$1,441 |
$910 |
|||||
|
2023 |
162,500 |
111,457 |
12,260 |
1,000 |
11,260 |
122.82 |
$1,383 |
$812 |
|||||
|
2022 |
143,500 |
108,211 |
11,902 |
1,000 |
10,902 |
117.63 |
$1,283 |
$574 |
|||||
| Property Account Status/Adjustments/Exemptions | ||||||
|---|---|---|---|---|---|---|
| Account # | Exemption Description | Amount | ||||
| No adjustment/exemption records returned. | ||||||
| Property Deed Transaction History (Recorded in the County Clerk's Office) | ||||||||||
|---|---|---|---|---|---|---|---|---|---|---|
| Date | Type | Book | Page | Price | Grantor | Grantee | ||||
|
2/13/2025 |
|
Deeds |
$154,000 |
TEPSIC LEVI DANE |
GFELLER TRISTAN |
|||||
|
5/15/2018 |
|
Deeds |
$98,000 |
COLALUCA STEPHANIE |
TEPSIC LEVI DANE |
|||||
|
2/8/2016 |
|
Deeds |
$94,000 |
WICKENKAMP JASON & SUZANNE |
COLALUCA STEPHANIE |
|||||
|
7/20/2012 |
|
Deeds |
$0 |
MILLER SUZANNE |
WICKENKAMP JASON & SUZANNE |
|||||
|
9/25/2009 |
|
Deeds |
$84,000 |
LUTTRELL JAY T |
MILLER SUZANNE |
|||||
| Last Mailed Notice of Value (N.O.V.) Information/History | ||||||||
|---|---|---|---|---|---|---|---|---|
| Year | Date | Market Value | Taxable Market Value | Gross Assessed | Exemption | Net Assessed | ||
|
2026 |
02/23/2026 |
169,000 |
169,000 |
18,590 |
0 |
18,590 |
||
|
2025 |
02/14/2025 |
177,000 |
118,244 |
13,006 |
1,000 |
12,006 |
||
|
2025 |
03/28/2025 |
177,000 |
118,244 |
13,006 |
1,000 |
12,006 |
||
|
2024 |
02/13/2024 |
172,500 |
114,800 |
12,627 |
1,000 |
11,627 |
||
|
2023 |
02/14/2023 |
162,500 |
111,457 |
12,260 |
1,000 |
11,260 |
||
| Property Building Permit History | |||||||||||
|---|---|---|---|---|---|---|---|---|---|---|---|
| Issued | Permit # | Provided by | Bldg # | Description | Est Construction Cost | Status | |||||
| No Building Permit records returned. | |||||||||||
| Click button on building number to access detailed information: | ||||||
|---|---|---|---|---|---|---|
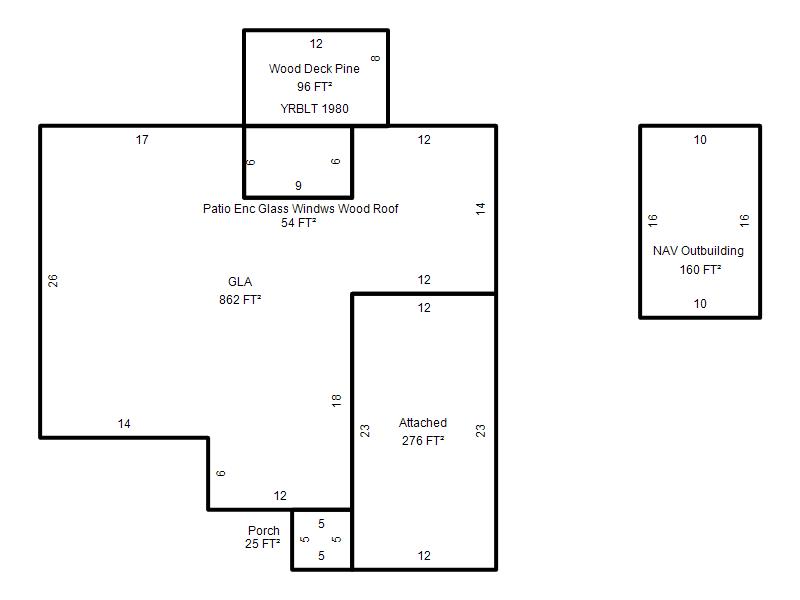
| Bldg # | Vacant/Improved Land | Bldg Description | Year Built | SqFt | # Stories | |
|
1 |
Improved |
Ranch 1 Story |
1951 |
862 |
1 Stories |
|