|
|
|
| Larry Stein Oklahoma County Assessor (405) 713-1200 - Public Access System |
|
|
|
|
|
|
| Real Property Display - Screen Produced 4/3/2026 10:47:33 PM | ||||
|---|---|---|---|---|
| Account: R066307050 | Type: Residential | Location: |
1136 N WOODWARD AVE |
|
| Building Name/Occupant: |
|
OKLAHOMA CITY |
||
| Owner Name 1: | BIG ROCK PROPERTIES INC |
Parcel PIN#: |
2899-06-630-7050 |
|
| Owner Name 2: | 1/4 section #: |
2899 |
||
| Owner Name 3: | Parent Acct: |
|
||
| Billing Address: | 2032 NW 18TH ST | Tax District: |
|
|
| City, State, Zip | OKLAHOMA CITY, OK 73106-1821 | School System: |
Oklahoma City #89 |
|
|
Country: (If noted) |
Land Size: |
0.1240 Acres |
||
|
Land Value: 11,880 |
|
|||
|
Sect 25-T12N-R4W Qtr SW |
GOFFS REPLAT BLK 32
Block
001
Lot
020
|
|||
| Full Legal Description: GOFFS REPLAT BLK 32 001 020 |
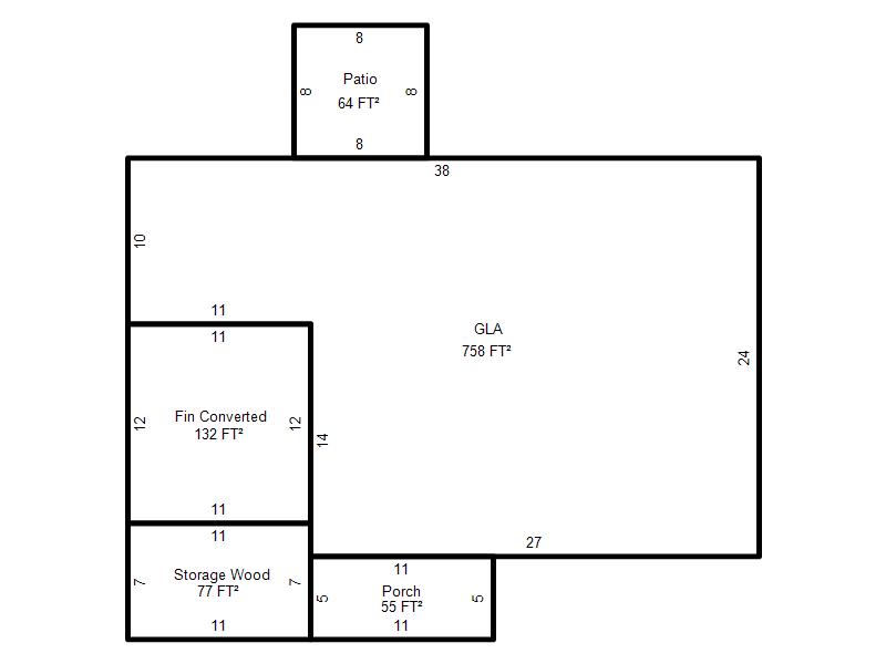
| Photo & Sketch (if available) | Comp Sales (ordered by relevancy) |
|
||||||||||||||||||
|
||||||||||||||||||||
| Value History (*The County Treasurer 405-713-1300 posts & collects actual tax amounts. Contact information HERE) | |||||||||||||
|---|---|---|---|---|---|---|---|---|---|---|---|---|---|
| Year | Market Value | Taxable Mkt Value | Gross Assessed | Exemption | Net Assessed | Millage | Est. Tax | Tax Savings | |||||
|
2026 |
108,500 |
108,500 |
11,935 |
0 |
11,935 |
122.90 |
$1,467 |
$0 |
|||||
|
2025 |
109,500 |
109,500 |
12,045 |
0 |
12,045 |
122.90 |
$1,480 |
$0 |
|||||
|
2024 |
90,000 |
58,914 |
6,479 |
0 |
6,479 |
123.89 |
$803 |
$424 |
|||||
|
2023 |
82,500 |
56,109 |
6,171 |
0 |
6,171 |
122.82 |
$758 |
$357 |
|||||
|
2022 |
71,500 |
53,438 |
5,876 |
0 |
5,876 |
117.63 |
$691 |
$234 |
|||||
| Property Account Status/Adjustments/Exemptions | ||
|---|---|---|
| Account # | Exemption Description | Amount |
|
R066307050 |
5% Capped Account |
0 |
| Property Deed Transaction History (Recorded in the County Clerk's Office) | |||||||
|---|---|---|---|---|---|---|---|
| Date | Type | Book | Page | Price | Grantor | Grantee | |
|
11/19/2024 |
|
Deeds |
$128,000 |
DILLON MARGY |
BIG ROCK PROPERTIES INC |
||
|
2/17/1998 |
|
Historical |
$0 |
SECRETARY OF HOUSING |
DILLON MARGY |
||
|
6/11/1997 |
|
Historical |
$0 |
RENSHAW WILLIAM D |
SECRETARY OF HOUSING |
||
|
10/1/1979 |
|
Historical |
$0 |
|
RENSHAW WILLIAM D |
||
| Last Mailed Notice of Value (N.O.V.) Information/History | ||||||||
|---|---|---|---|---|---|---|---|---|
| Year | Date | Market Value | Taxable Market Value | Gross Assessed | Exemption | Net Assessed | ||
|
2025 |
02/14/2025 |
109,500 |
109,500 |
12,045 |
0 |
12,045 |
||
|
2024 |
02/13/2024 |
90,000 |
58,914 |
6,479 |
0 |
6,479 |
||
|
2023 |
02/14/2023 |
82,500 |
56,109 |
6,171 |
0 |
6,171 |
||
|
2022 |
03/15/2022 |
71,500 |
53,438 |
5,876 |
0 |
5,876 |
||
|
2021 |
03/19/2021 |
58,500 |
50,894 |
5,598 |
0 |
5,598 |
||
| Property Building Permit History | |||||||||||
|---|---|---|---|---|---|---|---|---|---|---|---|
| Issued | Permit # | Provided by | Bldg # | Description | Est Construction Cost | Status | |||||
| No Building Permit records returned. | |||||||||||
| Click button on building number to access detailed information: | ||||||
|---|---|---|---|---|---|---|
| Bldg # | Vacant/Improved Land | Bldg Description | Year Built | SqFt | # Stories | |
|
1 |
Improved |
Ranch 1 Story |
1946 |
758 |
1 Stories |
|