|
|
|
| Larry Stein Oklahoma County Assessor (405) 713-1200 - Public Access System |
|
|
|
|
|
|
| Real Property Display - Screen Produced 4/5/2026 8:28:19 AM | ||||
|---|---|---|---|---|
| Account: R120411080 | Type: Residential | Location: |
21822 FAYE LN |
|
| Building Name/Occupant: |
|
UNINCORPORATED |
||
| Owner Name 1: | CAPORAL TAMMIE |
Parcel PIN#: |
1046-12-041-1080 |
|
| Owner Name 2: | 1/4 section #: |
1046 |
||
| Owner Name 3: | Parent Acct: |
|
||
| Billing Address: | 21822 FAYE LN | Tax District: |
|
|
| City, State, Zip | HARRAH, OK 73045 | School System: |
McLoud #1 |
|
|
Country: (If noted) |
Land Size: |
4.8200 Acres |
||
|
Land Value: 90,857 |
|
|||
|
Sect 12-T11N-R1E Qtr SE |
HOBSON HILLS
Block
000
Lot
009
|
|||
| Full Legal Description: HOBSON HILLS LOT 009 |
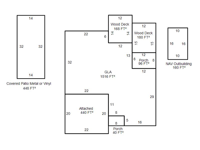
| Photo & Sketch (if available) | Comp Sales (ordered by relevancy) |
|
||||||||||||||||||
|
||||||||||||||||||||
| Value History (*The County Treasurer 405-713-1300 posts & collects actual tax amounts. Contact information HERE) | |||||||||||||
|---|---|---|---|---|---|---|---|---|---|---|---|---|---|
| Year | Market Value | Taxable Mkt Value | Gross Assessed | Exemption | Net Assessed | Millage | Est. Tax | Tax Savings | |||||
|
2026 |
322,000 |
322,000 |
35,420 |
0 |
35,420 |
92.42 |
$3,274 |
$0 |
|||||
|
2025 |
344,500 |
344,500 |
37,895 |
0 |
37,895 |
92.42 |
$3,502 |
$0 |
|||||
|
2024 |
345,500 |
345,500 |
38,005 |
0 |
38,005 |
93.08 |
$3,538 |
$0 |
|||||
|
2023 |
314,500 |
219,446 |
24,138 |
0 |
24,138 |
92.16 |
$2,225 |
$964 |
|||||
|
2022 |
256,500 |
208,997 |
22,989 |
1,000 |
21,989 |
93.49 |
$2,056 |
$582 |
|||||
| Property Account Status/Adjustments/Exemptions | ||
|---|---|---|
| Account # | Exemption Description | Amount |
|
R120411080 |
5% Capped Account |
0 |
| Property Deed Transaction History (Recorded in the County Clerk's Office) | ||||||||||
|---|---|---|---|---|---|---|---|---|---|---|
| Date | Type | Book | Page | Price | Grantor | Grantee | ||||
|
2/1/2023 |
|
Deeds |
$288,000 |
WISE SHARON |
CAPORAL TAMMIE |
|||||
|
10/3/2007 |
|
Deeds |
$0 |
STACK ROBERT W & JUDITH R |
WISE SHARON |
|||||
|
8/31/2007 |
|
Deeds |
$139,500 |
STACK JUDITH |
WISE SHARON |
|||||
|
11/17/1998 |
|
Historical |
$105,000 |
HOBSON LEONARD F & FAYE L TRS |
STACK JUDITH |
|||||
|
6/23/1992 |
|
Historical |
$0 |
HOBSON LEONARD F & FAYE L |
HOBSON LEONARD F & FAYE L TRS |
|||||
| Last Mailed Notice of Value (N.O.V.) Information/History | ||||||||
|---|---|---|---|---|---|---|---|---|
| Year | Date | Market Value | Taxable Market Value | Gross Assessed | Exemption | Net Assessed | ||
|
2024 |
01/22/2024 |
345,500 |
345,500 |
38,005 |
0 |
38,005 |
||
|
2023 |
01/23/2023 |
314,500 |
215,266 |
23,678 |
1,000 |
22,678 |
||
|
2023 |
03/02/2023 |
314,500 |
219,446 |
24,138 |
0 |
24,138 |
||
|
2022 |
02/22/2022 |
256,500 |
208,997 |
22,989 |
1,000 |
21,989 |
||
|
2021 |
02/24/2021 |
216,500 |
202,910 |
22,320 |
1,000 |
21,320 |
||
| Property Building Permit History | ||||||
|---|---|---|---|---|---|---|
| Issued | Permit # | Provided by | Bldg # | Description | Est Construction Cost | Status |
|
5/22/1998 |
10206383 |
COUNTY |
1 |
Main Dwellin |
55,000 |
Inactive |
| Click button on building number to access detailed information: | ||||||
|---|---|---|---|---|---|---|
| Bldg # | Vacant/Improved Land | Bldg Description | Year Built | SqFt | # Stories | |
|
1 |
Improved |
Ranch 1 Story |
1998 |
1,516 |
1 Stories |
|