|
|
|
| Larry Stein Oklahoma County Assessor (405) 713-1200 - Public Access System |
|
|
|
|
|
|
| Real Property Display - Screen Produced 4/2/2026 10:09:13 PM | ||||
|---|---|---|---|---|
| Account: R145403335 | Type: Residential | Location: |
4616 NW 12TH ST |
|
| Building Name/Occupant: |
|
OKLAHOMA CITY |
||
| Owner Name 1: | NUNEZ JORGE & ALISA |
Parcel PIN#: |
2906-14-540-3335 |
|
| Owner Name 2: | 1/4 section #: |
2906 |
||
| Owner Name 3: | Parent Acct: |
|
||
| Billing Address: | 4616 NW 12TH ST | Tax District: |
|
|
| City, State, Zip | OKLAHOMA CITY, OK 73127-4010 | School System: |
Putnam City #1 |
|
|
Country: (If noted) |
Land Size: |
0.1515 Acres |
||
|
Land Value: 18,480 |
|
|||
|
Sect 27-T12N-R4W Qtr SE |
HILLDALE ADDITION
Block
008
Lot
023
|
|||
| Full Legal Description: HILLDALE ADDITION 008 023 |
| Photo & Sketch (if available) | Comp Sales (ordered by relevancy) |
|
||||||||||||||||||
|
||||||||||||||||||||
| Value History (*The County Treasurer 405-713-1300 posts & collects actual tax amounts. Contact information HERE) | |||||||||||||
|---|---|---|---|---|---|---|---|---|---|---|---|---|---|
| Year | Market Value | Taxable Mkt Value | Gross Assessed | Exemption | Net Assessed | Millage | Est. Tax | Tax Savings | |||||
|
2026 |
137,500 |
137,500 |
15,125 |
1,000 |
14,125 |
123.17 |
$1,740 |
$123 |
|||||
|
2025 |
138,000 |
106,374 |
11,700 |
0 |
11,700 |
123.17 |
$1,441 |
$428 |
|||||
|
2024 |
136,500 |
101,309 |
11,143 |
0 |
11,143 |
122.30 |
$1,363 |
$473 |
|||||
|
2023 |
128,500 |
96,485 |
10,613 |
0 |
10,613 |
121.91 |
$1,294 |
$429 |
|||||
|
2022 |
110,500 |
91,891 |
10,107 |
0 |
10,107 |
123.41 |
$1,247 |
$253 |
|||||
| Property Account Status/Adjustments/Exemptions | ||
|---|---|---|
| Account # | Exemption Description | Amount |
|
R145403335 |
Homestead |
1,000 |
| Property Deed Transaction History (Recorded in the County Clerk's Office) | ||||||||||
|---|---|---|---|---|---|---|---|---|---|---|
| Date | Type | Book | Page | Price | Grantor | Grantee | ||||
|
6/16/2025 |
|
Deeds |
$150,000 |
EVCO ENTERPRISES INC |
NUNEZ JORGE & ALISA |
|||||
|
9/23/2013 |
|
Hmstd Off & |
$0 |
EVANOFF JIM E |
EVCO ENTERPRISES INC |
|||||
|
2/2/2012 |
|
Deeds |
$67,000 |
EVANOFF KARISSA D |
EVANOFF JIM E |
|||||
|
9/28/2006 |
|
Deeds |
$72,000 |
HOWARD HARRIETT |
EVANOFF KARISSA D |
|||||
|
3/16/1988 |
|
Historical |
$0 |
WHITE LOREETA M & JOHN K |
HOWARD HARRIETT |
|||||
| Last Mailed Notice of Value (N.O.V.) Information/History | ||||||||
|---|---|---|---|---|---|---|---|---|
| Year | Date | Market Value | Taxable Market Value | Gross Assessed | Exemption | Net Assessed | ||
|
2026 |
02/23/2026 |
137,500 |
137,500 |
15,125 |
1,000 |
14,125 |
||
|
2025 |
02/14/2025 |
138,000 |
106,374 |
11,700 |
0 |
11,700 |
||
|
2024 |
02/13/2024 |
136,500 |
101,309 |
11,143 |
0 |
11,143 |
||
|
2023 |
02/14/2023 |
128,500 |
96,485 |
10,613 |
0 |
10,613 |
||
|
2022 |
03/15/2022 |
110,500 |
91,891 |
10,107 |
0 |
10,107 |
||
| Property Building Permit History | |||||||||||
|---|---|---|---|---|---|---|---|---|---|---|---|
| Issued | Permit # | Provided by | Bldg # | Description | Est Construction Cost | Status | |||||
| No Building Permit records returned. | |||||||||||
| Click button on building number to access detailed information: | ||||||
|---|---|---|---|---|---|---|
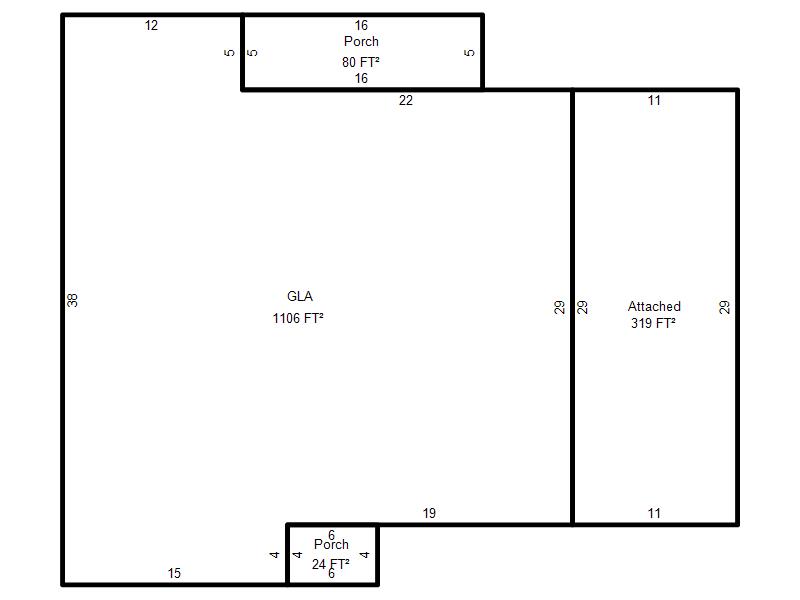
| Bldg # | Vacant/Improved Land | Bldg Description | Year Built | SqFt | # Stories | |
|
1 |
Improved |
Ranch 1 Story |
1954 |
1,106 |
1 Stories |
|