|
|
|
| Larry Stein Oklahoma County Assessor (405) 713-1200 - Public Access System |
|
|
|
|
|
|
| Real Property Display - Screen Produced 4/2/2026 8:17:12 AM | ||||
|---|---|---|---|---|
| Account: R148111810 | Type: Residential | Location: |
628 TIMBER LN |
|
| Building Name/Occupant: |
|
OKLAHOMA CITY |
||
| Owner Name 1: | DE LEON ESMELDA FINITA |
Parcel PIN#: |
2925-14-811-1810 |
|
| Owner Name 2: | FOWLER KERRI NEIL | 1/4 section #: |
2925 |
|
| Owner Name 3: | Parent Acct: |
|
||
| Billing Address: | 628 TIMBER LN | Tax District: |
|
|
| City, State, Zip | OKLAHOMA CITY, OK 73127-5223 | School System: |
Western Heights #41 |
|
|
Country: (If noted) |
Land Size: |
0.1543 Acres |
||
|
Land Value: 18,816 |
|
|||
|
Sect 32-T12N-R4W Qtr NE |
WEST OAKS 3RD
Block
009
Lot
018
|
|||
| Full Legal Description: WEST OAKS 3RD 009 018 |
| Photo & Sketch (if available) | Comp Sales (ordered by relevancy) |
|
||||||||||||||||||
|
||||||||||||||||||||
| Value History (*The County Treasurer 405-713-1300 posts & collects actual tax amounts. Contact information HERE) | |||||||||||||
|---|---|---|---|---|---|---|---|---|---|---|---|---|---|
| Year | Market Value | Taxable Mkt Value | Gross Assessed | Exemption | Net Assessed | Millage | Est. Tax | Tax Savings | |||||
|
2026 |
135,000 |
135,000 |
14,850 |
0 |
14,850 |
118.35 |
$1,757 |
$0 |
|||||
|
2025 |
135,000 |
135,000 |
14,850 |
0 |
14,850 |
118.35 |
$1,757 |
$0 |
|||||
|
2024 |
130,500 |
116,865 |
12,855 |
0 |
12,855 |
118.83 |
$1,528 |
$178 |
|||||
|
2023 |
120,000 |
111,300 |
12,243 |
0 |
12,243 |
116.69 |
$1,429 |
$112 |
|||||
|
2022 |
106,000 |
106,000 |
11,660 |
0 |
11,660 |
118.05 |
$1,376 |
$0 |
|||||
| Property Account Status/Adjustments/Exemptions | ||
|---|---|---|
| Account # | Exemption Description | Amount |
|
R148111810 |
5% Capped Account |
0 |
| Property Deed Transaction History (Recorded in the County Clerk's Office) | ||||||||||
|---|---|---|---|---|---|---|---|---|---|---|
| Date | Type | Book | Page | Price | Grantor | Grantee | ||||
|
12/26/2024 |
|
Deeds |
$120,000 |
SETCHA LLC |
DE LEON ESMELDA FINITA |
|||||
|
10/11/2021 |
|
Hmstd Off & |
$0 |
SETCHA LLC |
SETCHA LLC |
|||||
|
7/30/2021 |
|
Deeds |
$102,000 |
MOUNTAIN VIEW ACQUISITIONS LLC |
SETCHA LLC |
|||||
|
7/29/2021 |
|
Deeds |
$90,000 |
HONEA CAITLYN MICHELLE |
MOUNTAIN VIEW ACQUISITIONS LLC |
|||||
|
7/19/2018 |
|
Deeds |
$95,000 |
FOUR TWO INVESTMENTS LLC |
HONEA CAITLYN MICHELLE |
|||||
| Last Mailed Notice of Value (N.O.V.) Information/History | ||||||||
|---|---|---|---|---|---|---|---|---|
| Year | Date | Market Value | Taxable Market Value | Gross Assessed | Exemption | Net Assessed | ||
|
2025 |
02/14/2025 |
135,000 |
135,000 |
14,850 |
0 |
14,850 |
||
|
2024 |
02/13/2024 |
130,500 |
116,865 |
12,855 |
0 |
12,855 |
||
|
2023 |
02/14/2023 |
120,000 |
111,300 |
12,243 |
0 |
12,243 |
||
|
2022 |
03/15/2022 |
106,000 |
106,000 |
11,660 |
0 |
11,660 |
||
|
2019 |
04/02/2019 |
94,000 |
94,000 |
10,340 |
0 |
10,340 |
||
| Property Building Permit History | |||||||||||
|---|---|---|---|---|---|---|---|---|---|---|---|
| Issued | Permit # | Provided by | Bldg # | Description | Est Construction Cost | Status | |||||
| No Building Permit records returned. | |||||||||||
| Click button on building number to access detailed information: | ||||||
|---|---|---|---|---|---|---|
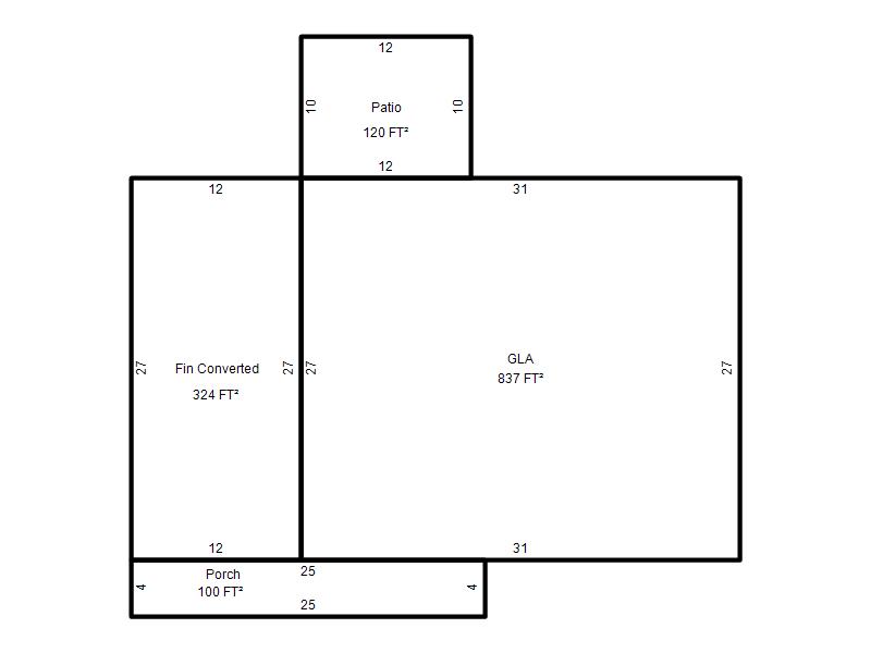
| Bldg # | Vacant/Improved Land | Bldg Description | Year Built | SqFt | # Stories | |
|
1 |
Improved |
Ranch 1 Story |
1965 |
837 |
1 Stories |
|