|
|
|
| Larry Stein Oklahoma County Assessor (405) 713-1200 - Public Access System |
|
|
|
|
|
|
| Real Property Display - Screen Produced 4/2/2026 2:43:32 AM | ||||
|---|---|---|---|---|
| Account: R148061775 | Type: Residential | Location: |
7800 NW 7TH ST |
|
| Building Name/Occupant: |
|
OKLAHOMA CITY |
||
| Owner Name 1: | NAVARRO ZULMA JAZMIN |
Parcel PIN#: |
2928-14-806-1775 |
|
| Owner Name 2: | 1/4 section #: |
2928 |
||
| Owner Name 3: | Parent Acct: |
|
||
| Billing Address: | 7800 NW 7TH ST | Tax District: |
|
|
| City, State, Zip | OKLAHOMA CITY, OK 73127-6030 | School System: |
Western Heights #41 |
|
|
Country: (If noted) |
Land Size: |
0.2157 Acres |
||
|
Land Value: 16,743 |
|
|||
|
Sect 32-T12N-R4W Qtr NW |
RED BUD
Block
005
Lot
013
|
|||
| Full Legal Description: RED BUD 005 013 |
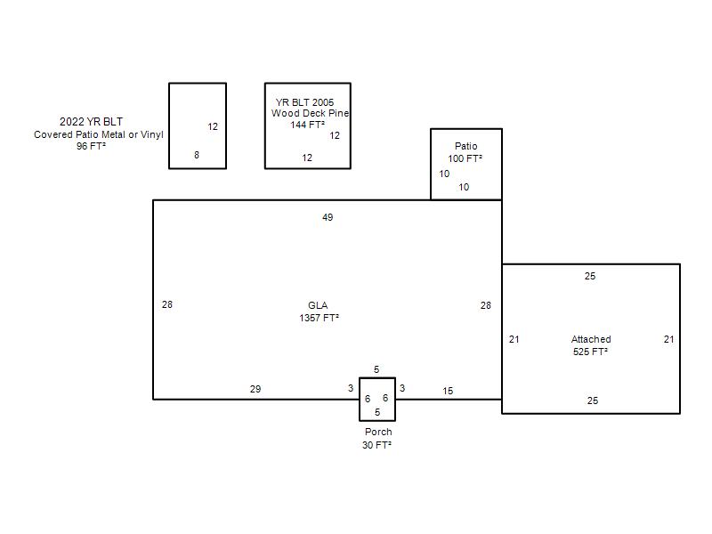
| Photo & Sketch (if available) | Comp Sales (ordered by relevancy) |
|
||||||||||||||||||
|
||||||||||||||||||||
| Value History (*The County Treasurer 405-713-1300 posts & collects actual tax amounts. Contact information HERE) | |||||||||||||
|---|---|---|---|---|---|---|---|---|---|---|---|---|---|
| Year | Market Value | Taxable Mkt Value | Gross Assessed | Exemption | Net Assessed | Millage | Est. Tax | Tax Savings | |||||
|
2026 |
173,000 |
173,000 |
19,030 |
1,000 |
18,030 |
118.35 |
$2,134 |
$118 |
|||||
|
2025 |
174,500 |
80,634 |
8,869 |
0 |
8,869 |
118.35 |
$1,050 |
$1,222 |
|||||
|
2024 |
169,000 |
76,795 |
8,447 |
0 |
8,447 |
118.83 |
$1,004 |
$1,205 |
|||||
|
2023 |
157,000 |
73,139 |
8,045 |
0 |
8,045 |
116.69 |
$939 |
$1,076 |
|||||
|
2022 |
138,000 |
69,657 |
7,660 |
0 |
7,660 |
118.05 |
$905 |
$887 |
|||||
| Property Account Status/Adjustments/Exemptions | ||
|---|---|---|
| Account # | Exemption Description | Amount |
|
R148061775 |
Homestead |
1,000 |
| Property Deed Transaction History (Recorded in the County Clerk's Office) | ||||||||||
|---|---|---|---|---|---|---|---|---|---|---|
| Date | Type | Book | Page | Price | Grantor | Grantee | ||||
|
5/8/2025 |
|
Deeds |
$164,000 |
BEYRER OMEGA TRS |
NAVARRO ZULMA JAZMIN |
|||||
|
10/3/2024 |
|
Hmstd Off & |
$0 |
BEYRER OMEGA M |
BEYRER OMEGA TRS |
|||||
|
11/7/2023 |
|
Hmstd Off & |
$0 |
BEYRER OMEGA M |
BEYRER OMEGA M |
|||||
|
7/30/2012 |
|
Deeds |
$0 |
BEYRER CARL C & OMEGA M CO TRS BEYRER REV LIVING TRUST |
BEYRER OMEGA M |
|||||
|
9/24/2004 |
|
Deeds |
$0 |
BEYRER CARL & OMEGA |
BEYRER CARL C & OMEGA M CO TRS BEYRER REV LIVING TRUST |
|||||
| Last Mailed Notice of Value (N.O.V.) Information/History | ||||||||
|---|---|---|---|---|---|---|---|---|
| Year | Date | Market Value | Taxable Market Value | Gross Assessed | Exemption | Net Assessed | ||
|
2026 |
02/23/2026 |
173,000 |
173,000 |
19,030 |
1,000 |
18,030 |
||
|
2025 |
02/14/2025 |
174,500 |
80,634 |
8,869 |
0 |
8,869 |
||
|
2024 |
02/13/2024 |
169,000 |
76,795 |
8,447 |
0 |
8,447 |
||
|
2023 |
02/14/2023 |
157,000 |
73,139 |
8,045 |
0 |
8,045 |
||
|
2022 |
03/15/2022 |
138,000 |
69,657 |
7,660 |
0 |
7,660 |
||
| Property Building Permit History | |||||||||||
|---|---|---|---|---|---|---|---|---|---|---|---|
| Issued | Permit # | Provided by | Bldg # | Description | Est Construction Cost | Status | |||||
| No Building Permit records returned. | |||||||||||
| Click button on building number to access detailed information: | ||||||
|---|---|---|---|---|---|---|
| Bldg # | Vacant/Improved Land | Bldg Description | Year Built | SqFt | # Stories | |
|
1 |
Improved |
Ranch 1 Story |
1971 |
1,357 |
1 Stories |
|