|
|
|
| Larry Stein Oklahoma County Assessor (405) 713-1200 - Public Access System |
|
|
|
|
|
|
| Real Property Display - Screen Produced 4/4/2026 10:21:24 PM | ||||
|---|---|---|---|---|
| Account: R147781610 | Type: Residential | Location: |
6713 TALL OAKS DR |
|
| Building Name/Occupant: |
|
OKLAHOMA CITY |
||
| Owner Name 1: | MORALES JOSE PABLO SALAZAR |
Parcel PIN#: |
2932-14-778-1610 |
|
| Owner Name 2: | 1/4 section #: |
2932 |
||
| Owner Name 3: | Parent Acct: |
|
||
| Billing Address: | 6713 TALL OAKS DR | Tax District: |
|
|
| City, State, Zip | OKLAHOMA CITY, OK 73127-6241 | School System: |
Western Heights #41 |
|
|
Country: (If noted) |
Land Size: |
0.2475 Acres |
||
|
Land Value: 32,879 |
|
|||
|
Sect 33-T12N-R4W Qtr NW |
BRIARWOOD ESTATES RESUB
Block
003
Lot
007
|
|||
| Full Legal Description: BRIARWOOD ESTATES RESUB 003 007 |
| Photo & Sketch (if available) | Comp Sales (ordered by relevancy) |
|
||||||||||||||||||
|
||||||||||||||||||||
| Value History (*The County Treasurer 405-713-1300 posts & collects actual tax amounts. Contact information HERE) | |||||||||||||
|---|---|---|---|---|---|---|---|---|---|---|---|---|---|
| Year | Market Value | Taxable Mkt Value | Gross Assessed | Exemption | Net Assessed | Millage | Est. Tax | Tax Savings | |||||
|
2026 |
205,500 |
205,500 |
22,605 |
0 |
22,605 |
118.35 |
$2,675 |
$0 |
|||||
|
2025 |
210,000 |
210,000 |
23,100 |
0 |
23,100 |
118.35 |
$2,734 |
$0 |
|||||
|
2024 |
193,000 |
89,896 |
9,888 |
1,000 |
8,888 |
118.83 |
$1,056 |
$1,467 |
|||||
|
2023 |
184,000 |
89,896 |
9,888 |
1,000 |
8,888 |
116.69 |
$1,037 |
$1,325 |
|||||
|
2022 |
157,500 |
89,896 |
9,888 |
1,000 |
8,888 |
118.05 |
$1,049 |
$996 |
|||||
| Property Account Status/Adjustments/Exemptions | ||
|---|---|---|
| Account # | Exemption Description | Amount |
|
R147781610 |
5% Capped Account |
0 |
| Property Deed Transaction History (Recorded in the County Clerk's Office) | |||||||
|---|---|---|---|---|---|---|---|
| Date | Type | Book | Page | Price | Grantor | Grantee | |
|
2/29/2024 |
|
Deeds |
$215,000 |
HALEY DARWIN STEVENS & DELORES W TRS |
MORALES JOSE PABLO SALAZAR |
||
|
2/17/2000 |
|
Deeds |
$0 |
HALEY DARWIN S & DELORES W |
HALEY DARWIN STEVENS & DELORES W TRS |
||
|
7/8/1988 |
|
Historical |
$69,000 |
CITY FEDERAL SAVINGS BANK |
HALEY DARWIN S & DELORES W |
||
|
10/5/1987 |
|
Historical |
$0 |
WELLS JOHN S JR & JANICE L |
CITY FEDERAL SAVINGS BANK |
||
|
10/1/1984 |
|
Historical |
$0 |
|
WELLS JOHN S JR & JANICE L |
||
| Last Mailed Notice of Value (N.O.V.) Information/History | ||||||||
|---|---|---|---|---|---|---|---|---|
| Year | Date | Market Value | Taxable Market Value | Gross Assessed | Exemption | Net Assessed | ||
|
2025 |
02/14/2025 |
210,000 |
210,000 |
23,100 |
0 |
23,100 |
||
|
2024 |
02/13/2024 |
193,000 |
89,896 |
9,888 |
1,000 |
8,888 |
||
|
2024 |
04/05/2024 |
193,000 |
89,896 |
9,888 |
1,000 |
8,888 |
||
|
2023 |
02/14/2023 |
184,000 |
89,896 |
9,888 |
1,000 |
8,888 |
||
|
2022 |
03/15/2022 |
157,500 |
89,896 |
9,888 |
1,000 |
8,888 |
||
| Property Building Permit History | |||||||||||
|---|---|---|---|---|---|---|---|---|---|---|---|
| Issued | Permit # | Provided by | Bldg # | Description | Est Construction Cost | Status | |||||
| No Building Permit records returned. | |||||||||||
| Click button on building number to access detailed information: | ||||||
|---|---|---|---|---|---|---|
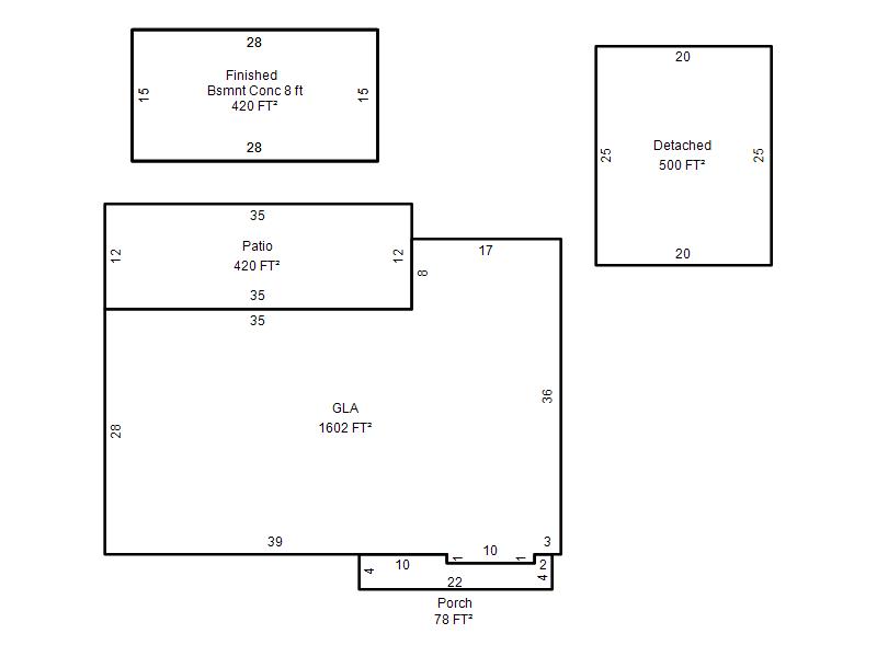
| Bldg # | Vacant/Improved Land | Bldg Description | Year Built | SqFt | # Stories | |
|
1 |
Improved |
Ranch 1 Story |
1966 |
1,602 |
1 Stories |
|