|
|
|
| Larry Stein Oklahoma County Assessor (405) 713-1200 - Public Access System |
|
|
|
|
|
|
| Real Property Display - Screen Produced 4/4/2026 5:31:17 PM | ||||
|---|---|---|---|---|
| Account: R190033130 | Type: Residential | Location: |
13101 NE 155TH ST |
|
| Building Name/Occupant: |
|
OKLAHOMA CITY |
||
| Owner Name 1: | LOPEZ SALVADOR L & AMANDA G |
Parcel PIN#: |
3211-19-003-3130 |
|
| Owner Name 2: | 1/4 section #: |
3211 |
||
| Owner Name 3: | Parent Acct: |
|
||
| Billing Address: | 13101 NE 155TH ST | Tax District: |
|
|
| City, State, Zip | JONES, OK 73049 | School System: |
Jones #9 |
|
|
Country: (If noted) |
Land Size: |
5.0100 Acres |
||
|
Land Value: 60,000 |
|
|||
|
Sect 3-T13N-R1W Qtr SW |
UNPLTD PT SEC 3 13N 1W
Block
000
Lot
000
|
|||
| Full Legal Description: UNPLTD PT SW4 SEC 3 13N 1W BEG 660FT S & 256.51FT NE & 200FT E & 261.24FT SE OF NW/C SW4 TH N636.09FT E331.07FT S682.33FT W334.75FT TO BEG CONT 5.01ACRS MORE OR LESS |
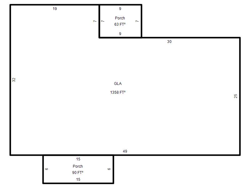
| Photo & Sketch (if available) | Comp Sales (ordered by relevancy) |
|
||||||||||||||||||
|
||||||||||||||||||||
| Value History (*The County Treasurer 405-713-1300 posts & collects actual tax amounts. Contact information HERE) | |||||||||||||
|---|---|---|---|---|---|---|---|---|---|---|---|---|---|
| Year | Market Value | Taxable Mkt Value | Gross Assessed | Exemption | Net Assessed | Millage | Est. Tax | Tax Savings | |||||
|
2026 |
248,000 |
248,000 |
27,280 |
0 |
27,280 |
130.05 |
$3,548 |
$0 |
|||||
|
2025 |
244,000 |
241,447 |
26,558 |
0 |
26,558 |
130.05 |
$3,454 |
$37 |
|||||
|
2024 |
239,500 |
229,950 |
25,294 |
0 |
25,294 |
130.24 |
$3,294 |
$137 |
|||||
|
2023 |
219,000 |
219,000 |
24,090 |
0 |
24,090 |
127.43 |
$3,070 |
$0 |
|||||
|
2022 |
60,000 |
60,000 |
6,600 |
0 |
6,600 |
124.39 |
$821 |
$0 |
|||||
| Property Account Status/Adjustments/Exemptions | ||
|---|---|---|
| Account # | Exemption Description | Amount |
|
R190033130 |
5% Capped Account |
0 |
| Property Deed Transaction History (Recorded in the County Clerk's Office) | ||||||||||
|---|---|---|---|---|---|---|---|---|---|---|
| Date | Type | Book | Page | Price | Grantor | Grantee | ||||
|
1/24/2022 |
|
Deeds |
$210,000 |
LT INNOVATIONS INC |
LOPEZ SALVADOR L & AMANDA G |
|||||
|
6/7/2018 |
|
Deeds |
$60,000 |
TOMLIN CORKY |
LT INNOVATIONS INC |
|||||
|
4/15/2017 |
|
Deeds |
$0 |
RHODES CUSTOM HOMES INC |
TOMLIN CORKY |
|||||
|
3/10/2017 |
|
Deeds |
$38,500 |
RHODES CUSTOM HOMES INC |
TOMLIN CORKY DEPIETRO JENNIFER |
|||||
|
11/8/2016 |
|
Other |
$0 |
EASTEP DELTON J & LADONNA G |
RHODES CUSTOM HOMES INC |
|||||
| Last Mailed Notice of Value (N.O.V.) Information/History | ||||||||
|---|---|---|---|---|---|---|---|---|
| Year | Date | Market Value | Taxable Market Value | Gross Assessed | Exemption | Net Assessed | ||
|
2026 |
02/06/2026 |
248,000 |
248,000 |
27,280 |
0 |
27,280 |
||
|
2025 |
01/31/2025 |
244,000 |
241,447 |
26,558 |
0 |
26,558 |
||
|
2024 |
01/22/2024 |
239,500 |
229,950 |
25,294 |
0 |
25,294 |
||
|
2023 |
01/23/2023 |
219,000 |
219,000 |
24,090 |
0 |
24,090 |
||
|
2019 |
02/26/2019 |
60,000 |
60,000 |
6,600 |
0 |
6,600 |
||
| Property Building Permit History | ||||||
|---|---|---|---|---|---|---|
| Issued | Permit # | Provided by | Bldg # | Description | Est Construction Cost | Status |
|
8/20/2025 |
|
|
|
Main Dwellin |
|
Inactive |
| Click button on building number to access detailed information: | ||||||
|---|---|---|---|---|---|---|
| Bldg # | Vacant/Improved Land | Bldg Description | Year Built | SqFt | # Stories | |
|
1 |
Improved |
Ranch 1 Story |
1960 |
1,358 |
1 Stories |
|