|
|
|
| Larry Stein Oklahoma County Assessor (405) 713-1200 - Public Access System |
|
|
|
|
|
|
| Real Property Display - Screen Produced 4/7/2026 12:14:46 PM | ||||
|---|---|---|---|---|
| Account: R146025050 | Type: Residential | Location: |
2929 FREEMAN MANOR DR |
|
| Building Name/Occupant: |
|
EDMOND |
||
| Owner Name 1: | TOMCHO JASON & BRITNI |
Parcel PIN#: |
3219-14-602-5050 |
|
| Owner Name 2: | 1/4 section #: |
3219 |
||
| Owner Name 3: | Parent Acct: |
|
||
| Billing Address: | 2929 FREEMAN MANOR DR | Tax District: |
|
|
| City, State, Zip | JONES, OK 73049 | School System: |
Jones #9 |
|
|
Country: (If noted) |
Land Size: |
10.0000 Acres |
||
|
Land Value: 113,000 |
|
|||
|
Sect 5-T13N-R1W Qtr SW |
UNPLTD PT SEC 5 13N 1W
Block
000
Lot
000
|
|||
| Full Legal Description: UNPLTD PT SW4 SEC 5 13N 1W BEG 660FT N OF SW/C SW4 TH N660FT E660.86FT S660FT W660.66FT TO BEG SUBJ TO ESMTS OF RECORD |
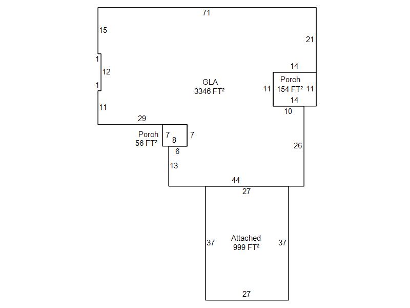
| Photo & Sketch (if available) | Comp Sales (ordered by relevancy) |
|
||||||||||||||||||
|
||||||||||||||||||||
| Value History (*The County Treasurer 405-713-1300 posts & collects actual tax amounts. Contact information HERE) | |||||||||||||
|---|---|---|---|---|---|---|---|---|---|---|---|---|---|
| Year | Market Value | Taxable Mkt Value | Gross Assessed | Exemption | Net Assessed | Millage | Est. Tax | Tax Savings | |||||
|
2026 |
695,500 |
695,500 |
76,505 |
0 |
76,505 |
114.89 |
$8,790 |
$0 |
|||||
|
2025 |
680,500 |
680,500 |
74,855 |
0 |
74,855 |
114.89 |
$8,600 |
$0 |
|||||
|
2024 |
663,500 |
663,500 |
72,985 |
0 |
72,985 |
115.31 |
$8,416 |
$0 |
|||||
|
2023 |
637,000 |
637,000 |
70,070 |
0 |
70,070 |
112.65 |
$7,893 |
$0 |
|||||
|
2022 |
513,500 |
436,560 |
48,020 |
1,000 |
47,020 |
108.93 |
$5,122 |
$1,031 |
|||||
| Property Account Status/Adjustments/Exemptions | ||
|---|---|---|
| Account # | Exemption Description | Amount |
|
R146025050 |
5% Capped Account |
0 |
| Property Deed Transaction History (Recorded in the County Clerk's Office) | |||||||
|---|---|---|---|---|---|---|---|
| Date | Type | Book | Page | Price | Grantor | Grantee | |
|
7/29/2022 |
|
Deeds |
$635,000 |
NAYLOR MARK A & KERRI ANN |
TOMCHO JASON & BRITNI |
||
|
3/10/1998 |
|
Historical |
$41,000 |
|
NAYLOR MARK A & KERRI ANN |
||
| Last Mailed Notice of Value (N.O.V.) Information/History | ||||||||
|---|---|---|---|---|---|---|---|---|
| Year | Date | Market Value | Taxable Market Value | Gross Assessed | Exemption | Net Assessed | ||
|
2026 |
02/06/2026 |
695,500 |
695,500 |
76,505 |
0 |
76,505 |
||
|
2025 |
01/31/2025 |
680,500 |
680,500 |
74,855 |
0 |
74,855 |
||
|
2024 |
01/22/2024 |
663,500 |
663,500 |
72,985 |
0 |
72,985 |
||
|
2023 |
01/23/2023 |
637,000 |
637,000 |
70,070 |
0 |
70,070 |
||
|
2022 |
02/22/2022 |
513,500 |
436,560 |
48,020 |
1,000 |
47,020 |
||
| Property Building Permit History | ||||||
|---|---|---|---|---|---|---|
| Issued | Permit # | Provided by | Bldg # | Description | Est Construction Cost | Status |
|
4/30/1998 |
10241051 |
EDMOND |
1 |
Main Dwellin |
150,000 |
Inactive |
| Click button on building number to access detailed information: | ||||||
|---|---|---|---|---|---|---|
| Bldg # | Vacant/Improved Land | Bldg Description | Year Built | SqFt | # Stories | |
|
1 |
Improved |
Ranch 1 Story |
1998 |
3,346 |
1 Stories |
|