|
|
|
| Larry Stein Oklahoma County Assessor (405) 713-1200 - Public Access System |
|
|
|
|
|
|
| Real Property Display - Screen Produced 4/4/2026 5:39:44 AM | ||||
|---|---|---|---|---|
| Account: R141222600 | Type: Residential | Location: |
10221 E WILSHIRE BLVD |
|
| Building Name/Occupant: |
|
OKLAHOMA CITY |
||
| Owner Name 1: | BONILLA RENNERIO ADRIAN AYALA |
Parcel PIN#: |
3323-14-122-2600 |
|
| Owner Name 2: | MARTINEZ FABIOLA BALTAZAR | 1/4 section #: |
3323 |
|
| Owner Name 3: | Parent Acct: |
|
||
| Billing Address: | 10221 E WILSHIRE BLVD | Tax District: |
|
|
| City, State, Zip | SPENCER, OK 73084-4629 | School System: |
Oklahoma City #89 |
|
|
Country: (If noted) |
Land Size: |
2.0680 Acres |
||
|
Land Value: 7,240 |
|
|||
|
Sect 31-T13N-R1W Qtr SW |
HILLWOOD FARMS ADD
Block
042
Lot
000
|
|||
| Full Legal Description: HILLWOOD FARMS ADD LOT 042 EX PT OF LOT 42 BEG 146.27FT E OF SW/C LOT 42 TH N227.65FT E36.42FTS227.65FT W33.59FT TO BEG & PLUS PT LOT 43 BEG 179.86FT E & 227.65FT N OF SW/C LOT 42 TH N227.65FT E34.98FT S227.65FT W34.98FT TO BEG |
| Photo & Sketch (if available) | Comp Sales (ordered by relevancy) |
|
||||||||||||||||||
|
||||||||||||||||||||
| Value History (*The County Treasurer 405-713-1300 posts & collects actual tax amounts. Contact information HERE) | |||||||||||||
|---|---|---|---|---|---|---|---|---|---|---|---|---|---|
| Year | Market Value | Taxable Mkt Value | Gross Assessed | Exemption | Net Assessed | Millage | Est. Tax | Tax Savings | |||||
|
2026 |
228,000 |
205,412 |
22,594 |
0 |
22,594 |
122.90 |
$2,777 |
$305 |
|||||
|
2025 |
195,631 |
195,631 |
21,518 |
0 |
21,518 |
122.90 |
$2,645 |
$0 |
|||||
|
2024 |
185,859 |
185,859 |
20,444 |
0 |
20,444 |
123.89 |
$2,533 |
$0 |
|||||
|
2023 |
196,000 |
196,000 |
21,560 |
0 |
21,560 |
122.82 |
$2,648 |
$0 |
|||||
|
2022 |
53,000 |
53,000 |
5,830 |
0 |
5,830 |
117.63 |
$686 |
$0 |
|||||
| Property Account Status/Adjustments/Exemptions | ||
|---|---|---|
| Account # | Exemption Description | Amount |
|
R141222600 |
5% Capped Account |
0 |
| Property Deed Transaction History (Recorded in the County Clerk's Office) | ||||||||||
|---|---|---|---|---|---|---|---|---|---|---|
| Date | Type | Book | Page | Price | Grantor | Grantee | ||||
|
2/5/2026 |
|
Deeds |
$207,000 |
10221 E WILSHIRE LLC |
BONILLA RENNERIO ADRIAN AYALA |
|||||
|
8/14/2025 |
|
Deeds |
$0 |
BOLSTAD HAROLD |
10221 E WILSHIRE LLC |
|||||
|
8/14/2024 |
|
Hmstd Off & |
$0 |
10221 E WILSHIRE LLC |
BOLSTAD HAROLD |
|||||
|
7/11/2022 |
|
Deeds |
$195,000 |
AYALA RENNERIO A B |
10221 E WILSHIRE LLC |
|||||
|
9/23/2021 |
|
Deeds |
$51,000 |
OKC PROPERTY BUYERS LLC |
HOMES INVESTMENT & GENERAL CONSTRUCTION LLC |
|||||
| Last Mailed Notice of Value (N.O.V.) Information/History | ||||||||
|---|---|---|---|---|---|---|---|---|
| Year | Date | Market Value | Taxable Market Value | Gross Assessed | Exemption | Net Assessed | ||
|
2026 |
02/06/2026 |
228,000 |
205,412 |
22,594 |
0 |
22,594 |
||
|
2026 |
03/30/2026 |
228,000 |
205,412 |
22,594 |
0 |
22,594 |
||
|
2025 |
01/31/2025 |
196,500 |
195,825 |
21,540 |
0 |
21,540 |
||
|
2025 |
03/28/2025 |
195,000 |
195,000 |
21,450 |
0 |
21,450 |
||
|
2023 |
01/23/2023 |
196,000 |
196,000 |
21,560 |
0 |
21,560 |
||
| Property Building Permit History | |||||||||||
|---|---|---|---|---|---|---|---|---|---|---|---|
| Issued | Permit # | Provided by | Bldg # | Description | Est Construction Cost | Status | |||||
| No Building Permit records returned. | |||||||||||
| Click button on building number to access detailed information: | ||||||
|---|---|---|---|---|---|---|
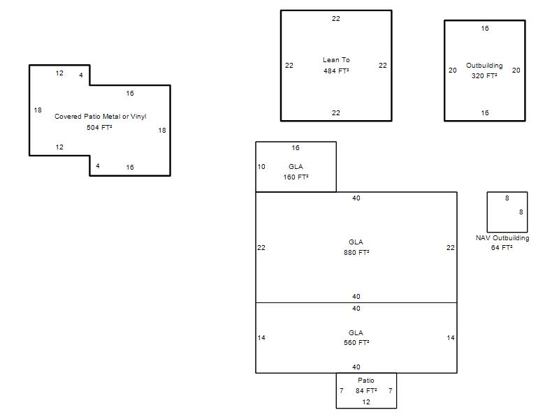
| Bldg # | Vacant/Improved Land | Bldg Description | Year Built | SqFt | # Stories | |
|
1 |
Improved |
Ranch 1 Story |
1951 |
1,600 |
1 Stories |
|