|
|
|
| Larry Stein Oklahoma County Assessor (405) 713-1200 - Public Access System |
|
|
|
|
|
|
| Real Property Display - Screen Produced 4/4/2026 5:53:18 PM | ||||
|---|---|---|---|---|
| Account: R205741190 | Type: Residential | Location: |
521 NW 155TH CIR |
|
| Building Name/Occupant: |
|
OKLAHOMA CITY |
||
| Owner Name 1: | NOLAND MICHAEL W |
Parcel PIN#: |
3615-20-574-1190 |
|
| Owner Name 2: | 1/4 section #: |
3615 |
||
| Owner Name 3: | Parent Acct: |
3615-14-452-1665 |
||
| Billing Address: | 521 NW 155TH CIR | Tax District: |
|
|
| City, State, Zip | EDMOND, OK 73013 | School System: |
Edmond #12 |
|
|
Country: (If noted) |
Land Size: |
0.2893 Acres |
||
|
Land Value: 73,710 |
|
|||
|
Sect 4-T13N-R3W Qtr SW |
BRENTON HILLS SEC 6
Block
012
Lot
016
|
|||
| Full Legal Description: BRENTON HILLS SEC 6 012 016 |
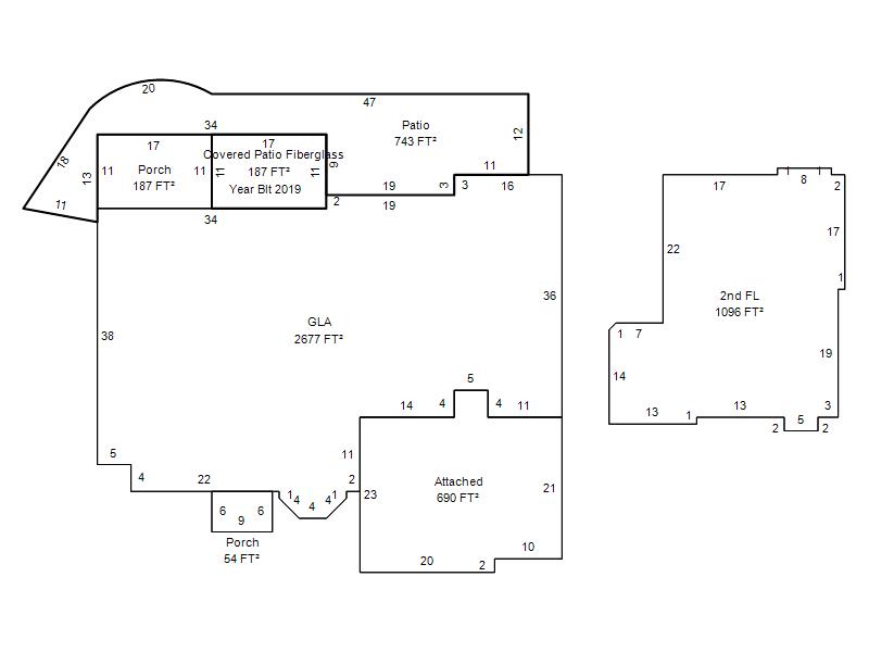
| Photo & Sketch (if available) | Comp Sales (ordered by relevancy) |
|
||||||||||||||||||
|
||||||||||||||||||||
| Value History (*The County Treasurer 405-713-1300 posts & collects actual tax amounts. Contact information HERE) | |||||||||||||
|---|---|---|---|---|---|---|---|---|---|---|---|---|---|
| Year | Market Value | Taxable Mkt Value | Gross Assessed | Exemption | Net Assessed | Millage | Est. Tax | Tax Savings | |||||
|
2026 |
554,000 |
553,350 |
60,868 |
0 |
60,868 |
120.32 |
$7,324 |
$9 |
|||||
|
2025 |
527,000 |
527,000 |
57,970 |
0 |
57,970 |
120.32 |
$6,975 |
$0 |
|||||
|
2024 |
515,500 |
515,500 |
56,705 |
0 |
56,705 |
119.96 |
$6,802 |
$0 |
|||||
|
2023 |
526,500 |
421,155 |
46,327 |
0 |
46,327 |
119.02 |
$5,514 |
$1,379 |
|||||
|
2022 |
441,500 |
401,100 |
44,121 |
0 |
44,121 |
120.10 |
$5,299 |
$534 |
|||||
| Property Account Status/Adjustments/Exemptions | ||
|---|---|---|
| Account # | Exemption Description | Amount |
|
R205741190 |
5% Capped Account |
0 |
| Property Deed Transaction History (Recorded in the County Clerk's Office) | ||||||||||
|---|---|---|---|---|---|---|---|---|---|---|
| Date | Type | Book | Page | Price | Grantor | Grantee | ||||
|
1/19/2023 |
|
Deeds |
$0 |
SHARUM MELINDA & GARY L |
SHARUM GARY L |
|||||
|
1/19/2023 |
|
Deeds |
$500,000 |
SHARUM GARY L |
NOLAND MICHAEL W |
|||||
|
8/13/2018 |
|
Deeds |
$395,000 |
COURTIN PHILIP & VICKI |
SHARUM MELINDA & GARY L |
|||||
|
11/27/2017 |
|
Deeds |
$385,000 |
KNEPPER CODY M |
COURTIN PHILIP & VICKI |
|||||
|
5/28/2010 |
|
Deeds |
$360,000 |
TETTEH ANDREW K & NANA B |
KNEPPER CODY M |
|||||
| Last Mailed Notice of Value (N.O.V.) Information/History | ||||||||
|---|---|---|---|---|---|---|---|---|
| Year | Date | Market Value | Taxable Market Value | Gross Assessed | Exemption | Net Assessed | ||
|
2026 |
02/23/2026 |
554,000 |
553,350 |
60,868 |
0 |
60,868 |
||
|
2025 |
02/14/2025 |
527,000 |
527,000 |
57,970 |
0 |
57,970 |
||
|
2024 |
02/13/2024 |
515,500 |
515,500 |
56,705 |
0 |
56,705 |
||
|
2023 |
02/14/2023 |
526,500 |
421,155 |
46,327 |
0 |
46,327 |
||
|
2022 |
03/15/2022 |
441,500 |
401,100 |
44,121 |
0 |
44,121 |
||
| Property Building Permit History | ||||||
|---|---|---|---|---|---|---|
| Issued | Permit # | Provided by | Bldg # | Description | Est Construction Cost | Status |
|
5/15/2007 |
10339275 |
OKLAHOMA CITY |
1 |
Main Dwellin |
250,000 |
Inactive |
| Click button on building number to access detailed information: | ||||||
|---|---|---|---|---|---|---|
| Bldg # | Vacant/Improved Land | Bldg Description | Year Built | SqFt | # Stories | |
|
1 |
Improved |
1½ Story Fin |
2008 |
3,773 |
1.5 Stories |
|