|
|
|
| Larry Stein Oklahoma County Assessor (405) 713-1200 - Public Access System |
|
|
|
|
|
|
| Real Property Display - Screen Produced 4/9/2026 7:02:12 AM | ||||
|---|---|---|---|---|
| Account: R120141800 | Type: Residential | Location: |
2408 SHADY TREE LN |
|
| Building Name/Occupant: |
|
OKLAHOMA CITY |
||
| Owner Name 1: | DICKERSON ZACHARY CHRISTIAN |
Parcel PIN#: |
3652-12-014-1800 |
|
| Owner Name 2: | DICKERSON REBECCA CHRISTINE | 1/4 section #: |
3652 |
|
| Owner Name 3: | Parent Acct: |
|
||
| Billing Address: | 2408 SHADY TREE LN | Tax District: |
|
|
| City, State, Zip | EDMOND, OK 73013-5642 | School System: |
Edmond #12 |
|
|
Country: (If noted) |
Land Size: |
0.1671 Acres |
||
|
Land Value: 33,124 |
|
|||
|
Sect 13-T13N-R3W Qtr NW |
NORTHWOOD ADDN IV
Block
018
Lot
007
|
|||
| Full Legal Description: NORTHWOOD ADDN IV 018 007 |
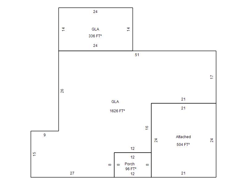
| Photo & Sketch (if available) | Comp Sales (ordered by relevancy) |
|
||||||||||||||||||
|
||||||||||||||||||||
| Value History (*The County Treasurer 405-713-1300 posts & collects actual tax amounts. Contact information HERE) | |||||||||||||
|---|---|---|---|---|---|---|---|---|---|---|---|---|---|
| Year | Market Value | Taxable Mkt Value | Gross Assessed | Exemption | Net Assessed | Millage | Est. Tax | Tax Savings | |||||
|
2026 |
248,000 |
248,000 |
27,280 |
0 |
27,280 |
120.32 |
$3,282 |
$0 |
|||||
|
2025 |
241,000 |
219,606 |
24,156 |
1,000 |
23,156 |
120.32 |
$2,786 |
$403 |
|||||
|
2024 |
234,000 |
213,210 |
23,453 |
1,000 |
22,453 |
119.96 |
$2,693 |
$394 |
|||||
|
2023 |
207,000 |
207,000 |
22,770 |
0 |
22,770 |
119.02 |
$2,710 |
$0 |
|||||
|
2022 |
204,500 |
182,463 |
20,070 |
0 |
20,070 |
120.10 |
$2,411 |
$291 |
|||||
| Property Account Status/Adjustments/Exemptions | ||||||
|---|---|---|---|---|---|---|
| Account # | Exemption Description | Amount | ||||
| No adjustment/exemption records returned. | ||||||
| Property Deed Transaction History (Recorded in the County Clerk's Office) | ||||||||||
|---|---|---|---|---|---|---|---|---|---|---|
| Date | Type | Book | Page | Price | Grantor | Grantee | ||||
|
9/18/2025 |
|
Deeds |
$260,000 |
DOTY LAURIE ANN TRS |
DICKERSON ZACHARY CHRISTIAN |
|||||
|
7/1/2024 |
|
Deeds |
$0 |
DOTY LAURIE ANN |
DOTY LAURIE ANN TRS |
|||||
|
7/1/2024 |
|
Deeds |
$0 |
DOTY LAURIE ANN TRS |
DOTY LAURIE ANN TRS |
|||||
|
8/2/2022 |
|
Deeds |
$206,000 |
MAPLE STEPHEN K |
DOTY LAURIE ANN |
|||||
|
3/30/2007 |
|
Deeds |
$135,000 |
KLUTTS LARRY C & ANGELA K |
MAPLE STEPHEN K |
|||||
| Last Mailed Notice of Value (N.O.V.) Information/History | ||||||||
|---|---|---|---|---|---|---|---|---|
| Year | Date | Market Value | Taxable Market Value | Gross Assessed | Exemption | Net Assessed | ||
|
2026 |
02/23/2026 |
248,000 |
248,000 |
27,280 |
0 |
27,280 |
||
|
2025 |
02/14/2025 |
241,000 |
219,606 |
24,156 |
1,000 |
23,156 |
||
|
2024 |
02/13/2024 |
234,000 |
213,210 |
23,453 |
1,000 |
22,453 |
||
|
2023 |
02/14/2023 |
207,000 |
207,000 |
22,770 |
0 |
22,770 |
||
|
2022 |
03/15/2022 |
204,500 |
182,463 |
20,070 |
0 |
20,070 |
||
| Property Building Permit History | |||||||||||
|---|---|---|---|---|---|---|---|---|---|---|---|
| Issued | Permit # | Provided by | Bldg # | Description | Est Construction Cost | Status | |||||
| No Building Permit records returned. | |||||||||||
| Click button on building number to access detailed information: | ||||||
|---|---|---|---|---|---|---|
| Bldg # | Vacant/Improved Land | Bldg Description | Year Built | SqFt | # Stories | |
|
1 |
Improved |
Ranch 1 Story |
1981 |
1,962 |
1 Stories |
|